Eladó Lakás
Hirdetéskód: 9233918
Benefit Line (OC)
Ez a hirdetés megfelelhet a FIX 3%-os programnak.
Tudj meg többet a részletekről itt.
50 m2
ALAPTERÜLET2
SZOBASZÁMnincs megadva
ÉPÍTÉSnincs megadva
FŰTÉS- CSOK igénybe vehető nem
- Tetőtér beépíthető nem
- Építés éve 1995
- Klíma nem
- Szigetelt nem
A+++
A++
A+
A
B
C
D
E
F
G
H
I
Az ingatlan leírása
Új tulajdonosát keresi a III. kerületben, Békásmegyeren, csendes és zöld környezetben egy 50 m2-es, 2 különnyíló szobás, világos, jó állapotú panellakás, karbantartott társasházban. Ha élhető, jól felszerelt, biztonságos és természetközeli környéken szeretné megtalálni új otthonát, ezt feltétlenül nézze meg!
KÖRNYÉK és KÖZLEKEDÉS:
- Budapest III. kerülete, Békásmegyeri lakótelep Duna felőli oldala.
- Kiváló infrastruktúrával és közlekedéssel rendelkező, nagyon szerethető és biztonságos környék.
- Bicikliút vezet a Római-part felé, közel van a Hármashatár-hegy, Csillaghegyi strand és a budai hegyek is.
- A lakástól néhány perce elérhető minden, ami a hétköznapokhoz szükséges.
- A 204, 296, 134, 34-es buszok megállója és a H5-ös HÉV pár perc sétatávolság.
- A ház közvetlen környezetében bölcsőde, óvoda és iskola, orvosi rendelő, gyógyszertár is rendelkezésre áll.
- A bevásárlást a közelben található Auchan, Prima, Spar, Lidl és Aldi biztosítja.
TÁRSASHÁZ:
- 1990-es évek elején épült, 10 szintes, liftes panel épület.
- Műszakilag rendszeresen karbantartott, gondozott társasház.
- Lépcsőháza rendezett, a lift felújítása megtörtént, 2026 tavaszán a szigetelés is kivitelezésre kerül.
- Lakóközössége kulturált, csendes, vegyes korosztály.
LAKÁS:
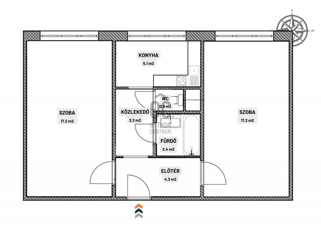
- Ötödik emeleti, 50 m2-es, 2 szobás, világos és jó elosztású ingatlan.
- Műszakilag és esztétikailag is jó állapotú lakás.
- Elosztása: előszoba-közlekedő, konyha+étkező, 2 szoba, fürdőszoba, külön WC.
- A nappali és a hálószoba tájolása déli, a lakás világos és logikusan bútorozható terekkel rendelkezik.
- A szobák ablakai fákra és zöld területre néznek.
- A lakásban több nagy méretű beépített szekrény segíti a helykihasználást és tárolást.
- Az ablakos konyha szintén beépített bútorokkal ellátott.
- A szobák laminált parkettával, a közlekedő, konyha, fürdőszoba járólappal burkolt.
- Fűtése távfűtés egyedi méréssel, a hő-leadást radiátorok biztosítják.
- Közös költsége 12.500 Ft/hó, víz és villanyfogyasztás is egyedi mérés alapján fizetendő.
AZ INGATLAN MEGTEKINTHETŐ:
- Személyesen
- Online személyes bejelentkezéssel
FINANSZÍROZÁSI KÉRDÉSEKBEN – ONLINE ÜGYINTÉZÉSSEL IS – SEGÍTÜNK!
- Bank-független hitelcenterünk díjmentesen versenyezteti az összes bank és hitelintézet ajánlatát.
- Önnek csak annyi a dolga, hogy egyeztet munkatársunkkal, majd kiválasztja a hosszú távon is legkedvezőbb konstrukciót.
- Szakértőink 20 év tapasztalattal, fogyasztóbarát lakáshitelekkel, babaváró hitellel és teljes körű CSOK Plusz és OTTHON START program ügyintézéssel várják.
- Időpont-egyeztetéssel munkaidő után is elérhetők.
Kérdéseire szívesen válaszolok, kérem hívjon bizalommal!
KÖRNYÉK és KÖZLEKEDÉS:
- Budapest III. kerülete, Békásmegyeri lakótelep Duna felőli oldala.
- Kiváló infrastruktúrával és közlekedéssel rendelkező, nagyon szerethető és biztonságos környék.
- Bicikliút vezet a Római-part felé, közel van a Hármashatár-hegy, Csillaghegyi strand és a budai hegyek is.
- A lakástól néhány perce elérhető minden, ami a hétköznapokhoz szükséges.
- A 204, 296, 134, 34-es buszok megállója és a H5-ös HÉV pár perc sétatávolság.
- A ház közvetlen környezetében bölcsőde, óvoda és iskola, orvosi rendelő, gyógyszertár is rendelkezésre áll.
- A bevásárlást a közelben található Auchan, Prima, Spar, Lidl és Aldi biztosítja.
TÁRSASHÁZ:
- 1990-es évek elején épült, 10 szintes, liftes panel épület.
- Műszakilag rendszeresen karbantartott, gondozott társasház.
- Lépcsőháza rendezett, a lift felújítása megtörtént, 2026 tavaszán a szigetelés is kivitelezésre kerül.
- Lakóközössége kulturált, csendes, vegyes korosztály.
LAKÁS:
- Ötödik emeleti, 50 m2-es, 2 szobás, világos és jó elosztású ingatlan.
- Műszakilag és esztétikailag is jó állapotú lakás.
- Elosztása: előszoba-közlekedő, konyha+étkező, 2 szoba, fürdőszoba, külön WC.
- A nappali és a hálószoba tájolása déli, a lakás világos és logikusan bútorozható terekkel rendelkezik.
- A szobák ablakai fákra és zöld területre néznek.
- A lakásban több nagy méretű beépített szekrény segíti a helykihasználást és tárolást.
- Az ablakos konyha szintén beépített bútorokkal ellátott.
- A szobák laminált parkettával, a közlekedő, konyha, fürdőszoba járólappal burkolt.
- Fűtése távfűtés egyedi méréssel, a hő-leadást radiátorok biztosítják.
- Közös költsége 12.500 Ft/hó, víz és villanyfogyasztás is egyedi mérés alapján fizetendő.
AZ INGATLAN MEGTEKINTHETŐ:
- Személyesen
- Online személyes bejelentkezéssel
FINANSZÍROZÁSI KÉRDÉSEKBEN – ONLINE ÜGYINTÉZÉSSEL IS – SEGÍTÜNK!
- Bank-független hitelcenterünk díjmentesen versenyezteti az összes bank és hitelintézet ajánlatát.
- Önnek csak annyi a dolga, hogy egyeztet munkatársunkkal, majd kiválasztja a hosszú távon is legkedvezőbb konstrukciót.
- Szakértőink 20 év tapasztalattal, fogyasztóbarát lakáshitelekkel, babaváró hitellel és teljes körű CSOK Plusz és OTTHON START program ügyintézéssel várják.
- Időpont-egyeztetéssel munkaidő után is elérhetők.
Kérdéseire szívesen válaszolok, kérem hívjon bizalommal!