Eladó Lakás
Hirdetéskód: 9282435
Alberlet.hu Ingatlan Kft.
Felújításhoz személyi kölcsönt keres? Kalkuláljon itt! →99.00 m2
ALAPTERÜLET4
SZOBASZÁMnincs megadva
ÉPÍTÉSGáz (cirkó)
FŰTÉS- CSOK igénybe vehető nem
- Belső szintek 2
- Tetőtér beépíthető nem
- Fűtés Gáz (cirkó)
- Klíma nem
- Szigetelt nem
Energetikai besorolás: C
A+++
A++
A+
A
B
C
D
E
F
G
H
I
Az ingatlan leírása
Eladó két lakás egy sorházban, Beszterce utcában, kiváló elhelyezkedéssel!
Eladásra kínálunk egy 2021-ben teljeskörűen felújított sorházat, amely két különálló lakásból áll. Az ingatlan ideális választás családoknak vagy szakembereknek, akik értékelik a kényelmet és a csendes, nyugodt környezetet. A háztartási gépek vadonatújak, a lakások külön-külön vagy együtt is megvásárolhatók.
Lakás jellemzői:
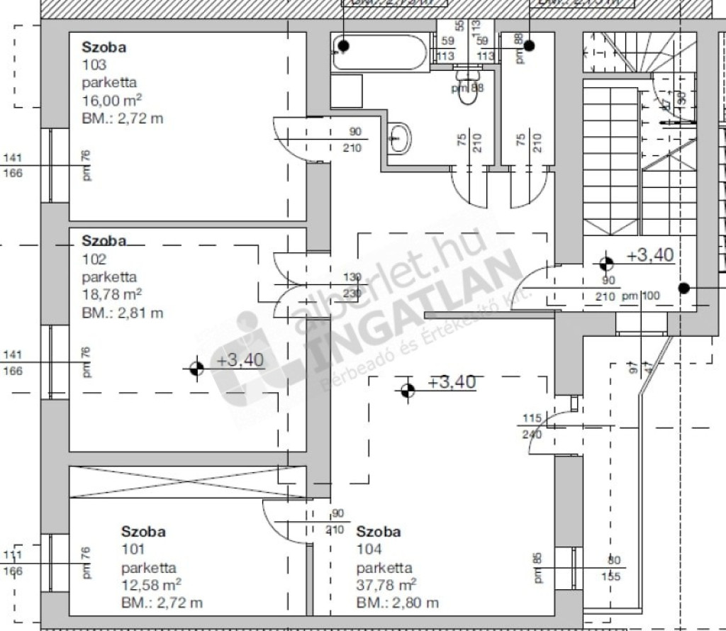
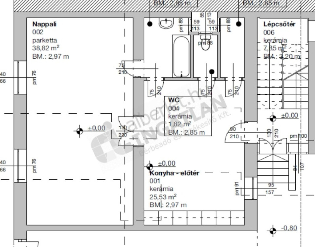
Földszinti lakás: 78 m², tágas konyhával és étkezővel, nagy szobával, amely könnyen kettéosztható. Ára: 117 millió Ft.
Első emeleti lakás: 99 m², három hálószobával, nappalival és erkéllyel. Duplex kialakítására is van lehetőség. Ára: 149 millió Ft.
Hátsó udvar: Két külön tároló helyiség és egy kis kert, amelyet kertépítész tervezett.
Nyílászárók: Minden ablak új, redőnnyel és szúnyoghálóval felszerelt.
Elhelyezkedés:
Kiváló megközelíthetőség: Mindössze 10 perces autóútra a British International School-tól, a főbb közlekedési útvonalak (Árpád híd, Margit híd) közelében. A tömegközlekedés (villamos, busz) gyalogosan is könnyen elérhető.
Szolgáltatások: Számos étterem, kávézó, pékség, túraútvonalak és alapvető szolgáltatások néhány perces sétára találhatók.
Környék jellemzői:
Csendes utca: A sorház egy nyugodt, békés utcában található, ahol biztosított a magánélet és a pihenés.
Családbarát: A közelben parkok, játszóterek és szabadidős létesítmények találhatók.
További információk:
Parkolás: Utcai parkolás elérhető.
Bútorozás: Megbeszélés tárgyát képezi.
Elérhetőség: A lakások szeptemberben költözhetők.
Ne hagyja ki ezt a különleges lehetőséget! Érdeklődjön most, és tekintse meg személyesen ezt az egyedülálló ingatlant!
Eladásra kínálunk egy 2021-ben teljeskörűen felújított sorházat, amely két különálló lakásból áll. Az ingatlan ideális választás családoknak vagy szakembereknek, akik értékelik a kényelmet és a csendes, nyugodt környezetet. A háztartási gépek vadonatújak, a lakások külön-külön vagy együtt is megvásárolhatók.
Lakás jellemzői:
Földszinti lakás: 78 m², tágas konyhával és étkezővel, nagy szobával, amely könnyen kettéosztható. Ára: 117 millió Ft.
Első emeleti lakás: 99 m², három hálószobával, nappalival és erkéllyel. Duplex kialakítására is van lehetőség. Ára: 149 millió Ft.
Hátsó udvar: Két külön tároló helyiség és egy kis kert, amelyet kertépítész tervezett.
Nyílászárók: Minden ablak új, redőnnyel és szúnyoghálóval felszerelt.
Elhelyezkedés:
Kiváló megközelíthetőség: Mindössze 10 perces autóútra a British International School-tól, a főbb közlekedési útvonalak (Árpád híd, Margit híd) közelében. A tömegközlekedés (villamos, busz) gyalogosan is könnyen elérhető.
Szolgáltatások: Számos étterem, kávézó, pékség, túraútvonalak és alapvető szolgáltatások néhány perces sétára találhatók.
Környék jellemzői:
Csendes utca: A sorház egy nyugodt, békés utcában található, ahol biztosított a magánélet és a pihenés.
Családbarát: A közelben parkok, játszóterek és szabadidős létesítmények találhatók.
További információk:
Parkolás: Utcai parkolás elérhető.
Bútorozás: Megbeszélés tárgyát képezi.
Elérhetőség: A lakások szeptemberben költözhetők.
Ne hagyja ki ezt a különleges lehetőséget! Érdeklődjön most, és tekintse meg személyesen ezt az egyedülálló ingatlant!