Eladó Lakás
Hirdetéskód: 9308558
OTP Ingatlanpont - Takács Zsuzsanna
Felújításhoz személyi kölcsönt keres? Kalkuláljon itt! →61.00 m2
ALAPTERÜLET2
SZOBASZÁMnincs megadva
ÉPÍTÉSGáz (cirkó)
FŰTÉS- CSOK igénybe vehető nem
- Tetőtér beépíthető nem
- Építés éve 1980
- Fűtés Gáz (cirkó)
- Klíma nem
- Szigetelt nem
A+++
A++
A+
A
B
C
D
E
F
G
H
I
Az ingatlan leírása
Azonnali bevétel! Bérlővel együtt eladó felújított lakás a II. kerületben
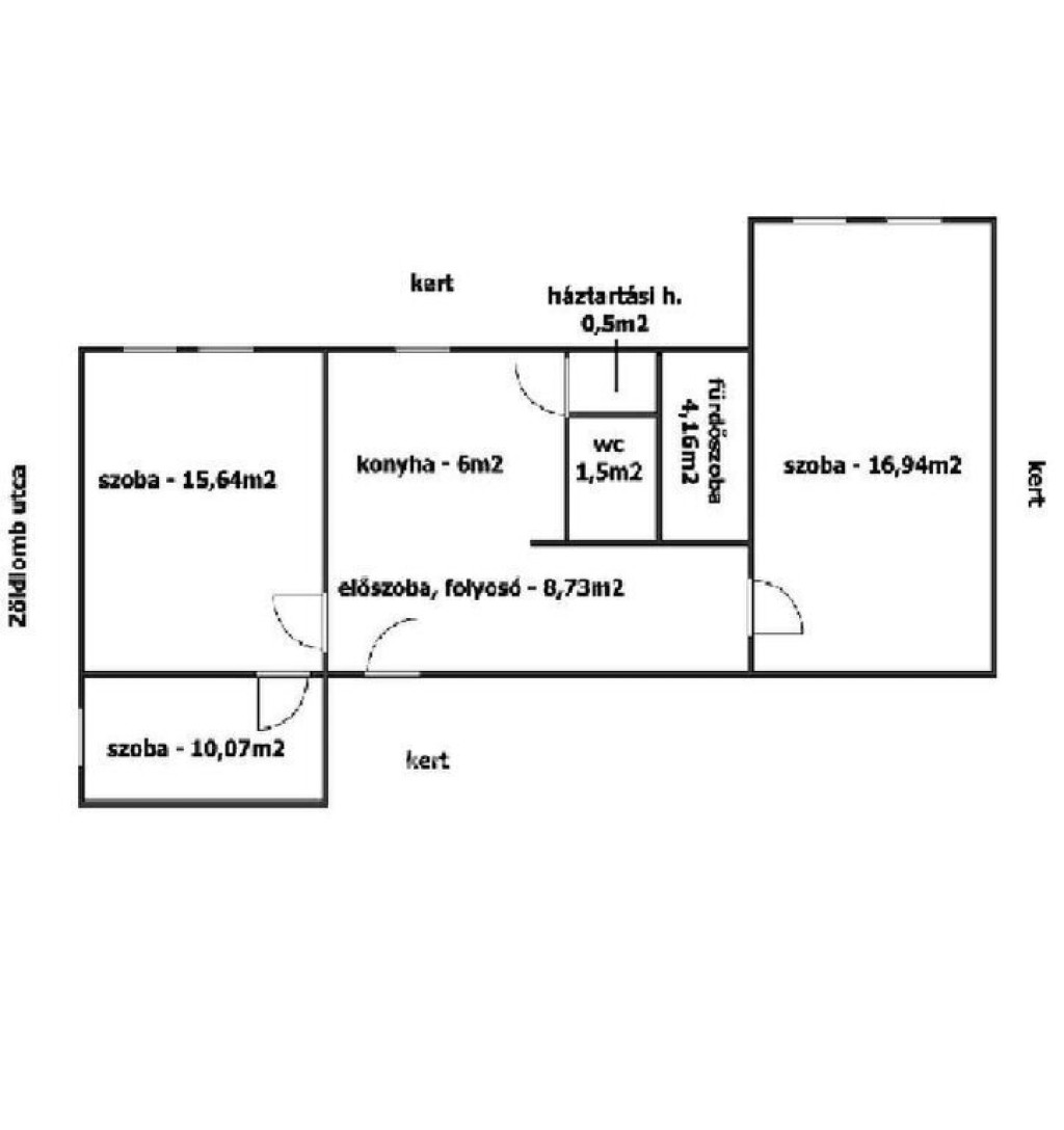
Budapest II. kerületében, a Zöldlomb utcában kínálunk megvételre egy 66 nm-es, napfényes, csendes, 2,5 szobás lakást, meglévő, megbízható bérlővel, ideális választás befektetők számára, azonnali hozam lehetőségével.
Az ingatlan 2020-ban teljes körű, igényes felújításon esett át, gépesített, klímával felszerelt, korszerű nyílászárókkal (2018) és 2025-ben cserélt cirkókazánnal, így fenntartása kiszámítható és hosszú távon is gazdaságos.
A lakás elosztása praktikus: 2 + 1 fél szoba, külön fürdő és WC, kamra, világos, jól élhető terek.
A lakás egy 8 lakásos, rendezett társasházban található, kulturált lakóközösséggel. A házhoz zöld kert és játszótér is tartozik, ami tovább növeli az ingatlan értékét és bérbeadhatóságát.
A társasház elektromos hálózata 2025-ben felújításra került.
Lokáció, könnyű kiadhatóság: buszmegálló a ház előtt (29, 111), pár perc séta bevásárlási lehetőségekhez, rendelőhöz, gyógyszertárhoz, iskola, óvoda a közelben, csendes, zöldövezeti környezet.
Parkolás az utcán ingyenesen megoldható, igény esetén garázs bérelhető a közelben. A lakás jelenleg bérbe adott, a bérlő maradna, így az ingatlan azonnali bevételt termel, külön ráfordítás nélkül.
Hívjon most és legyen Ön az új tulajdonos!
M325751
Az OTP Ingatlanpont, mint egyetlen közvetlen banki hátterű ingatlanközvetítő társaság teljes körű ügyintézéssel áll az eladók és a vevők rendelkezésére! A kínálatunkból választott ingatlan finanszírozásához minősített fogyasztóbarát, piaci és kedvezményes hitel- és lízingkonstrukciókat kínálunk (lakásvásárlási hitel, CSOK plusz, szabad felhasználású hitel, babaváró hitel, céges hitelek, pályázatok, amennyiben az ügyfél és az ingatlan megfelel a feltételeknek). Az adásvételi szerződés megkötéséhez igény szerint megbízható ügyvédi közreműködést biztosítunk, és segítséget nyújtunk az adásvételhez kapcsolódó egyéb ügyek intézéséhez.
Ha az új ingatlana megvásárlásához a jelenlegi ingatlanát el kell adnia, abban is szívesen segítünk.
Budapest II. kerületében, a Zöldlomb utcában kínálunk megvételre egy 66 nm-es, napfényes, csendes, 2,5 szobás lakást, meglévő, megbízható bérlővel, ideális választás befektetők számára, azonnali hozam lehetőségével.
Az ingatlan 2020-ban teljes körű, igényes felújításon esett át, gépesített, klímával felszerelt, korszerű nyílászárókkal (2018) és 2025-ben cserélt cirkókazánnal, így fenntartása kiszámítható és hosszú távon is gazdaságos.
A lakás elosztása praktikus: 2 + 1 fél szoba, külön fürdő és WC, kamra, világos, jól élhető terek.
A lakás egy 8 lakásos, rendezett társasházban található, kulturált lakóközösséggel. A házhoz zöld kert és játszótér is tartozik, ami tovább növeli az ingatlan értékét és bérbeadhatóságát.
A társasház elektromos hálózata 2025-ben felújításra került.
Lokáció, könnyű kiadhatóság: buszmegálló a ház előtt (29, 111), pár perc séta bevásárlási lehetőségekhez, rendelőhöz, gyógyszertárhoz, iskola, óvoda a közelben, csendes, zöldövezeti környezet.
Parkolás az utcán ingyenesen megoldható, igény esetén garázs bérelhető a közelben. A lakás jelenleg bérbe adott, a bérlő maradna, így az ingatlan azonnali bevételt termel, külön ráfordítás nélkül.
Hívjon most és legyen Ön az új tulajdonos!
M325751
Az OTP Ingatlanpont, mint egyetlen közvetlen banki hátterű ingatlanközvetítő társaság teljes körű ügyintézéssel áll az eladók és a vevők rendelkezésére! A kínálatunkból választott ingatlan finanszírozásához minősített fogyasztóbarát, piaci és kedvezményes hitel- és lízingkonstrukciókat kínálunk (lakásvásárlási hitel, CSOK plusz, szabad felhasználású hitel, babaváró hitel, céges hitelek, pályázatok, amennyiben az ügyfél és az ingatlan megfelel a feltételeknek). Az adásvételi szerződés megkötéséhez igény szerint megbízható ügyvédi közreműködést biztosítunk, és segítséget nyújtunk az adásvételhez kapcsolódó egyéb ügyek intézéséhez.
Ha az új ingatlana megvásárlásához a jelenlegi ingatlanát el kell adnia, abban is szívesen segítünk.