Eladó Lakás
Hirdetéskód: 9305845
OTP Ingatlanpont - Takács Zsuzsanna
Felújításhoz személyi kölcsönt keres? Kalkuláljon itt! →74.00 m2
ALAPTERÜLET3
SZOBASZÁMnincs megadva
ÉPÍTÉSnincs megadva
FŰTÉS- CSOK igénybe vehető nem
- Tetőtér beépíthető nem
- Építés éve 1930
- Klíma nem
- Szigetelt nem
A+++
A++
A+
A
B
C
D
E
F
G
H
I
Az ingatlan leírása
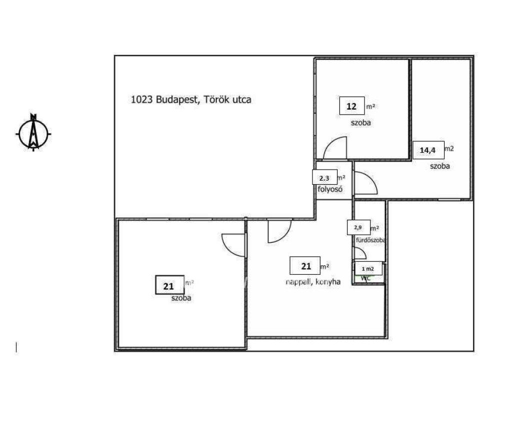
MODERN, KIVÁLÓ ELRENDEZÉSŰ LAKÁS, NAPPALI + 3 SZOBA!
Budapest II. kerületében, Rózsadombon ajánlok a figyelmébe egy 74 négyzetméteres, világos és tágas lakást, amely amerikai konyhás nappalival és három külön nyíló szobával rendelkezik.
A lakás világos, jól szellőző, modern burkolatokkal és minőségi nyílászárókkal felszerelt. A fűtés gáz-cirkóról működik radiátoros hőleadással, de a nappaliban meghagyták a cserépkályhát is, amibe egy elektromos kandallót szereltek, illetve az egyik hálóban megmaradt az eredeti, fával fűthető cserépkályha is.
A környék csendes, mégis mindenhez közel van. Boltok, iskola, óvoda, tömegközlekedés pár perc sétára.
Ideális választás családoknak vagy befektetésnek egyaránt!
M315254
Az OTP Ingatlanpont, mint egyetlen közvetlen banki hátterű ingatlanközvetítő társaság teljes körű ügyintézéssel áll az eladók és a vevők rendelkezésére! A kínálatunkból választott ingatlan finanszírozásához minősített fogyasztóbarát, piaci és kedvezményes hitel- és lízingkonstrukciókat kínálunk (lakásvásárlási hitel, CSOK plusz, szabad felhasználású hitel, babaváró hitel, céges hitelek, pályázatok, amennyiben az ügyfél és az ingatlan megfelel a feltételeknek). Az adásvételi szerződés megkötéséhez igény szerint megbízható ügyvédi közreműködést biztosítunk, és segítséget nyújtunk az adásvételhez kapcsolódó egyéb ügyek intézéséhez.
Ha az új ingatlana megvásárlásához a jelenlegi ingatlanát el kell adnia, abban is szívesen segítünk.
Budapest II. kerületében, Rózsadombon ajánlok a figyelmébe egy 74 négyzetméteres, világos és tágas lakást, amely amerikai konyhás nappalival és három külön nyíló szobával rendelkezik.
A lakás világos, jól szellőző, modern burkolatokkal és minőségi nyílászárókkal felszerelt. A fűtés gáz-cirkóról működik radiátoros hőleadással, de a nappaliban meghagyták a cserépkályhát is, amibe egy elektromos kandallót szereltek, illetve az egyik hálóban megmaradt az eredeti, fával fűthető cserépkályha is.
A környék csendes, mégis mindenhez közel van. Boltok, iskola, óvoda, tömegközlekedés pár perc sétára.
Ideális választás családoknak vagy befektetésnek egyaránt!
M315254
Az OTP Ingatlanpont, mint egyetlen közvetlen banki hátterű ingatlanközvetítő társaság teljes körű ügyintézéssel áll az eladók és a vevők rendelkezésére! A kínálatunkból választott ingatlan finanszírozásához minősített fogyasztóbarát, piaci és kedvezményes hitel- és lízingkonstrukciókat kínálunk (lakásvásárlási hitel, CSOK plusz, szabad felhasználású hitel, babaváró hitel, céges hitelek, pályázatok, amennyiben az ügyfél és az ingatlan megfelel a feltételeknek). Az adásvételi szerződés megkötéséhez igény szerint megbízható ügyvédi közreműködést biztosítunk, és segítséget nyújtunk az adásvételhez kapcsolódó egyéb ügyek intézéséhez.
Ha az új ingatlana megvásárlásához a jelenlegi ingatlanát el kell adnia, abban is szívesen segítünk.