Eladó Lakás
Hirdetéskód: 9293879
OTP Ingatlanpont Csongrád
Felújításhoz személyi kölcsönt keres? Kalkuláljon itt! →74.00 m2
ALAPTERÜLET3
SZOBASZÁMnincs megadva
ÉPÍTÉSGáz (cirkó)
FŰTÉS- CSOK igénybe vehető nem
- Tetőtér beépíthető nem
- Építés éve 1930
- Fűtés Gáz (cirkó)
- Klíma nem
- Szigetelt nem
A+++
A++
A+
A
B
C
D
E
F
G
H
I
Az ingatlan leírása
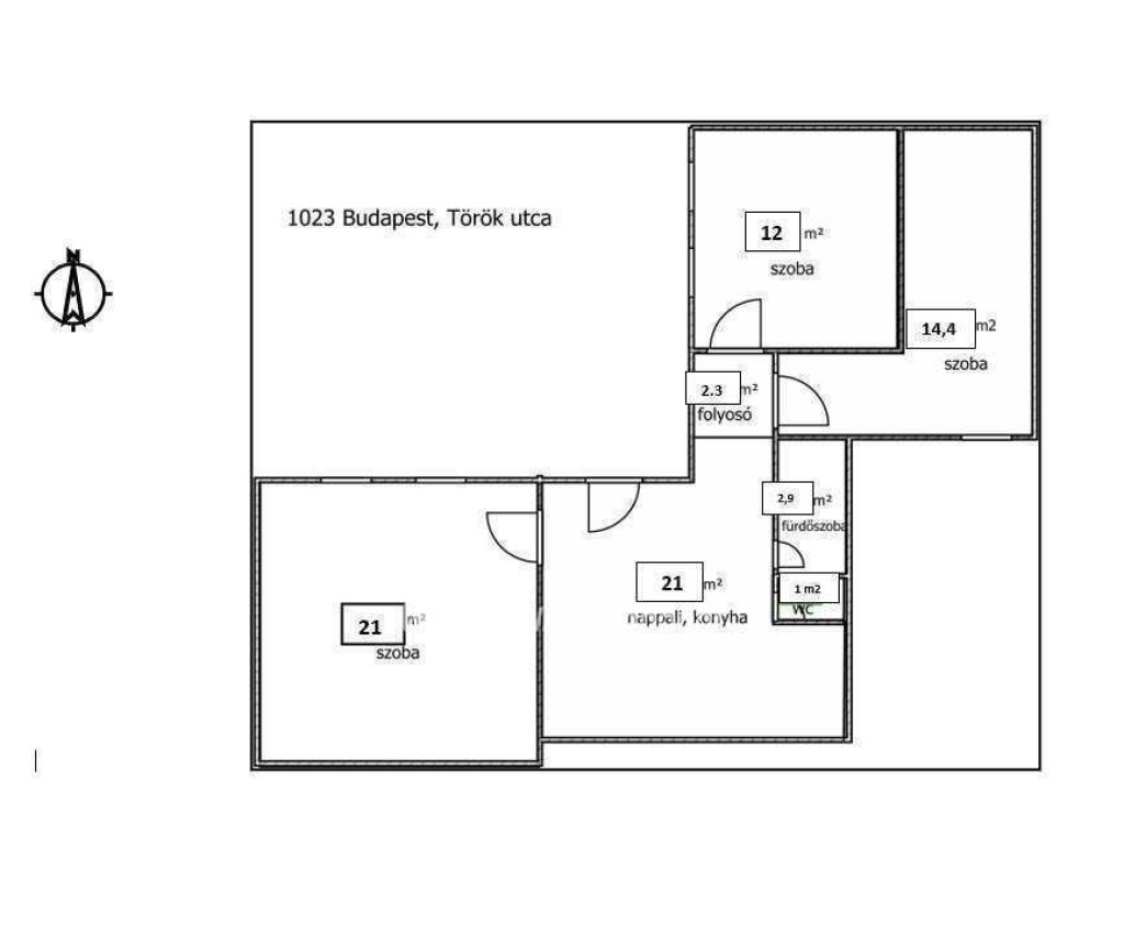
MODERN, KIVÁLÓ ELRENDEZÉSŰ LAKÁS, NAPPALI + 3 SZOBA!
Budapest II. kerületében, Rózsadombon ajánlok a figyelmébe egy 74 négyzetméteres, világos és tágas lakást, amely amerikai konyhás nappalival és három külön nyíló szobával rendelkezik.
A lakás világos, jól szellőző, modern burkolatokkal és minőségi nyílászárókkal felszerelt. A fűtés gáz-cirkóról működik radiátoros hőleadással, de a nappaliban meghagyták a cserépkályhát is, amibe egy elektromos kandallót szereltek, illetve az egyik hálóban megmaradt az eredeti, fával fűthető cserépkályha is.
A környék csendes, mégis mindenhez közel van. Boltok, iskola, óvoda, tömegközlekedés pár perc sétára.
Ideális választás családoknak vagy befektetésnek egyaránt!
Az OTP Bank kedvezményes lakáshitelével segítjük vásárlását, egyedi kamatfeltételekkel és díjmentes ügyintézéssel. Amennyiben a lakás felkeltette érdeklődését és szívesen megnézné, akkor hívjon bizalommal, akár hétvégén is!
Az energetikai tanúsítvány készítése folyamatban van, amint rendelkezésre áll, úgy azzal a hirdetés frissítésre kerül.
Budapest II. kerületében, Rózsadombon ajánlok a figyelmébe egy 74 négyzetméteres, világos és tágas lakást, amely amerikai konyhás nappalival és három külön nyíló szobával rendelkezik.
A lakás világos, jól szellőző, modern burkolatokkal és minőségi nyílászárókkal felszerelt. A fűtés gáz-cirkóról működik radiátoros hőleadással, de a nappaliban meghagyták a cserépkályhát is, amibe egy elektromos kandallót szereltek, illetve az egyik hálóban megmaradt az eredeti, fával fűthető cserépkályha is.
A környék csendes, mégis mindenhez közel van. Boltok, iskola, óvoda, tömegközlekedés pár perc sétára.
Ideális választás családoknak vagy befektetésnek egyaránt!
Az OTP Bank kedvezményes lakáshitelével segítjük vásárlását, egyedi kamatfeltételekkel és díjmentes ügyintézéssel. Amennyiben a lakás felkeltette érdeklődését és szívesen megnézné, akkor hívjon bizalommal, akár hétvégén is!
Az energetikai tanúsítvány készítése folyamatban van, amint rendelkezésre áll, úgy azzal a hirdetés frissítésre kerül.