Eladó Lakás
Hirdetéskód: 9246464

Ivenna Trade Kft.

83.00 m2
ALAPTERÜLET
3
SZOBASZÁM
nincs megadva
ÉPÍTÉS
nincs megadva
FŰTÉS
  • CSOK igénybe vehető nem
  • Tetőtér beépíthető nem
  • Építés éve 1910
  • Klíma nem
  • Szigetelt nem
Energetikai besorolás: Nincs meghatározva
A+++
A++
A+
A
B
C
D
E
F
G
H
I

Az ingatlan leírása

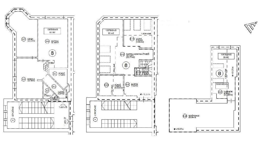
Budapest II. kerület, Rózsadomb alja, 95 m2 lakás eladó. Az ingatlan Buda közkedvelt, a Körszálló és a Duna közötti részén, csendes nyugodt környezetben helyezkedik el. A bruttó 116 m2-es, belső 3 szintes ingatlan két önálló, lépcsőházból nyíló, saját bejárattal rendelkező lakása egyedi, ideális lehetőség akár 2 generáció együttélésére is. Az 50 m2-es első emeleti lakásához tartozik egy 27 m2-es tetőtéri lakás, egy padlástéri 6 m2-es gardrób, illetve egy 24 m2-es tetőterasz, ahonnan a Körszállóra, illetve a Budai Vár Nemzeti Levéltárára nyílik panorámás kilátás. Az ingatlan értékét tovább növeli egy 6 m2-es alvógaléria. A 7 lakásos társasháznak saját kertje, a kerten belül 4 gépkocsi beállója, valamint egy közös pincéje is van elkülönített, saját használatú résszel. A lakás fűtését és melegvíz ellátását cirko gázkazán biztosítja, amit két hűtő-fűtő klíma egészít ki. Busz- és villamosmegálló a közelben, a Városmajor, a Széll Kálmán tér, a Mammut bevásárlóközpont, a Fény utcai piac és a Millenáris park pedig 5-10 perc sétával elérhető. Kiváló lehetőség állandó lakhatásra vagy befektetésként kiadásra. Bővebb információért keressen telefonon!

Térkép

A hirdető elérhetősége

Ivenna Trade Kft.

Nagy János
+36 20 356