Eladó Lakás
Hirdetéskód: 9215967
GDN Ingatlanhálózat - Harmónia
135.00 m2
ALAPTERÜLET3
SZOBASZÁMnincs megadva
ÉPÍTÉSGáz (cirkó)
FŰTÉS- CSOK igénybe vehető nem
- Tetőtér beépíthető nem
- Fűtés Gáz (cirkó)
- Klíma nem
- Szigetelt nem
A+++
A++
A+
A
B
C
D
E
F
G
H
I
Az ingatlan leírása
Közvetlenül a II. kerület határán, Mátyáshegyen, PANORÁMÁS, kifogástalan állapotú lakás HATALMAS TERASZOKKAL.
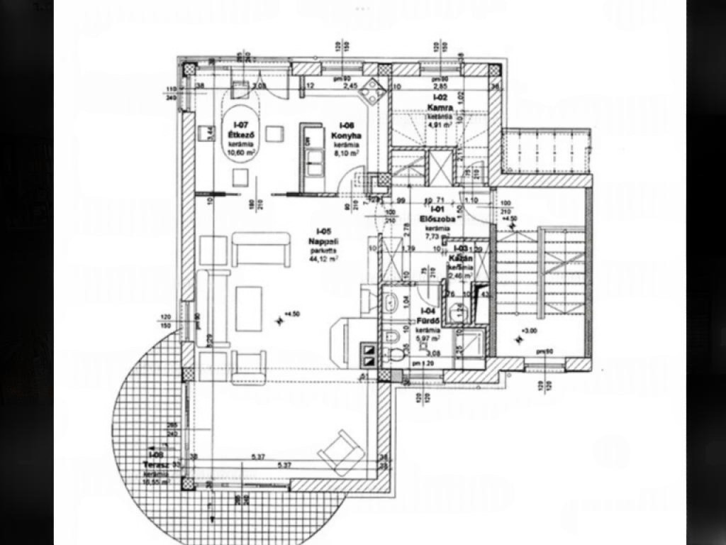
2001-ben épült 4 lakásos, gyönyörű állapotú házban, felső emeleti, belső kétszintes, nettó 135 m2-es, nappali + 2 hálószobás lakás eladó!
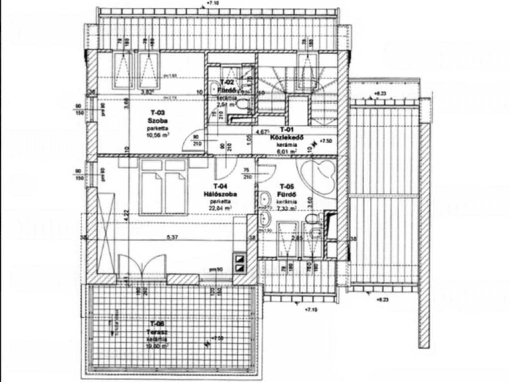
Két nagyméretű terasz növeli a lakás területét, egy 16.55 és egy 19.8 m2-es, ahonnan csodálatos városi és hegyvidéki panorámában gyönyörködhetünk.
A hatalmas, 44 m2-es nappaliban egy gyönyörű márványkandalló kapott helyet, amely hűvösebb időben meghitt, kellemes hangulatot varázsol. A nappaliból egy üveg tolóajtóval elválasztott étkező és konyha nyílik. Ha akarjuk, egybenyithatjuk a két teret.
Ezen a szinten helyet kapott még egy zuhanyzós fürdőszoba, egy kamra és egy gépészeti helyiség.
A két nagyméretű hálószoba az emeleten található, ahová gránit burkolatú lépcsőn jutunk fel.
Mindkét szoba panorámás. A nagyobb hálószoba egy közel 20 m2-es teraszkapcsolattal rendelkezik.
Az egész lakás rendkívül tágas és világos, körbejárja a nap.
MŰSZAKI TARTALOM:
- Kondenzációs kazán adja a fűtést
- a vizet NAPKOLLEKTOR melegíti
- Padlófűtés és radiátor is van
- a szobában HŰTŐ-FŰTŐ KLÍMA
- Távirányítású ELEKTROMOS REDŐNYÖK
- Funkbuss-rendszerrel működő világítás
- a fürdőszobákban fűtött tükör, ami soha nem párásodik be
- FŰTHETŐ TERASZOK
- KÖZPONTI PORSZÍVÓ
A ház alagsori részén egy finn szauna található zuhanyzóval, wc-vel.
A lakáshoz tartozik egy 15 m2-es saját, zárható tároló és egy kétállásos teremgarázs hely, valamint egy felszíni autóbeálló.
A duplagarázs külön helyrajzi számon van. Ennek a vételára 30 millió forint és a lakással együtt eladó. ...TOVÁBBI, TÖBBEZRES INGATLAN KÍNÁLAT: - GDN azonosító: 389911
2001-ben épült 4 lakásos, gyönyörű állapotú házban, felső emeleti, belső kétszintes, nettó 135 m2-es, nappali + 2 hálószobás lakás eladó!
Két nagyméretű terasz növeli a lakás területét, egy 16.55 és egy 19.8 m2-es, ahonnan csodálatos városi és hegyvidéki panorámában gyönyörködhetünk.
A hatalmas, 44 m2-es nappaliban egy gyönyörű márványkandalló kapott helyet, amely hűvösebb időben meghitt, kellemes hangulatot varázsol. A nappaliból egy üveg tolóajtóval elválasztott étkező és konyha nyílik. Ha akarjuk, egybenyithatjuk a két teret.
Ezen a szinten helyet kapott még egy zuhanyzós fürdőszoba, egy kamra és egy gépészeti helyiség.
A két nagyméretű hálószoba az emeleten található, ahová gránit burkolatú lépcsőn jutunk fel.
Mindkét szoba panorámás. A nagyobb hálószoba egy közel 20 m2-es teraszkapcsolattal rendelkezik.
Az egész lakás rendkívül tágas és világos, körbejárja a nap.
MŰSZAKI TARTALOM:
- Kondenzációs kazán adja a fűtést
- a vizet NAPKOLLEKTOR melegíti
- Padlófűtés és radiátor is van
- a szobában HŰTŐ-FŰTŐ KLÍMA
- Távirányítású ELEKTROMOS REDŐNYÖK
- Funkbuss-rendszerrel működő világítás
- a fürdőszobákban fűtött tükör, ami soha nem párásodik be
- FŰTHETŐ TERASZOK
- KÖZPONTI PORSZÍVÓ
A ház alagsori részén egy finn szauna található zuhanyzóval, wc-vel.
A lakáshoz tartozik egy 15 m2-es saját, zárható tároló és egy kétállásos teremgarázs hely, valamint egy felszíni autóbeálló.
A duplagarázs külön helyrajzi számon van. Ennek a vételára 30 millió forint és a lakással együtt eladó. ...TOVÁBBI, TÖBBEZRES INGATLAN KÍNÁLAT: - GDN azonosító: 389911