Eladó Lakás
Hirdetéskód: 9253716

-

Felújításhoz személyi kölcsönt keres? Kalkuláljon itt! →
100.00 m2
ALAPTERÜLET
3
SZOBASZÁM
Tégla
ÉPÍTÉS
Gáz (cirkó)
FŰTÉS
  • Kilátás Utcai
  • Tájolás Nyugat
  • Ingatlan komfort Duplakomfortos
  • Parkolási lehetőség Utcán, közterületen
  • Fűtés Gáz (cirkó)
  • Építőanyag Tégla
  • Klíma igen
Energetikai besorolás: Nincs meghatározva
A+++
A++
A+
A
B
C
D
E
F
G
H
I

Az MBH Bank személyi kölcsön ajánlata

Fizetett hirdetés
1 millió Ft
6 évre
20 585 Ft/hó
THM: 14.5%
Részletek →
2 millió Ft
6 évre
41 169 Ft/hó
THM: 14.5%
Részletek →
3 millió Ft
6 évre
61 754 Ft/hó
THM: 14.5%
Részletek →

A tájékoztatás nem teljes körű és nem minősül ajánlattételnek.

Az ingatlan leírása

Budapest II. kerületben, Duna-part közelében, csendes utcában, három szobás, két fürdőszobás, különös gondossággal felújított design lakás eladó.

INGATLAN HELYSZÍNE:
Az ingatlan II. kerület Viziváros- Felhévíz városrészek határán, a Bem József térről nyíló kis utcában (Lipthay u.) helyezkedik el. Patinás lakóépületek, szépen ápolt terek, kormányzati épületek, hangulatos kis üzletek, kávézók, összességében belbudai rendezettség és magas ellátottság jellemzi a környéket. Külügyminisztérium, Bem rakpart, Millenáris Park, Margit-sziget 5-10 perc sétára vannak. A környék nagyon biztonságos, a tárgyi épület diplomaták munkahelyéül is szolgál.

ÉPÜLET JELLEMZŐI:
A 20 lakásos téglaépület az 1890-ben épült, szintenként 5 lakással. A társasház kitűnő állapotnak örvend, köszönhetően a rendszeres karbantartásnak és a gondos közös képviselőnek. A pénzügyi helyzet rendezett, megtakarítása is van a lakóközösségnek. Az épület alápincézett (tárolók), a tető cserépfedés héjazattal lett kialakítva. A szomszédok csendesek és barátságosak, vigyáznak a közös értékekre.

LAKÁS JELLEMZŐI:
A lakás profi lakberendező és belsőépítész tervei alapján, valamint felügyelete mellett került teljeskörű felújításra, ami hosszútávú gondtalan használatot prognosztizál a leendő új tulajdonosnak.
A klimatizált lakás kitűnő beosztású, duplakomfortos, utcai és udvari nézetű egyszerre, kis előfolyosóról nyílik, ami kizárólag ehhez a lakáshoz vezet. A lakásba lépve az előszoba-közlekedőn túl egy nagy gardrób rész lett kialakítva, mennyezetig érő szekrényekkel tárolókkal. Itt kapott helyet a beépített mosógép és a szárítógép is.
Új víz-, villany-, gázvezetékek, új, fából készült biztonsági bejárati ajtó, gazdaságos zárt égésterű kondenzációs kazán padlóban elvezetett fűtéscsövekkel, méretre gyártott beépített bútorok, gépesített konyhabútor áll használatra készen. Az egyedi bútorok mellett modern és energiatakarékos világítástechnika teszi különlegessé az enteriőrt.
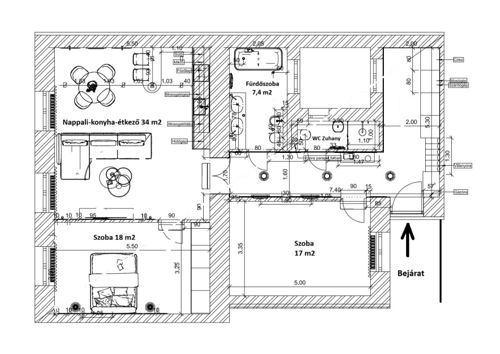
A nappali és az egyik szoba nyugati fekvésű, a harmadik szoba keletre, csendes belső udvarra néz. A lakásban fürdőkád és épített zuhany is beépítésre került, továbbá a két WC mellett bidével is felszerelt. A nagyméretű ablakoknak köszönhetően világos lakás, kelet-nyugati fekvése miatt keresztbe is szellőztethető. Alaprajz a fotók között található.
Az ingatlan könnyen megközelíthető, gyakorlatilag a lépcsőházból nyílik, mindössze 6 lépcsőfok az utcáról, hivatalosan földszinti besorolású.

LAKÁS MÉRETEI:
- teljes méret: 106 m2
- konyha-nappali: 34 m2
- szoba: 18 m2
- szoba: 17 m2
- gardrób: 10 m2
- előszoba: 9 m2
- fürdőszoba, Wc, bidé: 7,4 m2
- zuhanyzó, Wc: 3 m2
- tároló: 5,5 m2
- belmagasság: 3,75 méter

MŰSZAKI FELSZERELTSÉG:
Elektromos teljesítmény: 40 Amper rézvezetékekkel, FI relével.
A fűtést és a meleg vizet új kondenzációs cirkó kazán biztosítja.
Mindhárom szoba Gree comfort hűtő-fűtő klímával felszerelt
A felújítás főbb részei:
- új fűtésrendszer telefonról is vezérelhető energiatakarékos legkorszerűbb kondenzációs kazánnal
- egyedi, sok fiókos konyhabútor Bosch konyhagépekkel, Blum vasalatokkal, beépített szelektív hulladéktárolóval
- beépített Bosch mosogatógép és hűtők, Bosch indukciós főzőlap
- prémium szaniterek és csaptelepek, termosztátos esőztetős zuhany
- padlóban elvezetett fűtéscsövek, új radiátorok stb.

KÖLTSÉGEK:
Közös költség: 35.000 Ft/hó, amely magába foglalja a korlátlan vízhasználatot, a csatornadíjat, a szemétdíjat, a közös villanyfogyasztást, karbantartást, a felújítási alapot, a közös képviselő díjazását és a biztosítást.
Gázszámla kb: 6-8.000 Ft/hó.
Villany: 2-5.000 Ft
Összes rezsi 100 m2-re kb.: 43-48 ezer Ft

TÁROLÓ:
Az lakáshoz tartozik pinceszinten egy zárható 5,5 m2- es tároló.

PARKOLÁS:
A tulajdonosoknak szinte ingyenes parkolási igényelhető az önkormányzat parkolási társulásától. További lehetőség a környező mélygarázsokban díj ellenében.

KÖZLEKEDÉS:
Nagyon jó a tömegközlekedés, 4-6-os, 17, 19, 41-es fonódó villamosok, H5-ös hév, 6, 9-es autóbuszok, 931, 923, 934-es éjszakai járatok 3 perces sétával elérhetőek. A Batthyány téri 2-es Metró és további buszok 10 perc távolságra vannak.
Óvoda, iskola, játszótér, sportolási lehetőségek, mind 10 percen belül.
A vételár tartalmazza a konyhabútort a beépített garanciális konyhagépekkel és minden egyéb ingóságot is. A többi gépészeti egység is új, minden garanciális.

Ajánlom csendes utcában, rendezett házban, gyönyörűen modernizált otthont keresőknek. Kitűnő elhelyezkedése és közlekedése miatt kisebb cégközpontnak, és bérbe adásra is alkalmas. Értékálló befektetés.

A fotók nem látványtervek, a személyesen megtekinthető valós állapotot tükrözik.
Az ingatlan jogilag rendezett, gyorsan birtokba vehető.
Pénzintézetek hitelfolyosítási követelményeinek megfelel a lakás.
További fotókat, videót szívesen küldünk.

Kizárólagos megbízás, kulcs az irodában.
Felmerülő kérdés esetén, várom hívását akár hétvégén is.

Köszönettel, Vincze Zsolt

Térkép

Ingatlan adásvétel ügyvédi díja
600 000 Ft
a hirdetésben szereplő ár alapján
  • A vételár 0,45%-a
  • Szerződéscsomag teljeskörű képviselettel
  • Ingyenes tulajdoni lap ellenőrzés
  • Az ÁFA-t már tartalmazza
Érdekel az ajánlat →
A tájékoztatás nem teljes körű és nem minősül ajánlattételnek. Minimum díj: 150 000 Ft, maximum díj: 600 000 Ft. A díj kizárólag lakóingatlan adásvételére vonatkozik.

A hirdető elérhetősége

V. ingatlan

+36 20 582