Eladó Lakás
Hirdetéskód: 9254109
Benefit Line (OC)
Felújításhoz személyi kölcsönt keres? Kalkuláljon itt! →84.00 m2
ALAPTERÜLET3
SZOBASZÁMnincs megadva
ÉPÍTÉSnincs megadva
FŰTÉS- CSOK igénybe vehető nem
- Tetőtér beépíthető nem
- Építés éve 1925
- Klíma nem
- Szigetelt nem
A+++
A++
A+
A
B
C
D
E
F
G
H
I
Az ingatlan leírása
RÉMIUM DUPLEX LAKÁS ELADÓ PASARÉT SZÍVÉBEN – MŰTEREM VILLÁBAN, BELVÁROSI KÉNYELEMMEL ÉS ZÖLDÖVEZETI NYUGALOMMAL
Pasarét egyik legszebb, örökzöldekkel övezett utcájában kínáljuk megvételre ezt a különleges atmoszférájú, belsőépítész által tudatosan megtervezett, magas esztétikai értéket képviselő duplex lakást.
A 84 m²-es lakóteret további 8 m² napsütötte terasz és egy 12 m²-es, lakással egybenyitott tároló egészíti ki. A lakás keleti–déli tájolású, egész nap világos, finom, harmonikus terekkel.
A terasz és az ablakok a hátsó, gondozott, örökzöld kertre néznek, ahol a város zaja már nem hallatszik – a csend és a természet közelsége azonnal érezhető.
2020-ban teljes körű, magas minőségű felújítás
A korszerűsítés minden részletre kiterjedt:
- új elektromos-, riasztó-, víz- és fűtésrendszer (kondenzációs kazán)
- egyedi, szigetelt fa nyílászárók
-fa padló, prémium gres burkolatok, Kerakoll falmegoldások
-Laufen és Hansgrohe szaniterek
- egyedi tervezésű konyha AEG készülékekkel
- AEG mosó- és szárítógép
Praktikus, jól használható két szinten
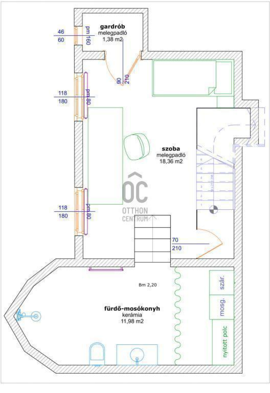
ALSÓ SZINT
- 2,70 m belmagasság
-szoba, gardrób, fürdőszoba, külön mosóhelyiség
- az ablakok 110 cm parapetmagassága biztosítja a privát, zöld kertre néző kilátást
EXTRA LEHETŐSÉG: külön bejáratú iroda vagy rendelő is kialakítható – ideális otthoni munkavégzéshez
MAGASFÖLDSZINT
* az udvar felől 1. emeleti magasságnak felel meg
* 3,20 m belmagasság – elegáns, levegős térérzet
* amerikai konyhás nappali, napfényes terasz
* hálószoba gardróbszekrénnyel
* zuhanyzós fürdőszoba
* tágas előtér
A TÁRSASHÁZ
* 9 lakásos, rendezett épület jó lakóközösséggel
* udvari gépkocsibeálló kialakítható igény esetén
* a kapu, ajtó és lépcsőház felújítása tervezés alatt
ELHELYEZKEDÉS
A környék infrastruktúrája kiváló:
Budagyöngye, Mammut és a Széll Kálmán tér tömegközlekedéssel 10–20 perc alatt elérhető.
A közelben játszóterek, iskolák, óvodák, bevásárlási és sportolási lehetőségek találhatók, a környék pedig stabil, értéktartó ingatlanpiacáról ismert.
Ez a lakás valódi ritkaság Pasaréten: prémium minőség, inspiráló környezet és átgondolt belső tér egyetlen, időtálló értéket képviselő otthonban.
Pasarét egyik legszebb, örökzöldekkel övezett utcájában kínáljuk megvételre ezt a különleges atmoszférájú, belsőépítész által tudatosan megtervezett, magas esztétikai értéket képviselő duplex lakást.
A 84 m²-es lakóteret további 8 m² napsütötte terasz és egy 12 m²-es, lakással egybenyitott tároló egészíti ki. A lakás keleti–déli tájolású, egész nap világos, finom, harmonikus terekkel.
A terasz és az ablakok a hátsó, gondozott, örökzöld kertre néznek, ahol a város zaja már nem hallatszik – a csend és a természet közelsége azonnal érezhető.
2020-ban teljes körű, magas minőségű felújítás
A korszerűsítés minden részletre kiterjedt:
- új elektromos-, riasztó-, víz- és fűtésrendszer (kondenzációs kazán)
- egyedi, szigetelt fa nyílászárók
-fa padló, prémium gres burkolatok, Kerakoll falmegoldások
-Laufen és Hansgrohe szaniterek
- egyedi tervezésű konyha AEG készülékekkel
- AEG mosó- és szárítógép
Praktikus, jól használható két szinten
ALSÓ SZINT
- 2,70 m belmagasság
-szoba, gardrób, fürdőszoba, külön mosóhelyiség
- az ablakok 110 cm parapetmagassága biztosítja a privát, zöld kertre néző kilátást
EXTRA LEHETŐSÉG: külön bejáratú iroda vagy rendelő is kialakítható – ideális otthoni munkavégzéshez
MAGASFÖLDSZINT
* az udvar felől 1. emeleti magasságnak felel meg
* 3,20 m belmagasság – elegáns, levegős térérzet
* amerikai konyhás nappali, napfényes terasz
* hálószoba gardróbszekrénnyel
* zuhanyzós fürdőszoba
* tágas előtér
A TÁRSASHÁZ
* 9 lakásos, rendezett épület jó lakóközösséggel
* udvari gépkocsibeálló kialakítható igény esetén
* a kapu, ajtó és lépcsőház felújítása tervezés alatt
ELHELYEZKEDÉS
A környék infrastruktúrája kiváló:
Budagyöngye, Mammut és a Széll Kálmán tér tömegközlekedéssel 10–20 perc alatt elérhető.
A közelben játszóterek, iskolák, óvodák, bevásárlási és sportolási lehetőségek találhatók, a környék pedig stabil, értéktartó ingatlanpiacáról ismert.
Ez a lakás valódi ritkaság Pasaréten: prémium minőség, inspiráló környezet és átgondolt belső tér egyetlen, időtálló értéket képviselő otthonban.