Eladó Lakás
Hirdetéskód: 9252394
OTP Ingatlanpont - Takács Zsuzsanna
Felújításhoz személyi kölcsönt keres? Kalkuláljon itt! →84.00 m2
ALAPTERÜLET3
SZOBASZÁMnincs megadva
ÉPÍTÉSGáz (cirkó)
FŰTÉS- CSOK igénybe vehető nem
- Tetőtér beépíthető nem
- Építés éve 1930
- Fűtés Gáz (cirkó)
- Klíma nem
- Szigetelt nem
A+++
A++
A+
A
B
C
D
E
F
G
H
I
Az ingatlan leírása
BUDAPEST, 2.KERÜLETÉBEN, PASARÉTEN ,MŰTEREM VILLÁBAN ELADÓ EGY MAGAS ESZTÉTIKAI ÉRZÉKKEL TERVEZETT DUPLA KOMFORTOS DUPLEX LAKÁS!
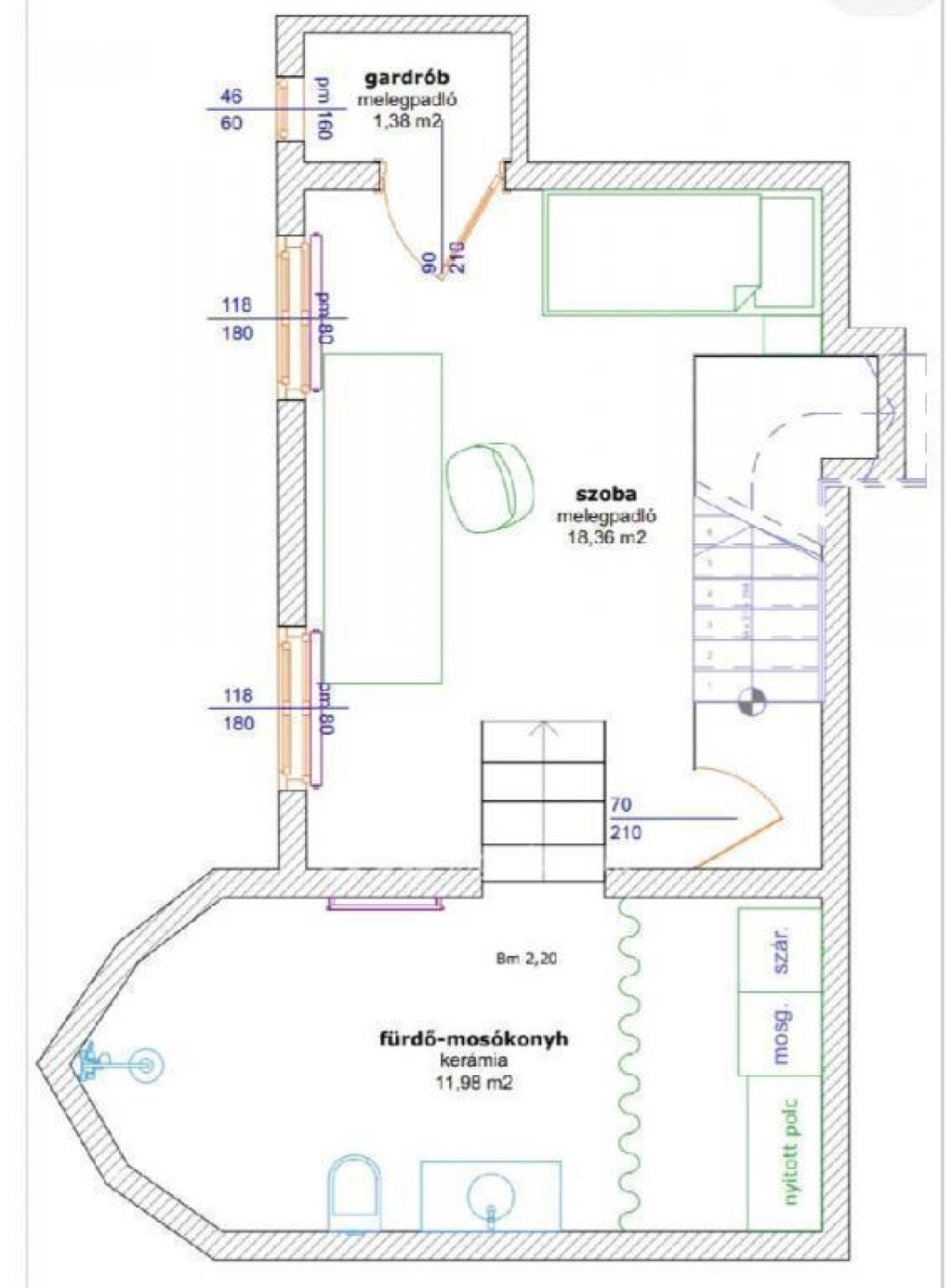
A lakás alapterülete 84nm, nappali étkező-konyha, + 2hálószoba, 2 fürdőszoba, + 12nm a lakással egybenyitott tároló. Terasza 8nm.
Ablakai és a napsütötte terasza a hátsó, örökzöld növényekkel beültetett kertre néznek, ahova a forgalom zaja nem hallatszik be.
Fekvése Kelet-déli fekvés, így egész nap világos.
2020-ban teljes körű felújítás történt, magas minőségi anyagokkal, termékekkel.
-Új kondenzációs kazán
-egyedi szigetelt fa nyílászárók
-fapadló, gres padlólapok
-Laufen szaniterek és csaptelepek
-egyedi konyha, AEG főzőlap
-AEG mosó és szárítógép
Belső kétszintes elrendezés:
1. ALSÓ SZINT
Az ablakok magassága a talajtól: 110cm, a zöld kertre látni.
Szoba, gardrób, fürdőszoba és mosóhelyiség.
2,7méteres belmagasság.
EXTRA: külön bejáratú iroda, rendelő kialakítható.
2. MAGASFÖLDSZINT
AZ UDVAR IRÁNYÁBÓL 1.EMELETNEK felel meg.
3,2 méter belmagasság, levegős, elegáns térérzet.
Napsütötte terasz, tágas amerikai konyhás nappali, szoba gardróbszekrénnyel, zuhanyzós fürdőszoba, tágas előtér.
Az épület : 9 lakásos, közepes társasház, jó lakóközösséggel.
Parkolás az utcán díjmentes, de igény szerint autóbeálló is kialakítható az udvarban.
A kapu, ajtó , lépcsőház tervezett felújítás előtt áll.
Elhelyezkedése:
Kiváló infrastruktúrával rendelkezik. Budagyöngye, Mammut bevásárlóközpont 10-20 perc alatt elérhetőek.
Pékség, Aldi néhány percre található.
M319900
Az OTP Ingatlanpont, mint egyetlen közvetlen banki hátterű ingatlanközvetítő társaság teljes körű ügyintézéssel áll az eladók és a vevők rendelkezésére! A kínálatunkból választott ingatlan finanszírozásához minősített fogyasztóbarát, piaci és kedvezményes hitel- és lízingkonstrukciókat kínálunk (lakásvásárlási hitel, CSOK plusz, szabad felhasználású hitel, babaváró hitel, céges hitelek, pályázatok). Az adásvételi szerződés megkötéséhez igény szerint megbízható ügyvédi közreműködést biztosítunk, és segítséget nyújtunk az adásvételhez kapcsolódó egyéb ügyek intézéséhez. Ha az új ingatlana megvásárlásához a jelenlegi ingatlanát el kell adnia, abban is szívesen segítünk.
A lakás alapterülete 84nm, nappali étkező-konyha, + 2hálószoba, 2 fürdőszoba, + 12nm a lakással egybenyitott tároló. Terasza 8nm.
Ablakai és a napsütötte terasza a hátsó, örökzöld növényekkel beültetett kertre néznek, ahova a forgalom zaja nem hallatszik be.
Fekvése Kelet-déli fekvés, így egész nap világos.
2020-ban teljes körű felújítás történt, magas minőségi anyagokkal, termékekkel.
-Új kondenzációs kazán
-egyedi szigetelt fa nyílászárók
-fapadló, gres padlólapok
-Laufen szaniterek és csaptelepek
-egyedi konyha, AEG főzőlap
-AEG mosó és szárítógép
Belső kétszintes elrendezés:
1. ALSÓ SZINT
Az ablakok magassága a talajtól: 110cm, a zöld kertre látni.
Szoba, gardrób, fürdőszoba és mosóhelyiség.
2,7méteres belmagasság.
EXTRA: külön bejáratú iroda, rendelő kialakítható.
2. MAGASFÖLDSZINT
AZ UDVAR IRÁNYÁBÓL 1.EMELETNEK felel meg.
3,2 méter belmagasság, levegős, elegáns térérzet.
Napsütötte terasz, tágas amerikai konyhás nappali, szoba gardróbszekrénnyel, zuhanyzós fürdőszoba, tágas előtér.
Az épület : 9 lakásos, közepes társasház, jó lakóközösséggel.
Parkolás az utcán díjmentes, de igény szerint autóbeálló is kialakítható az udvarban.
A kapu, ajtó , lépcsőház tervezett felújítás előtt áll.
Elhelyezkedése:
Kiváló infrastruktúrával rendelkezik. Budagyöngye, Mammut bevásárlóközpont 10-20 perc alatt elérhetőek.
Pékség, Aldi néhány percre található.
M319900
Az OTP Ingatlanpont, mint egyetlen közvetlen banki hátterű ingatlanközvetítő társaság teljes körű ügyintézéssel áll az eladók és a vevők rendelkezésére! A kínálatunkból választott ingatlan finanszírozásához minősített fogyasztóbarát, piaci és kedvezményes hitel- és lízingkonstrukciókat kínálunk (lakásvásárlási hitel, CSOK plusz, szabad felhasználású hitel, babaváró hitel, céges hitelek, pályázatok). Az adásvételi szerződés megkötéséhez igény szerint megbízható ügyvédi közreműködést biztosítunk, és segítséget nyújtunk az adásvételhez kapcsolódó egyéb ügyek intézéséhez. Ha az új ingatlana megvásárlásához a jelenlegi ingatlanát el kell adnia, abban is szívesen segítünk.