Eladó Lakás
Hirdetéskód: 9203218
Duna House Óbuda
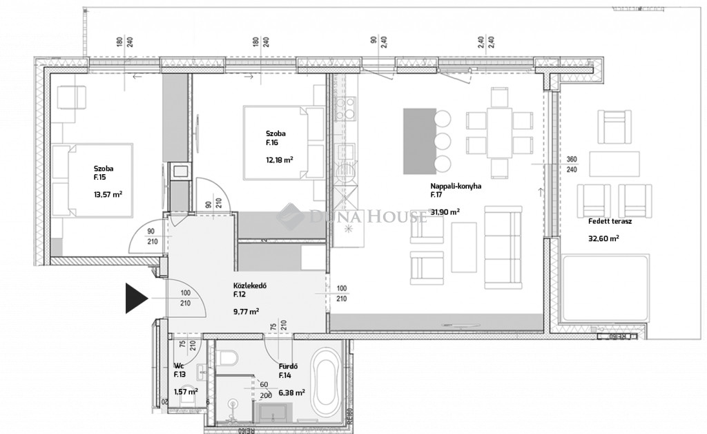
116 m2
ALAPTERÜLET3
SZOBASZÁMnincs megadva
ÉPÍTÉSnincs megadva
FŰTÉS- CSOK igénybe vehető nem
- Tetőtér beépíthető nem
- Építés éve 2025
- Klíma nem
- Szigetelt nem
A+++
A++
A+
A
B
C
D
E
F
G
H
I
Az ingatlan leírása
Új építésű elegancia Pasaréten!
A kortárs luxus új szintje: modern építészet, innovatív technológia és kompromisszummentes kényelem. A II. kerület egyik legkedveltebb, zöldövezeti részén, Pasarét szívében valósult meg ez az exkluzív, 2025-ben épült 5 lakásos, liftes társasház, melyben most még elérhetők prémium kialakítású lakások. A dús növényzettel teli, 2234 m2-es telekre épült 3 szintes ingatlan a városi kényelem és a természetközeli élet ideális kombinációját kínálja. A lakások kialakításánál különösen ügyeltek a privát terekre. Kertkapcsolat a földszinten, zöld lombkoronás kilátás az emeleten, és égbe nyíló panoráma a penthouse-ból - mindez elegáns, prémium kivitelben. A lakások mindegyike értékálló, gondosan megtervezett otthon a legigényesebbek számára. A társasház épülete minőségi anyagokból, modern építészeti megoldásokkal készült, letisztult homlokzattal és elegáns terekkel. Minden lakás világos, tágas, teraszos, és energiatakarékos gépészeti megoldásokkal felszerelt. A lakások azonnal költözhetőek. Műszaki tartalom- előregyártott zsalupallós, monolit vasbeton födémszerkezetek- 20 cm vastag, többrétegű lakáselválasztó falak, hálószobák között 12,5 cm vastag falszerkezetek-homlokzati falakon 20 cm fekete üvegszövettel kasírozott kőzetgyapot hőszigetelés- rámpafűtés a kocsibejárók, garázsfelhajtók burkolata alatt -akadálymentes felvonó-geotermikus hűtés-fűtés -Wavin rendszerű meleg vizes központi padlófűtés, mennyezetfűtés-hűtés, kiegészítésként Daikin fan-coilok- költséghatékony H-tarifa-Helios KWL típusú, központi hővisszanyerős szellőzőgép -távolvasási funkcióval rendelkező vízmérők- nyílászárók üvegezése 3 rétegű hőszigetelő- a fürdőkben elektromos törölközőszárítós radiátorok- a fürdő és wc helyiségekben elektromos padlófűtés- OKOSOTTHON LOXONE : világításvezérlés, árnyékolás, fűtés és hűtés, ébresztés, jelenlét szimuláció, riasztás, jó éjt mód, stb. A lakásokhoz 2 saját parkolóhely és 1 tároló tartozik - Ezek nincsenek benne az árban.
Főbb előnyök:
Pasarét - zöldövezet Buda közepén, Rengeteg fa, park, csendes utcák - szinte kertvárosi hangulat, de mégis közel a belvároshoz (autóval vagy busszal 10-15 perc a Széll Kálmán tér).
Kiváló közlekedés:
Az 5-ös, 91-es, 155-ös, 291-es buszok és a 61-es villamos megállói a közelben. Minőségi lakókörnyezet, Sok régi villaház, új, modern társasház, és igényesen felújított lakás van itt. Emiatt az ingatlanárak is magasabbak az átlagosnál. Presztízs és nyugalom, Pasarétnek van egyfajta régi budai polgári hangulata - sok híres ember is itt lakott (pl. építészek, művészek, értelmiségiek). A környék csendes, biztonságos, és kifejezetten családbarát. Kávézók, iskolák, sportlehetőségek. Népszerű hely a Pasarét Bisztró, a Pasaréti templom melletti tér és környezete. A közelben van több jó iskola (pl. Piarista Gimnázium, Francia Iskola, Britannica, International School). A környék ideális futásra, sétára, kutyázásra is.
A KAPY 16 ideális választás mindazoknak, akik a budai eleganciát, a minőséget és a nyugalmat keresik, anélkül, hogy lemondanának a város közelségéről.
Ha felkeltette az ingatlan az érdeklődését , kérem keressen bizalommal.
A kortárs luxus új szintje: modern építészet, innovatív technológia és kompromisszummentes kényelem. A II. kerület egyik legkedveltebb, zöldövezeti részén, Pasarét szívében valósult meg ez az exkluzív, 2025-ben épült 5 lakásos, liftes társasház, melyben most még elérhetők prémium kialakítású lakások. A dús növényzettel teli, 2234 m2-es telekre épült 3 szintes ingatlan a városi kényelem és a természetközeli élet ideális kombinációját kínálja. A lakások kialakításánál különösen ügyeltek a privát terekre. Kertkapcsolat a földszinten, zöld lombkoronás kilátás az emeleten, és égbe nyíló panoráma a penthouse-ból - mindez elegáns, prémium kivitelben. A lakások mindegyike értékálló, gondosan megtervezett otthon a legigényesebbek számára. A társasház épülete minőségi anyagokból, modern építészeti megoldásokkal készült, letisztult homlokzattal és elegáns terekkel. Minden lakás világos, tágas, teraszos, és energiatakarékos gépészeti megoldásokkal felszerelt. A lakások azonnal költözhetőek. Műszaki tartalom- előregyártott zsalupallós, monolit vasbeton födémszerkezetek- 20 cm vastag, többrétegű lakáselválasztó falak, hálószobák között 12,5 cm vastag falszerkezetek-homlokzati falakon 20 cm fekete üvegszövettel kasírozott kőzetgyapot hőszigetelés- rámpafűtés a kocsibejárók, garázsfelhajtók burkolata alatt -akadálymentes felvonó-geotermikus hűtés-fűtés -Wavin rendszerű meleg vizes központi padlófűtés, mennyezetfűtés-hűtés, kiegészítésként Daikin fan-coilok- költséghatékony H-tarifa-Helios KWL típusú, központi hővisszanyerős szellőzőgép -távolvasási funkcióval rendelkező vízmérők- nyílászárók üvegezése 3 rétegű hőszigetelő- a fürdőkben elektromos törölközőszárítós radiátorok- a fürdő és wc helyiségekben elektromos padlófűtés- OKOSOTTHON LOXONE : világításvezérlés, árnyékolás, fűtés és hűtés, ébresztés, jelenlét szimuláció, riasztás, jó éjt mód, stb. A lakásokhoz 2 saját parkolóhely és 1 tároló tartozik - Ezek nincsenek benne az árban.
Főbb előnyök:
Pasarét - zöldövezet Buda közepén, Rengeteg fa, park, csendes utcák - szinte kertvárosi hangulat, de mégis közel a belvároshoz (autóval vagy busszal 10-15 perc a Széll Kálmán tér).
Kiváló közlekedés:
Az 5-ös, 91-es, 155-ös, 291-es buszok és a 61-es villamos megállói a közelben. Minőségi lakókörnyezet, Sok régi villaház, új, modern társasház, és igényesen felújított lakás van itt. Emiatt az ingatlanárak is magasabbak az átlagosnál. Presztízs és nyugalom, Pasarétnek van egyfajta régi budai polgári hangulata - sok híres ember is itt lakott (pl. építészek, művészek, értelmiségiek). A környék csendes, biztonságos, és kifejezetten családbarát. Kávézók, iskolák, sportlehetőségek. Népszerű hely a Pasarét Bisztró, a Pasaréti templom melletti tér és környezete. A közelben van több jó iskola (pl. Piarista Gimnázium, Francia Iskola, Britannica, International School). A környék ideális futásra, sétára, kutyázásra is.
A KAPY 16 ideális választás mindazoknak, akik a budai eleganciát, a minőséget és a nyugalmat keresik, anélkül, hogy lemondanának a város közelségéről.
Ha felkeltette az ingatlan az érdeklődését , kérem keressen bizalommal.