Eladó Lakás
Hirdetéskód: 9075451

Tipp Ingatlan Kft

Felújításhoz személyi kölcsönt keres? Kalkuláljon itt! →
95.00 m2
ALAPTERÜLET
4
SZOBASZÁM
nincs megadva
ÉPÍTÉS
Egyéb fűtés
FŰTÉS
  • CSOK igénybe vehető nem
  • Belső szintek 2
  • Tetőtér beépíthető nem
  • Fűtés Egyéb fűtés
  • Klíma nem
  • Szigetelt nem
Energetikai besorolás: Nincs meghatározva
A+++
A++
A+
A
B
C
D
E
F
G
H
I

Az MBH Bank személyi kölcsön ajánlata

Fizetett hirdetés
1 millió Ft
6 évre
20 585 Ft/hó
THM: 14.5%
Részletek →
2 millió Ft
6 évre
41 169 Ft/hó
THM: 14.5%
Részletek →
3 millió Ft
6 évre
61 754 Ft/hó
THM: 14.5%
Részletek →

A tájékoztatás nem teljes körű és nem minősül ajánlattételnek.

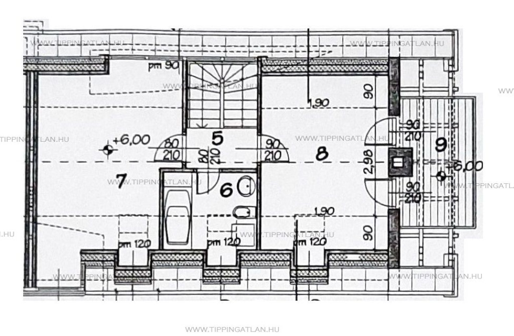
Az ingatlan leírása



Budaligeten, a csendes Gyöngyvér utcában kínálunk megvételre egy épületben kialakított három otthont.



1. lakás fsz:         121 nm. 175 MFt. Amerikai konyhás nappali + 2 háló + 3 terasz, garázs beálló, tároló

2. lakás em. + tetőtér: 115 nm. 167 MFt. Amerikai konyhás nappali + 3 háló + 2 erkély, garázs beálló, tároló

3. lakás em. + tetőtér:  95 nm. 138 Mft. Amerikai konyhás nappali + 3 háló + 2 erkély, garázs beálló, tároló



A fényképeken az 3-as lakásról készültek láthatóak.



Az épület egésze egy nagyon átgondolt tervezés és kivitelezés eredménye.

A lakásokat zárt lépcsőházból tudjuk megközelíteni. A fűtésrendszerek különállóak, közművek egyedileg mérhetőek.

Mindegyikhez tartozik külön teremgarázs beállóhely, és tároló. Ezek a vételárak részét képezik.

A közös részeken fitnesz, szauna és egyéb helyiségek kerültek kialakításra.

Az otthonokra jellemző a csend, nyugalom, barátságos hangulat. Valahonnan mindig süt a nap.



A fracia iskola közelsége több évre stabil bérlőket tud vonzani!

157, 157/A buszmegálló 2 percre.



!!!FONTOS!!! Az Eladók olyan Vevők jelentkezését várják, akik mindhárom lakást megveszik. Családok, baráti csoportok, befektetők.



További információért szívesen állok telefonon rendelkezésére!

(Ha nem sikerült felvennem, később visszahívom!)


Térkép

Ingatlan adásvétel ügyvédi díja
600 000 Ft
a hirdetésben szereplő ár alapján
  • A vételár 0,45%-a
  • Szerződéscsomag teljeskörű képviselettel
  • Ingyenes tulajdoni lap ellenőrzés
  • Az ÁFA-t már tartalmazza
Érdekel az ajánlat →
A tájékoztatás nem teljes körű és nem minősül ajánlattételnek. Minimum díj: 150 000 Ft, maximum díj: 600 000 Ft. A díj kizárólag lakóingatlan adásvételére vonatkozik.

A hirdető elérhetősége

Tipp Ingatlan Kft

Szabó Tamás
+36 70 290