Eladó Lakás
Hirdetéskód: 9305852

OTP Ingatlanpont - Takács Zsuzsanna

Felújításhoz személyi kölcsönt keres? Kalkuláljon itt! →
83.00 m2
ALAPTERÜLET
3
SZOBASZÁM
nincs megadva
ÉPÍTÉS
Gáz (cirkó)
FŰTÉS
  • CSOK igénybe vehető nem
  • Tetőtér beépíthető nem
  • Építés éve 1910
  • Fűtés Gáz (cirkó)
  • Klíma nem
  • Szigetelt nem
Energetikai besorolás: Nincs meghatározva
A+++
A++
A+
A
B
C
D
E
F
G
H
I

Az MBH Bank személyi kölcsön ajánlata

Fizetett hirdetés
1 millió Ft
6 évre
20 585 Ft/hó
THM: 14.5%
Részletek →
2 millió Ft
6 évre
41 169 Ft/hó
THM: 14.5%
Részletek →
3 millió Ft
6 évre
61 754 Ft/hó
THM: 14.5%
Részletek →

A tájékoztatás nem teljes körű és nem minősül ajánlattételnek.

Az ingatlan leírása

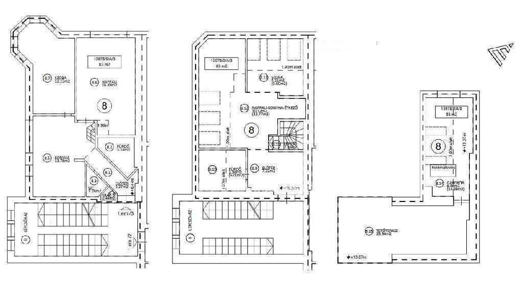
Budapest II. kerület, Rózsadomb alja, 95 m2 lakás eladó. Az ingatlan Buda közkedvelt, a Körszálló és a Duna közötti részén, csendes nyugodt környezetben helyezkedik el. A bruttó 116 m2-es, belső 3 szintes ingatlan két önálló, lépcsőházból nyíló, saját bejárattal rendelkező lakása egyedi, ideális lehetőség akár 2 generáció együttélésére is. Az 50 m2-es első emeleti lakásához tartozik egy 27 m2-es tetőtéri lakás, egy padlástéri 6 m2-es gardrób, illetve egy 24 m2-es tetőterasz, ahonnan a Körszállóra, illetve a Budai Vár Nemzeti Levéltárára nyílik panorámás kilátás. Az ingatlan értékét tovább növeli egy 6 m2-es alvógaléria. A 7 lakásos társasháznak saját kertje, a kerten belül 4 gépkocsi beállója, valamint egy közös pincéje is van elkülönített, saját használatú résszel. A lakás fűtését és melegvíz ellátását cirkó gázkazán biztosítja, amit két hűtő-fűtő klíma egészít ki. Busz- és villamosmegálló a közelben, a Városmajor, a Széll Kálmán tér, a Mammut bevásárlóközpont, a Fény utcai piac és a Millenáris park pedig 5-10 perc sétával elérhető. Kiváló lehetőség állandó lakhatásra vagy befektetésként kiadásra. Bővebb információért keressen telefonon!
M319582
Az OTP Ingatlanpont, mint egyetlen közvetlen banki hátterű ingatlanközvetítő társaság teljes körű ügyintézéssel áll az eladók és a vevők rendelkezésére! A kínálatunkból választott ingatlan finanszírozásához minősített fogyasztóbarát, piaci és kedvezményes hitel- és lízingkonstrukciókat kínálunk (lakásvásárlási hitel, CSOK plusz, szabad felhasználású hitel, babaváró hitel, céges hitelek, pályázatok, amennyiben az ügyfél és az ingatlan megfelel a feltételeknek). Az adásvételi szerződés megkötéséhez igény szerint megbízható ügyvédi közreműködést biztosítunk, és segítséget nyújtunk az adásvételhez kapcsolódó egyéb ügyek intézéséhez.
Ha az új ingatlana megvásárlásához a jelenlegi ingatlanát el kell adnia, abban is szívesen segítünk.

Térkép

Ingatlan adásvétel ügyvédi díja
600 000 Ft
a hirdetésben szereplő ár alapján
  • A vételár 0,45%-a
  • Szerződéscsomag teljeskörű képviselettel
  • Ingyenes tulajdoni lap ellenőrzés
  • Az ÁFA-t már tartalmazza
Érdekel az ajánlat →
A tájékoztatás nem teljes körű és nem minősül ajánlattételnek. Minimum díj: 150 000 Ft, maximum díj: 600 000 Ft. A díj kizárólag lakóingatlan adásvételére vonatkozik.

A hirdető elérhetősége

OTP Ingatlanpont - Takács Zsuzsanna

Takács Zsuzsanna
+36 30 495