Eladó Lakás
Hirdetéskód: 9277412
Benefit Line (OC)
Felújításhoz személyi kölcsönt keres? Kalkuláljon itt! →156.00 m2
ALAPTERÜLET5
SZOBASZÁMnincs megadva
ÉPÍTÉSnincs megadva
FŰTÉS- CSOK igénybe vehető nem
- Tetőtér beépíthető nem
- Építés éve 2000
- Klíma nem
- Szigetelt nem
A+++
A++
A+
A
B
C
D
E
F
G
H
I
Az ingatlan leírása
Az I. és II. kerület határán, a Batthyány tér és a Széll Kálmán tér között kínálunk eladásra egy 156 m²-es, átgondolt elrendezésű, teraszos, városi panorámás lakást modern épületben!
A lakás leírása
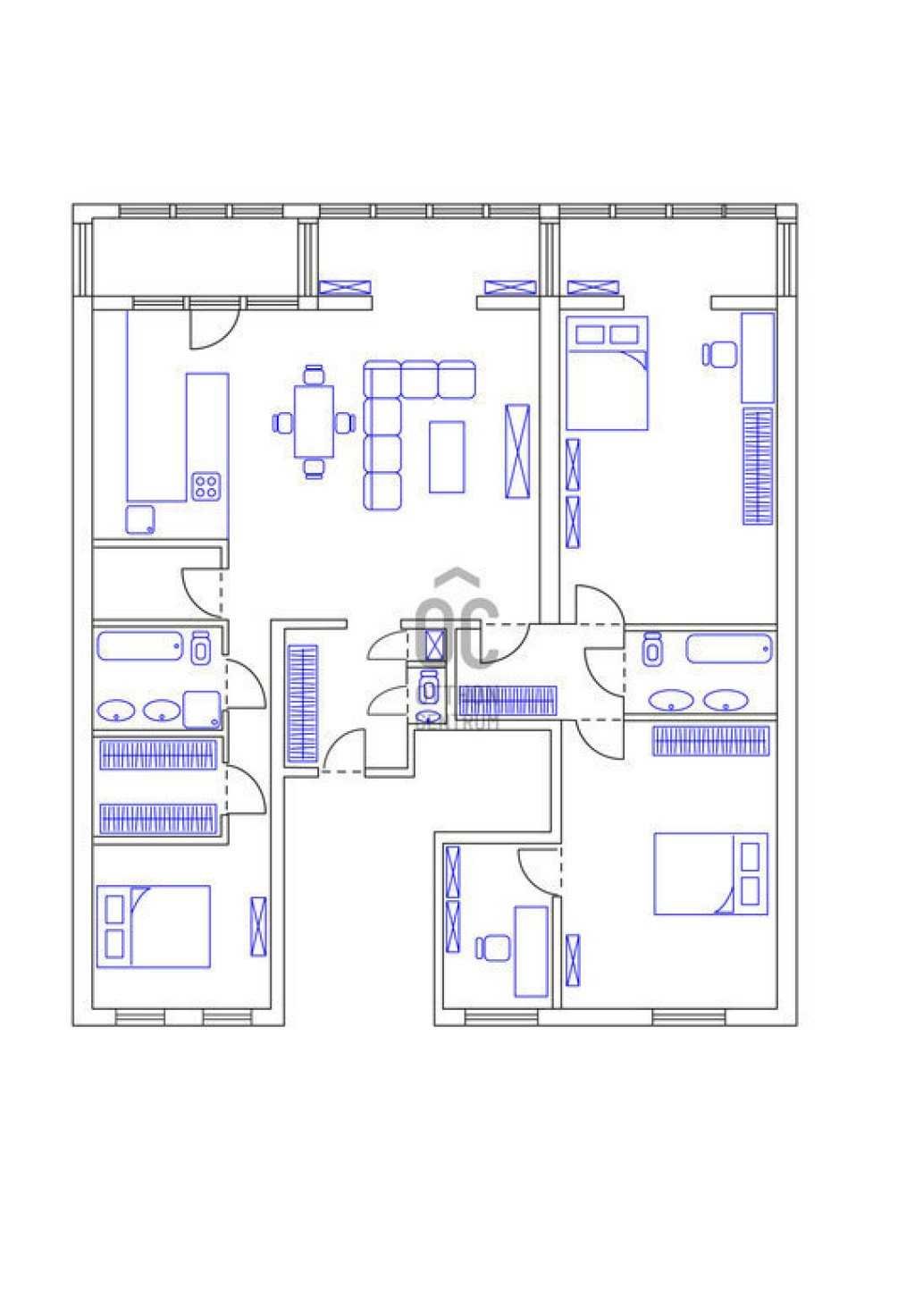
Ez a kifinomult, 5 szobás otthon egy gondosan karbantartott, liftes társasház teljes 5. emeletét foglalja el.
-A belső terek elegáns stílusa és a praktikus megoldások tökéletes harmóniát alkotnak – minden készen áll a kényelmes mindennapokra.
-A tágas nappali modern, beépített konyhával és étkezőrésszel ideális helyszín családi vacsorákhoz vagy baráti összejövetelekhez.
-Három külön bejáratú hálószoba biztosítja a maximális privát szférát.
-Egy dolgozószoba / vendégszoba tökéletes otthoni munkához.
-Két teljes értékű fürdőszoba káddal, zuhannyal és dupla mosdóval, valamint egy külön vendég-WC növeli a kényelmet.
-Egy gardróbszoba és külön mosókonyha segíti a rendezettséget és praktikusságot.
-Az ablakokból lenyűgöző panoráma nyílik a városra és Buda zöld dombjaira.
Rugalmas alaprajz és befektetési lehetőség
A tulajdoni lap szerint az ingatlan három különálló lakásból áll (91 m², 46 m² és 19 m²), mindegyik önálló helyrajzi számon.
Ez számos lehetőséget kínál:
az eredeti három lakás visszaállítása,
két nagyobb lakás kialakítása,
vagy a jelenlegi, egybenyitott luxus családi rezidencia megtartása.
Négy különböző alaprajz-változat áll rendelkezésre, amelyek bemutatják a lehetséges elrendezéseket.
Ideális választás befektetőknek és kényelmet, rugalmasságot kedvelő családoknak egyaránt.
Saját garázs a Vízivárosban
A ház pince szintjén található egy 27 m²-es helyiség utcai bejárattal.
A helyiség „műhely” megnevezésű, közművesített (villany, víz, gáz), jelenleg garázsként funkcionál, de műhelyként vagy tárolóként is használható.
A környékről – Víziváros
Víziváros Buda egyik legszebb és legpatinásabb negyede, a Duna partján, a Várhegy lábánál.
Történelem és modern életérzés tökéletes harmóniában: régi homlokzatok, elegáns éttermek és zöld belső udvarok.
Néhány perc sétára található:
-Széchenyi Lánchíd,
-Királyi Palota és a Várhegyi Sikló,
-híres Király fürdő,
-hangulatos kávézók és borbárok a Fő utcán,
-valamint a Duna-part, tökéletes hely esti sétákhoz és naplementékhez.
A környék híres nyugalmáról, biztonságáról és magas életminőségéről.
A nemrég felújított járdák, ápolt homlokzatok és zöldterületek különleges hangulatot adnak a Csalogány utcának.
Minden elérhető gyalogosan: Lidl (30 méterre), Mammut bevásárlóközpont, iskolák, óvodák, villamos-, metró- és buszmegállók.
Víziváros nem csupán egy lokáció – ez egy életstílus: Duna-parti séták, reggeli kávé a közeli kávézókban, csend és panoráma az óvárosra.
Presztízse és fejlett infrastruktúrája miatt a városrész az egyik legkeresettebb lakó- és befektetési célpont Budapesten.
Miért érdemes ezt a lakást választani
-Csendes, de központi elhelyezkedés
-Prémium minőségű kivitelezés, átgondolt alaprajz (gardrób, vendég-WC, mosókonyha)
-Erkély, lift, panoráma, garázs – ritka kombináció
-Rugalmas tulajdonstruktúra – ideális lakhatásra és befektetésre is
-Presztízsértékű, történelmi Víziváros, magas szintű infrastruktúrával
Ne hagyja ki ezt az egyedülálló lehetőséget!
Hívjon minket további információért és időpont egyeztetésért – az ilyen ingatlanok ritkán kerülnek piacra.
A lakás leírása
Ez a kifinomult, 5 szobás otthon egy gondosan karbantartott, liftes társasház teljes 5. emeletét foglalja el.
-A belső terek elegáns stílusa és a praktikus megoldások tökéletes harmóniát alkotnak – minden készen áll a kényelmes mindennapokra.
-A tágas nappali modern, beépített konyhával és étkezőrésszel ideális helyszín családi vacsorákhoz vagy baráti összejövetelekhez.
-Három külön bejáratú hálószoba biztosítja a maximális privát szférát.
-Egy dolgozószoba / vendégszoba tökéletes otthoni munkához.
-Két teljes értékű fürdőszoba káddal, zuhannyal és dupla mosdóval, valamint egy külön vendég-WC növeli a kényelmet.
-Egy gardróbszoba és külön mosókonyha segíti a rendezettséget és praktikusságot.
-Az ablakokból lenyűgöző panoráma nyílik a városra és Buda zöld dombjaira.
Rugalmas alaprajz és befektetési lehetőség
A tulajdoni lap szerint az ingatlan három különálló lakásból áll (91 m², 46 m² és 19 m²), mindegyik önálló helyrajzi számon.
Ez számos lehetőséget kínál:
az eredeti három lakás visszaállítása,
két nagyobb lakás kialakítása,
vagy a jelenlegi, egybenyitott luxus családi rezidencia megtartása.
Négy különböző alaprajz-változat áll rendelkezésre, amelyek bemutatják a lehetséges elrendezéseket.
Ideális választás befektetőknek és kényelmet, rugalmasságot kedvelő családoknak egyaránt.
Saját garázs a Vízivárosban
A ház pince szintjén található egy 27 m²-es helyiség utcai bejárattal.
A helyiség „műhely” megnevezésű, közművesített (villany, víz, gáz), jelenleg garázsként funkcionál, de műhelyként vagy tárolóként is használható.
A környékről – Víziváros
Víziváros Buda egyik legszebb és legpatinásabb negyede, a Duna partján, a Várhegy lábánál.
Történelem és modern életérzés tökéletes harmóniában: régi homlokzatok, elegáns éttermek és zöld belső udvarok.
Néhány perc sétára található:
-Széchenyi Lánchíd,
-Királyi Palota és a Várhegyi Sikló,
-híres Király fürdő,
-hangulatos kávézók és borbárok a Fő utcán,
-valamint a Duna-part, tökéletes hely esti sétákhoz és naplementékhez.
A környék híres nyugalmáról, biztonságáról és magas életminőségéről.
A nemrég felújított járdák, ápolt homlokzatok és zöldterületek különleges hangulatot adnak a Csalogány utcának.
Minden elérhető gyalogosan: Lidl (30 méterre), Mammut bevásárlóközpont, iskolák, óvodák, villamos-, metró- és buszmegállók.
Víziváros nem csupán egy lokáció – ez egy életstílus: Duna-parti séták, reggeli kávé a közeli kávézókban, csend és panoráma az óvárosra.
Presztízse és fejlett infrastruktúrája miatt a városrész az egyik legkeresettebb lakó- és befektetési célpont Budapesten.
Miért érdemes ezt a lakást választani
-Csendes, de központi elhelyezkedés
-Prémium minőségű kivitelezés, átgondolt alaprajz (gardrób, vendég-WC, mosókonyha)
-Erkély, lift, panoráma, garázs – ritka kombináció
-Rugalmas tulajdonstruktúra – ideális lakhatásra és befektetésre is
-Presztízsértékű, történelmi Víziváros, magas szintű infrastruktúrával
Ne hagyja ki ezt az egyedülálló lehetőséget!
Hívjon minket további információért és időpont egyeztetésért – az ilyen ingatlanok ritkán kerülnek piacra.