Eladó Lakás
Hirdetéskód: 9223822
GDN Ingatlanhálózat - Best Sellers
Felújításhoz személyi kölcsönt keres? Kalkuláljon itt! →156.00 m2
ALAPTERÜLET4
SZOBASZÁMnincs megadva
ÉPÍTÉSGáz (cirkó)
FŰTÉS- CSOK igénybe vehető nem
- Tetőtér beépíthető nem
- Fűtés Gáz (cirkó)
- Klíma nem
- Szigetelt nem
A+++
A++
A+
A
B
C
D
E
F
G
H
I
Az ingatlan leírása
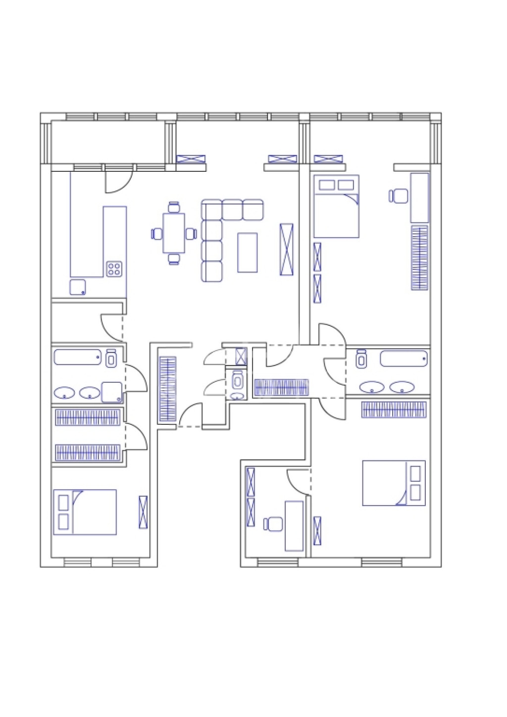
II.kerület Csalogány utcában kínálunk eladásra egy 156 m2-es, beépített ERKÉLYES, JÓ ÁLLAPOTÚ, városi PANORÁMÁS lakást!
Ingatlan jellemzői:
-Épület: Rendezett liftes ház, a lakás az 5. emeleten található
-Szobák: 4+1 szoba
-Nappali: Beépített, modern, teljesen felszerelt konyhával. Tágas és világos, ideális családi összejövetelekhez.
-Hálószobák: a nappali két oldalán található a három különnyíló hálószoba. Emellett van egy kisebb szoba is, amely irodának vagy vendégszobának is tökéletesen használható.
-Fürdőszoba: Zuhanyzó, kád és két mosdó mindkét fürdőszobában
-Mosókonyha: Külön mosókonyha a háztartási feladatok megkönnyítésére.
Különlegesség:
-Több lakás kialakítása lehetséges: Három különálló lakásra osztható, mivel három helyrajzi számmal rendelkezik az ingatlan.
A lakáshoz vásárolható garázs is:
-Elhelyezkedés: A földszinten található, közvetlen utcai bejárattal -27 m2-
-Felszereltség: Raktárnak vagy műhelynek is használható, saját villany- és gázórákkal, valamint vízzel felszerelt.
Kiváló elhelyezkedése, praktikus elrendezése és a környék magas színvonalú infrastruktúrája miatt ez az ingatlan tökéletes választás nagycsaládosoknak vagy befektetőknek egyaránt. Jöjjön el, és tekintse meg személyesen!
Amennyiben hirdetésem felkeltette érdeklődését, további információra lenne szüksége, hívjon bizalommal!
ID:369785 ...TOVÁBBI, TÖBBEZRES INGATLAN KÍNÁLAT: - GDN azonosító: 390315
Ingatlan jellemzői:
-Épület: Rendezett liftes ház, a lakás az 5. emeleten található
-Szobák: 4+1 szoba
-Nappali: Beépített, modern, teljesen felszerelt konyhával. Tágas és világos, ideális családi összejövetelekhez.
-Hálószobák: a nappali két oldalán található a három különnyíló hálószoba. Emellett van egy kisebb szoba is, amely irodának vagy vendégszobának is tökéletesen használható.
-Fürdőszoba: Zuhanyzó, kád és két mosdó mindkét fürdőszobában
-Mosókonyha: Külön mosókonyha a háztartási feladatok megkönnyítésére.
Különlegesség:
-Több lakás kialakítása lehetséges: Három különálló lakásra osztható, mivel három helyrajzi számmal rendelkezik az ingatlan.
A lakáshoz vásárolható garázs is:
-Elhelyezkedés: A földszinten található, közvetlen utcai bejárattal -27 m2-
-Felszereltség: Raktárnak vagy műhelynek is használható, saját villany- és gázórákkal, valamint vízzel felszerelt.
Kiváló elhelyezkedése, praktikus elrendezése és a környék magas színvonalú infrastruktúrája miatt ez az ingatlan tökéletes választás nagycsaládosoknak vagy befektetőknek egyaránt. Jöjjön el, és tekintse meg személyesen!
Amennyiben hirdetésem felkeltette érdeklődését, további információra lenne szüksége, hívjon bizalommal!
ID:369785 ...TOVÁBBI, TÖBBEZRES INGATLAN KÍNÁLAT: - GDN azonosító: 390315