Eladó Lakás
Hirdetéskód: 9245329
Ivenna Trade Kft.
84.00 m2
ALAPTERÜLET3
SZOBASZÁMnincs megadva
ÉPÍTÉSnincs megadva
FŰTÉS- CSOK igénybe vehető nem
- Tetőtér beépíthető nem
- Építés éve 1930
- Klíma nem
- Szigetelt nem
A+++
A++
A+
A
B
C
D
E
F
G
H
I
Az ingatlan leírása
BUDAPEST, 2.KERÜLETÉBEN, PASARÉTEN ,MŰTEREM VILLÁBAN ELADÓ EGY MAGAS ESZTÉTIKAI ÉRZÉKKEL TERVEZETT DUPLAKOMFORTOS DUPLEX LAKÁS!
A lakás alapterülete 84nm, nappali étkező-konyha, + 2hálószoba, 2 fürdőszoba, + 12nm akással egybenyitott tároló. Terasza 8nm.
Ablakai és a napsütötte terasza a hátsó, örökzöld nyövényekkel beültetett kertre néznek, ahova a forgalom zaja nem hallatszik be.
Fekvése Kelet-déli fekvés, így egész nap világos.
2020-ban teljes körű felújítás történt, magas minőségi anyagokkal, termékekkel.
-Új kondenzációs kazán
-egyedi szigetelt fa nyílászárók
-fapadló, gres padlólapok
-Laufen szanterek és csaptelepek
-egyedi konyha, AEG főzőlap
-AEG mosó és szérítógép
Belső kétszintes elrendezés:
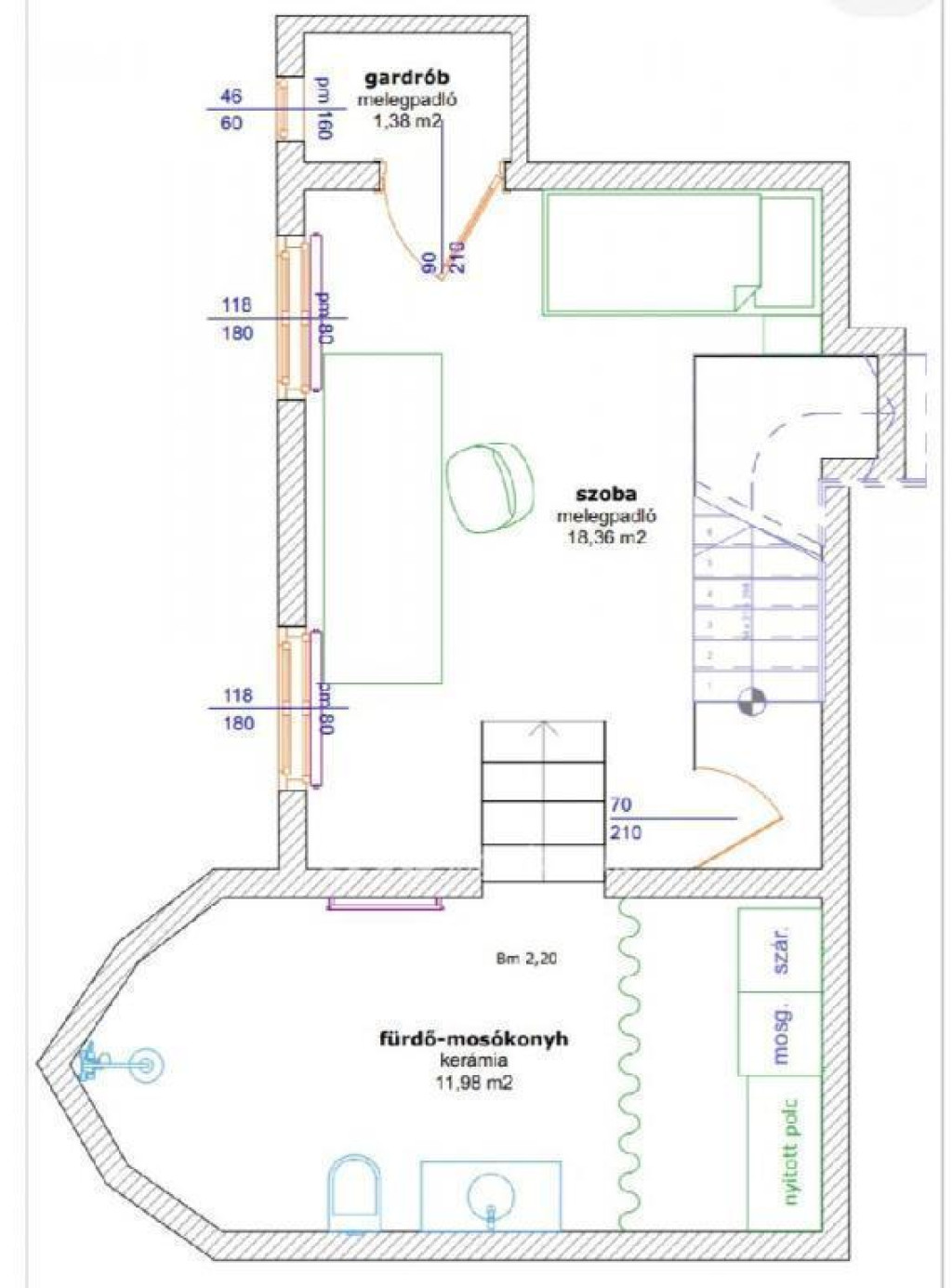
1. ALSÓSZINT
Az abakok magassága a talajtól: 110cm, a zöld kertre látni.
Szoba, gardrób, fürdőszba és mosóhelyiség.
2,7méteres belmagasság.
EXTRA: külön bejratú iroda, rendelő kialakítható.
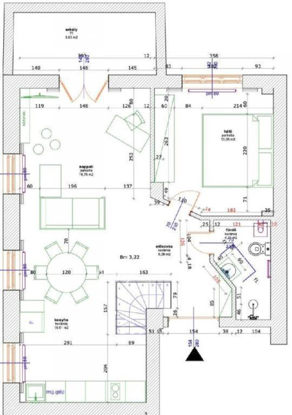
2. MAGASFÖLDSZINT
AZ UDAVR IRÁNYÁBÓL 1.EMELETNEK fele meg.
3,2 méter bemagasság, levegős, elegáns térérzet.
Napsütötte terasz, tágas amerikai konyhás nappali, szoba gardróbszekrénnyel, zuhanyzós fürdőszoba, tágtas előtér.
Az épület : 9 lakásos, közepes állapotú társasház, jó lakóközösséggel.
Parkolás az utcán díjmentes, de igény szerint autóbeálló is kialakítható az udvarban.
A Kapu, ajtó , lépcsőház tervezett feljítás előtt áll.
Elhelyezkedése:
Kiváló infrastruktúrával rendekezik. Budgyöngye, Mammut bevásárlóközpont 10-20 perc alatt eérhetőek.
Pékség, Aldi néhány percre található.
További információért és megtekintésért keressen bizalommal a hét minden napján.
A lakás alapterülete 84nm, nappali étkező-konyha, + 2hálószoba, 2 fürdőszoba, + 12nm akással egybenyitott tároló. Terasza 8nm.
Ablakai és a napsütötte terasza a hátsó, örökzöld nyövényekkel beültetett kertre néznek, ahova a forgalom zaja nem hallatszik be.
Fekvése Kelet-déli fekvés, így egész nap világos.
2020-ban teljes körű felújítás történt, magas minőségi anyagokkal, termékekkel.
-Új kondenzációs kazán
-egyedi szigetelt fa nyílászárók
-fapadló, gres padlólapok
-Laufen szanterek és csaptelepek
-egyedi konyha, AEG főzőlap
-AEG mosó és szérítógép
Belső kétszintes elrendezés:
1. ALSÓSZINT
Az abakok magassága a talajtól: 110cm, a zöld kertre látni.
Szoba, gardrób, fürdőszba és mosóhelyiség.
2,7méteres belmagasság.
EXTRA: külön bejratú iroda, rendelő kialakítható.
2. MAGASFÖLDSZINT
AZ UDAVR IRÁNYÁBÓL 1.EMELETNEK fele meg.
3,2 méter bemagasság, levegős, elegáns térérzet.
Napsütötte terasz, tágas amerikai konyhás nappali, szoba gardróbszekrénnyel, zuhanyzós fürdőszoba, tágtas előtér.
Az épület : 9 lakásos, közepes állapotú társasház, jó lakóközösséggel.
Parkolás az utcán díjmentes, de igény szerint autóbeálló is kialakítható az udvarban.
A Kapu, ajtó , lépcsőház tervezett feljítás előtt áll.
Elhelyezkedése:
Kiváló infrastruktúrával rendekezik. Budgyöngye, Mammut bevásárlóközpont 10-20 perc alatt eérhetőek.
Pékség, Aldi néhány percre található.
További információért és megtekintésért keressen bizalommal a hét minden napján.