Eladó Lakás
Hirdetéskód: 9212626
OTP Ingatlanpont - Budapest IX. ker., Üllői út 21.
85 m2
ALAPTERÜLET3
SZOBASZÁMnincs megadva
ÉPÍTÉSnincs megadva
FŰTÉS- CSOK igénybe vehető nem
- Tetőtér beépíthető nem
- Építés éve 1985
- Klíma nem
- Szigetelt nem
A+++
A++
A+
A
B
C
D
E
F
G
H
I
Az ingatlan leírása
Családbarát otthon a Kis-Gellérthegyen, tágas, világos lakás zöld környezetben!
Budán, az 1. kerület egyik legkedveltebb részén, a Kis-Gellérthegyen, az Avar utca csendes, vonatzajtól távol eső szakaszán eladásra kínálunk egy 81 m2-es, 2. emeleti, nappali + 2,5 szobás lakást egy 10 lakásos, téglaépítésű, barátságos, lift nélküli társasházban.
A 1900-as évek elején épült ház egy nyugodt mellékutcában található, mégis minden fontos szolgáltatás karnyújtásnyira elérhető. Ideális választás azoknak a családoknak, akik szeretnék a városi élet kényelmét, de csendben és biztonságban élni.
A lakás a társasház legfelső emeletén helyezkedik el, ahol mindössze két lakás található, így a nyugalom garantált.
A praktikus, családbarát elosztás lehetővé teszi, hogy minden családtagnak meglegyen a saját kis kuckója:
Külön előszoba fogadja az érkezőket
A közlekedő beépített szekrényei és polcai rengeteg tárolóhelyet biztosítanak.
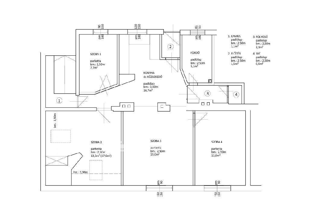
A 19 m2-es tágas nappali és étkező központi közösségi térként szolgál, ahol a család együtt töltheti az estéket.
Három külön nyíló szoba (17,6 m2, 13,8 m2 és 7,7 m2), ideális gyerekszobának, hálónak vagy dolgozószobának.
Világos, gépesített konyha, amely félig nyitott az étkező felé, így főzés közben is kapcsolatban maradhatunk a családdal.
Fürdő és WC külön helyiségben, ami kényelmes a mindennapokban.
Külön kamra is rendelkezésre áll, ahol a háztartási eszközök is elférnek
A lakás rendkívül világos, a kelet-nyugati tájolásnak köszönhetően egész nap természetes fényben úszik.
Minden helyiség klímával felszerelt, a riasztórendszer pedig extra biztonságot nyújt.
A lakás jó állapotú, az utolsó nagyobb felújítás 2014-ben történt, azóta kisebb korszerűsítések is zajlottak.
A fűtésről és melegvízről egy új, 2025-ben beépített kondenzációs kazán gondoskodik.
A lakáshoz külön tároló is tartozik, a parkolás pedig könnyen megoldható az utcán, szinte mindig van szabad hely.
Amit a családok igazán értékelni fognak:
Tágas, világos terek és átgondolt elrendezés
Ritkaságnak számító 4 szobás kialakítás ebben a környékben
Csendes, barátságos társasház
Kiváló parkolási lehetőség
Zöld, biztonságos környék, ahol a gyerekek is szabadon mozoghatnak
Az elhelyezkedés tökéletes családoknak:
a Budai Vár, a Tabán és a Gellért-hegy mindössze pár perc séta, a MOM Park, a Gesztenyés kert vagy a Citadella gyalog 10 percen belül elérhető.
A közelben több óvoda, iskola és játszótér is található, a környék kiváló közlekedéssel bír ? a Móricz Zsigmond körtér, a Déli pályaudvar és a Belváros 10?15 percen belül megközelíthető.
Ez az otthon ideális választás mindazoknak, akik szeretnének családbarát környezetben, mégis a város szívében élni, egy tágas, világos és szerethető lakásban.
Budán, az 1. kerület egyik legkedveltebb részén, a Kis-Gellérthegyen, az Avar utca csendes, vonatzajtól távol eső szakaszán eladásra kínálunk egy 81 m2-es, 2. emeleti, nappali + 2,5 szobás lakást egy 10 lakásos, téglaépítésű, barátságos, lift nélküli társasházban.
A 1900-as évek elején épült ház egy nyugodt mellékutcában található, mégis minden fontos szolgáltatás karnyújtásnyira elérhető. Ideális választás azoknak a családoknak, akik szeretnék a városi élet kényelmét, de csendben és biztonságban élni.
A lakás a társasház legfelső emeletén helyezkedik el, ahol mindössze két lakás található, így a nyugalom garantált.
A praktikus, családbarát elosztás lehetővé teszi, hogy minden családtagnak meglegyen a saját kis kuckója:
Külön előszoba fogadja az érkezőket
A közlekedő beépített szekrényei és polcai rengeteg tárolóhelyet biztosítanak.
A 19 m2-es tágas nappali és étkező központi közösségi térként szolgál, ahol a család együtt töltheti az estéket.
Három külön nyíló szoba (17,6 m2, 13,8 m2 és 7,7 m2), ideális gyerekszobának, hálónak vagy dolgozószobának.
Világos, gépesített konyha, amely félig nyitott az étkező felé, így főzés közben is kapcsolatban maradhatunk a családdal.
Fürdő és WC külön helyiségben, ami kényelmes a mindennapokban.
Külön kamra is rendelkezésre áll, ahol a háztartási eszközök is elférnek
A lakás rendkívül világos, a kelet-nyugati tájolásnak köszönhetően egész nap természetes fényben úszik.
Minden helyiség klímával felszerelt, a riasztórendszer pedig extra biztonságot nyújt.
A lakás jó állapotú, az utolsó nagyobb felújítás 2014-ben történt, azóta kisebb korszerűsítések is zajlottak.
A fűtésről és melegvízről egy új, 2025-ben beépített kondenzációs kazán gondoskodik.
A lakáshoz külön tároló is tartozik, a parkolás pedig könnyen megoldható az utcán, szinte mindig van szabad hely.
Amit a családok igazán értékelni fognak:
Tágas, világos terek és átgondolt elrendezés
Ritkaságnak számító 4 szobás kialakítás ebben a környékben
Csendes, barátságos társasház
Kiváló parkolási lehetőség
Zöld, biztonságos környék, ahol a gyerekek is szabadon mozoghatnak
Az elhelyezkedés tökéletes családoknak:
a Budai Vár, a Tabán és a Gellért-hegy mindössze pár perc séta, a MOM Park, a Gesztenyés kert vagy a Citadella gyalog 10 percen belül elérhető.
A közelben több óvoda, iskola és játszótér is található, a környék kiváló közlekedéssel bír ? a Móricz Zsigmond körtér, a Déli pályaudvar és a Belváros 10?15 percen belül megközelíthető.
Ez az otthon ideális választás mindazoknak, akik szeretnének családbarát környezetben, mégis a város szívében élni, egy tágas, világos és szerethető lakásban.