Eladó Lakás
Hirdetéskód: 9228883
Benefit Line (OC)
95 m2
ALAPTERÜLET3
SZOBASZÁMnincs megadva
ÉPÍTÉSnincs megadva
FŰTÉS- CSOK igénybe vehető nem
- Tetőtér beépíthető nem
- Építés éve 1918
- Klíma nem
- Szigetelt nem
A+++
A++
A+
A
B
C
D
E
F
G
H
I
Az ingatlan leírása
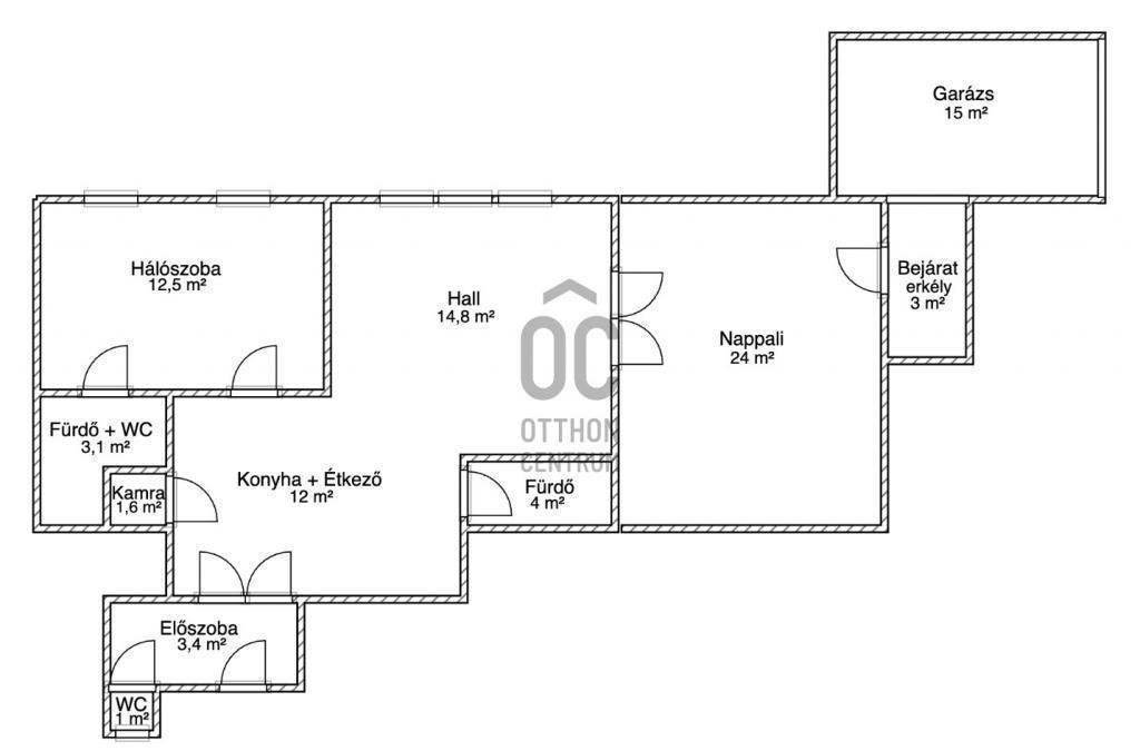
Eladó az 1. kerületben egy 2. emeleti, 3 szobás, erkélyes, világos lakás.
- Saját garázzsal, privát bejárattal és városi panorámával.
- A Budai Vár alatt, az August-udvar exkluzív épületében található a lakás.
– Lakás: 77 m²
– Saját garázs: 15 m² + 20 M Ft
– Erkély: 3 m²
– Saját pince-tároló: 6 m²
- Privát bejárat közvetlenül a garázsból.
- 3 méteres belmagasság, tágas terek, három szoba, 2 fürdőszoba, az egyik közvetlenül a hálóból.
- Erkély a Várra és a Várkertre néző panorámával.
- Világos, mégis kellemesen hűvös nyáron, meleg télen.
- Teljes körű felújítás 2020-ban – új vezetékek, tölgyfa parketta, hő- és hangszigetelt nyílászárók, modern fűtésrendszer.
- A társas ház főbejáratán keresztül, lifttel, az Attila útról.
- Közvetlenül a saját garázsból, ahonnan egyenesen a nappaliba léphetsz
- Az ingatlan teljesen berendezve eladó.
- A bútorok és berendezések kérésre az ár részét képezhetik.
- Azonnal költözhető vagy kiadható – eddig 1400 €/hó + rezsi áron lett bérbe adva.
- Csendes, zöld, mégis a város szívében.
- 2 perc séta a Ybl Miklós tér és a Várkert Bazár, miközben a környék a Budai Vár felújítási programjával folyamatosan értékelődik.
A házban kisbolt, étterem és közösségi kávézó is található.
- A garázs előtti részen további autó is parkolhat.
Amennyiben felkeltettem az érdeklődését, kérem hívjon a hét bármelyik napján!
- Saját garázzsal, privát bejárattal és városi panorámával.
- A Budai Vár alatt, az August-udvar exkluzív épületében található a lakás.
– Lakás: 77 m²
– Saját garázs: 15 m² + 20 M Ft
– Erkély: 3 m²
– Saját pince-tároló: 6 m²
- Privát bejárat közvetlenül a garázsból.
- 3 méteres belmagasság, tágas terek, három szoba, 2 fürdőszoba, az egyik közvetlenül a hálóból.
- Erkély a Várra és a Várkertre néző panorámával.
- Világos, mégis kellemesen hűvös nyáron, meleg télen.
- Teljes körű felújítás 2020-ban – új vezetékek, tölgyfa parketta, hő- és hangszigetelt nyílászárók, modern fűtésrendszer.
- A társas ház főbejáratán keresztül, lifttel, az Attila útról.
- Közvetlenül a saját garázsból, ahonnan egyenesen a nappaliba léphetsz
- Az ingatlan teljesen berendezve eladó.
- A bútorok és berendezések kérésre az ár részét képezhetik.
- Azonnal költözhető vagy kiadható – eddig 1400 €/hó + rezsi áron lett bérbe adva.
- Csendes, zöld, mégis a város szívében.
- 2 perc séta a Ybl Miklós tér és a Várkert Bazár, miközben a környék a Budai Vár felújítási programjával folyamatosan értékelődik.
A házban kisbolt, étterem és közösségi kávézó is található.
- A garázs előtti részen további autó is parkolhat.
Amennyiben felkeltettem az érdeklődését, kérem hívjon a hét bármelyik napján!