Eladó Lakás
Hirdetéskód: 9212872
Benefit Line (OC)
95 m2
ALAPTERÜLET3
SZOBASZÁMnincs megadva
ÉPÍTÉSnincs megadva
FŰTÉS- CSOK igénybe vehető nem
- Tetőtér beépíthető nem
- Építés éve 1918
- Klíma nem
- Szigetelt nem
A+++
A++
A+
A
B
C
D
E
F
G
H
I
Az ingatlan leírása
I. KERÜLETBEN, VÁRNEGYEDBEN ELADÓ - 95 M3 PANORÁMÁS LAKÁS - SAJÁT GARÁZZSAL ÉS PRIVÁT BEJÁRATTAL!
Kuriózum lakás a Budai Vár tövében
Saját garázzsal, privát bejárattal, panorámával és elképesztő hangulattal!
A Budai Vár alatt, az August-udvar exkluzív épületében kínáljuk ezt a 95 m²-es gyöngyszemet, ami egyszerre városi és meghitt, modern és történelmi, stílusos és praktikus.
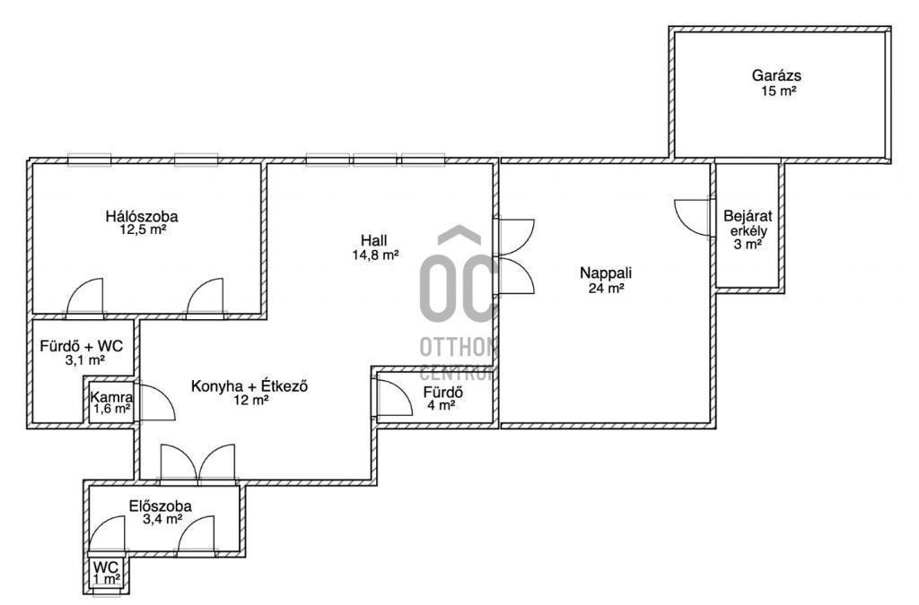
Összesen 95 m²
– Lakás: 77 m²
– Saját garázs: 15 m² + 20 M Ft
– Erkély: 3 m²
– Saját pince-tároló: 6 m²
Mi teszi igazán különlegessé:
Privát bejárat közvetlenül a garázsból – szomszédok nélkül, teljes intimitásban.
3 méteres belmagasság, tágas terek, három szoba, dupla fürdőszoba (az egyik közvetlenül a hálóból).
Erkély a Várra és a Várkertre néző panorámával.
Világos, mégis kellemesen hűvös nyáron, meleg télen.
Teljes körű felújítás 2020-ba– új vezetékek, tölgyfa parketta, hő- és hangszigetelt nyílászárók, modern fűtésrendszer.
Belépések két irányból:
1. A társasház főbejáratán keresztül, lifttel, az Attila útról.
2. Közvetlenül a saját garázsból, ahonnan egyenesen a nappaliba léphetsz
Felszereltség:
Az ingatlan ízlésesen, teljesen berendezve eladó.
A bútorok és berendezések kérésre az ár részét képezhetik.
Azonnal költözhető vagy kiadható – eddig 1400 €/hó + rezsi áron bérbe adták.
Környezet:
Csendes, zöld, mégis a város szívében.
2 perc séta a Ybl Miklós tér és a Várkert Bazár, miközben a környék a Budai Vár felújítási programjával folyamatosan értékelődik.
A házban kisbolt, étterem és közösségi kávézó is található – minden kéznél.
Parkolás:
Saját, 15 m²-es garázs + Ft
A garázs előtti részen további autó is parkolhat
Kinek ajánljuk:
Bárkinek, aki a privát luxust, a történelmi környezetet és a letisztult eleganciát** keresi – akár saját otthonnak, akár befektetésnek.
Ez az a lakás, ahol a Vár alatti történelem találkozik a mai élet kényelmével.
Budai hangulat, pesti ritkaság – egyetlen kulccsal.
Amennyiben továbi kérdései lennének, vagy szeretné megtekinteni az ingatlant, keressen bizalommal!
Kuriózum lakás a Budai Vár tövében
Saját garázzsal, privát bejárattal, panorámával és elképesztő hangulattal!
A Budai Vár alatt, az August-udvar exkluzív épületében kínáljuk ezt a 95 m²-es gyöngyszemet, ami egyszerre városi és meghitt, modern és történelmi, stílusos és praktikus.
Összesen 95 m²
– Lakás: 77 m²
– Saját garázs: 15 m² + 20 M Ft
– Erkély: 3 m²
– Saját pince-tároló: 6 m²
Mi teszi igazán különlegessé:
Privát bejárat közvetlenül a garázsból – szomszédok nélkül, teljes intimitásban.
3 méteres belmagasság, tágas terek, három szoba, dupla fürdőszoba (az egyik közvetlenül a hálóból).
Erkély a Várra és a Várkertre néző panorámával.
Világos, mégis kellemesen hűvös nyáron, meleg télen.
Teljes körű felújítás 2020-ba– új vezetékek, tölgyfa parketta, hő- és hangszigetelt nyílászárók, modern fűtésrendszer.
Belépések két irányból:
1. A társasház főbejáratán keresztül, lifttel, az Attila útról.
2. Közvetlenül a saját garázsból, ahonnan egyenesen a nappaliba léphetsz
Felszereltség:
Az ingatlan ízlésesen, teljesen berendezve eladó.
A bútorok és berendezések kérésre az ár részét képezhetik.
Azonnal költözhető vagy kiadható – eddig 1400 €/hó + rezsi áron bérbe adták.
Környezet:
Csendes, zöld, mégis a város szívében.
2 perc séta a Ybl Miklós tér és a Várkert Bazár, miközben a környék a Budai Vár felújítási programjával folyamatosan értékelődik.
A házban kisbolt, étterem és közösségi kávézó is található – minden kéznél.
Parkolás:
Saját, 15 m²-es garázs + Ft
A garázs előtti részen további autó is parkolhat
Kinek ajánljuk:
Bárkinek, aki a privát luxust, a történelmi környezetet és a letisztult eleganciát** keresi – akár saját otthonnak, akár befektetésnek.
Ez az a lakás, ahol a Vár alatti történelem találkozik a mai élet kényelmével.
Budai hangulat, pesti ritkaság – egyetlen kulccsal.
Amennyiben továbi kérdései lennének, vagy szeretné megtekinteni az ingatlant, keressen bizalommal!