Eladó Lakás
Hirdetéskód: 9277196
Otthon Csoport
Felújításhoz személyi kölcsönt keres? Kalkuláljon itt! →90.00 m2
ALAPTERÜLET4
SZOBASZÁMnincs megadva
ÉPÍTÉSGáz (cirkó)
FŰTÉS- Belső szintek 2
- Fűtés Gáz (cirkó)
A+++
A++
A+
A
B
C
D
E
F
G
H
I
Az ingatlan leírása
Kertkapcsolatos otthon Budaörs egyik legnyugodtabb részén – saját bejárattal, parkolóval, családbarát kialakítással
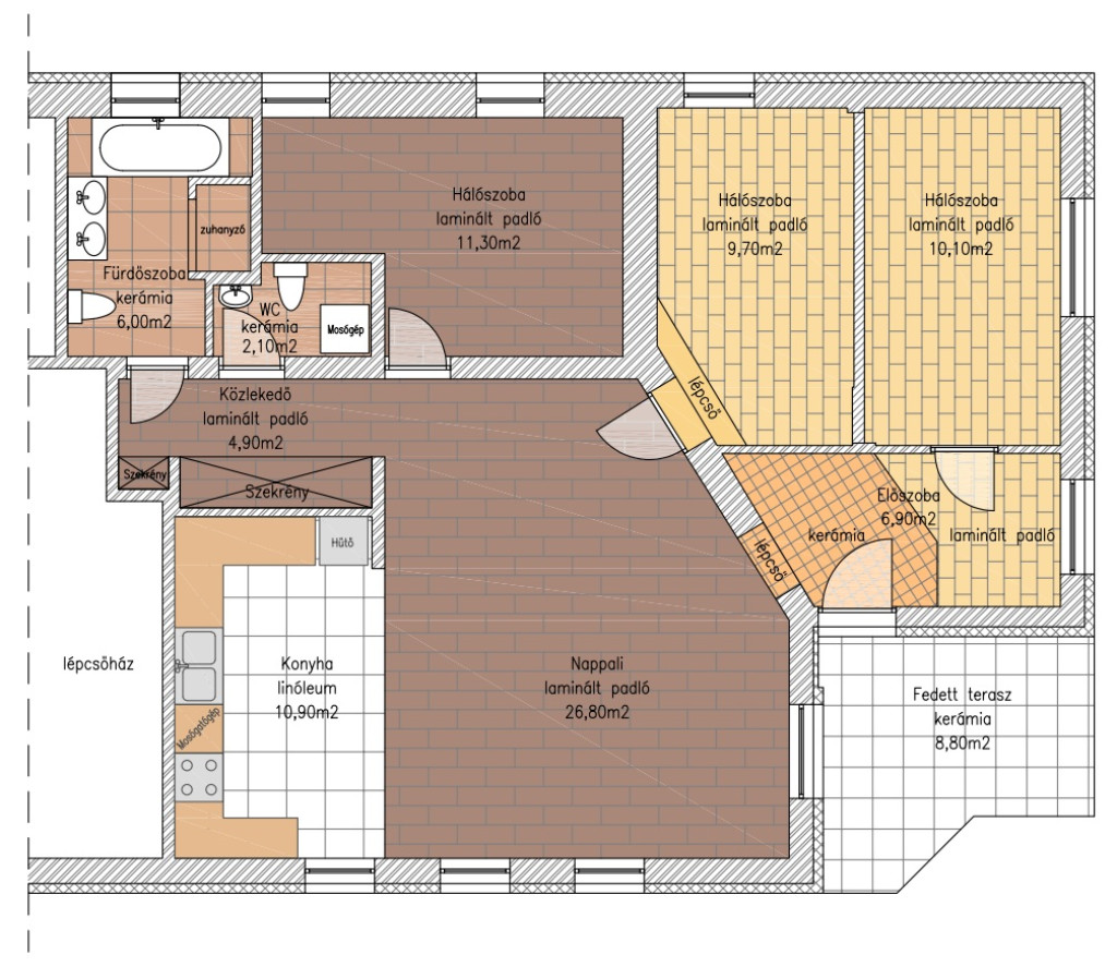
Budaörs felsőkertvárosi, csendes utcájában eladásra kínálunk egy 90 m²-es, teraszos, kertkapcsolatos földszinti lakást egy rendezett, mindössze három lakásos társasházban. A ház 700 m2-es telken helyezkedik el, szintenként egy-egy lakás található.
Az ingatlan egyik legnagyobb előnye, hogy az utcáról önálló kertkapun keresztül közelíthető meg.
A lakás praktikus és élhető elrendezésű:
- nagyméretű előszoba
- 3 hálószoba (az egyikben dolgozósarokkal)
- tágas, amerikai konyhás nappali
- közlekedő, mely teljes hosszában beépíthető szekrényekkel
- külön WC, ahol a mosó- és szárítógép is helyet kapott
- fürdőszoba, melyben kád és zuhanyzó is található
- fedett terasz
Továbbá tartozik hozzá egy, a társasházon belül található száraz tároló helyiség, mely a szomszédokkal közös használatú és a kertben egy saját használatú fém kerti ház (biciklik, szerszámok tárolására).
Kert:
Az előszobából közvetlen kijárat nyílik a 9 m²-es fedett teraszra és a közös kertbe, amely ideális pihenésre, gyerekeknek játékra vagy barátokkal grillezésekhez.
A kertben található hinta, homokozó és tűzrakóhely is.
Parkolás:
Automata kapuval ellátott, saját felszíni autóbeálló található a kertben, valamint további parkolási lehetőség van közvetlen a kertkapu előtt.
Műszaki állapot
- a teljes elektromos hálózat cseréje, fürdőszoba felújítás, konyhabútor csere, burkolatok cseréje megtörtént 2018-ban
- modern műanyag nyílászárók vannak
- redőny van minden hálószobában
- szúnyogháló található minden ablakon és ajtón
- kiépített riasztórendszer van
Várom megkeresésüket!
Budaörs felsőkertvárosi, csendes utcájában eladásra kínálunk egy 90 m²-es, teraszos, kertkapcsolatos földszinti lakást egy rendezett, mindössze három lakásos társasházban. A ház 700 m2-es telken helyezkedik el, szintenként egy-egy lakás található.
Az ingatlan egyik legnagyobb előnye, hogy az utcáról önálló kertkapun keresztül közelíthető meg.
A lakás praktikus és élhető elrendezésű:
- nagyméretű előszoba
- 3 hálószoba (az egyikben dolgozósarokkal)
- tágas, amerikai konyhás nappali
- közlekedő, mely teljes hosszában beépíthető szekrényekkel
- külön WC, ahol a mosó- és szárítógép is helyet kapott
- fürdőszoba, melyben kád és zuhanyzó is található
- fedett terasz
Továbbá tartozik hozzá egy, a társasházon belül található száraz tároló helyiség, mely a szomszédokkal közös használatú és a kertben egy saját használatú fém kerti ház (biciklik, szerszámok tárolására).
Kert:
Az előszobából közvetlen kijárat nyílik a 9 m²-es fedett teraszra és a közös kertbe, amely ideális pihenésre, gyerekeknek játékra vagy barátokkal grillezésekhez.
A kertben található hinta, homokozó és tűzrakóhely is.
Parkolás:
Automata kapuval ellátott, saját felszíni autóbeálló található a kertben, valamint további parkolási lehetőség van közvetlen a kertkapu előtt.
Műszaki állapot
- a teljes elektromos hálózat cseréje, fürdőszoba felújítás, konyhabútor csere, burkolatok cseréje megtörtént 2018-ban
- modern műanyag nyílászárók vannak
- redőny van minden hálószobában
- szúnyogháló található minden ablakon és ajtón
- kiépített riasztórendszer van
Várom megkeresésüket!