Eladó Lakás
Hirdetéskód: 9251674

-

Felújításhoz személyi kölcsönt keres? Kalkuláljon itt! →
FIX 3% Program

Ez a hirdetés megfelelhet a FIX 3%-os programnak.
Tudj meg többet a részletekről itt.

50.00 m2
ALAPTERÜLET
3
SZOBASZÁM
Tégla
ÉPÍTÉS
Gáz (cirkó)
FŰTÉS
  • CSOK igénybe vehető igen
  • Belső szintek 1
  • Kilátás Udvari
  • Ingatlan komfort Összkomfortos
  • Parkolási lehetőség Udvari beálló
  • Építés éve 2009
  • Fűtés Gáz (cirkó)
  • Építőanyag Tégla
  • Erkély, terasz Erkély
  • Klíma igen
  • Szigetelt igen
  • Bútorozott igen
  • Akadálymentesített nem
Energetikai besorolás: Nincs meghatározva
A+++
A++
A+
A
B
C
D
E
F
G
H
I

Az MBH Bank személyi kölcsön ajánlata

Fizetett hirdetés
1 millió Ft
6 évre
20 585 Ft/hó
THM: 14.5%
Részletek →
2 millió Ft
6 évre
41 169 Ft/hó
THM: 14.5%
Részletek →
3 millió Ft
6 évre
61 754 Ft/hó
THM: 14.5%
Részletek →

A tájékoztatás nem teljes körű és nem minősül ajánlattételnek.

Az ingatlan leírása

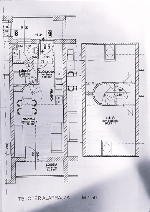
Bonyhád szívében, a város központjában, szigetelt társasházban kínálok megvételre egy 2009-ben épült, tégla szerkezetű, 50 m²-es, 2. emeleti, fa hőszigetelt nyílászárókkal ellátott lakást, amely kellemes hangulatával azonnal magával ragad. Ideális választás lehet saját otthonnak vagy befektetésnek egyaránt.


A lakásba lépve egy világos, amerikai konyhás nappali fogad, ahonnan közvetlen kijárat nyílik az erkélyre – tökéletes helyszín egy reggeli kávéhoz vagy egy hosszú nap utáni pihenéshez. Az előszoba, a külön fürdőszoba és toalett kényelmes mindennapokat biztosítanak, míg az emeleten kialakított két hálószoba meghitt, nyugodt életteret teremt.


Az otthon központi fűtéssel, gázkazánnal, valamint hűtő-fűtő klímával felszerelt, így minden évszakban kellemes hőmérséklet várja az itt lakókat. A szigetelt épületnek és a korszerű nyílászáróknak köszönhetően a rezsiköltség kedvező, a közös költség mindössze 7 500 Ft/hó.


A lakáshoz zárt udvari parkolóhely tartozik, emellett a ház mellett ingyenes parkolás is megoldott. A vételár tartalmazza a konyhabútort gépekkel és a beépített bútorokat, valamint megegyezés szerint akár a teljes bútorzatot is, így ez a lakás akár egy bőrönddel költözhető.


Elhelyezkedése igazi ajándék: óvoda, iskola, orvos, gyógyszertár, posta, buszmegálló, üzletek, valamint játszótér, szabadidőpark és könyvtár is csupán néhány perc sétára található – minden, ami a kényelmes hétköznapokhoz kell.


Vételár: 49.990.000 Ft. Készpénzes vásárlás esetén 48.990.000 Ft.
Az ingatlan tehermentes, és rövid határidővel birtokba vehető.


Megtekintés kizárólag irodánkkal előre egyeztetett időpontban lehetséges.
Ha egy meleg hangulatú, szerethető otthont keres Bonyhád központjában, ezt a lakást érdemes személyesen is megismerni.


 

Térkép

A hirdető elérhetősége

László Zsolt e.v.

Csekéné Tamás Anikó
+36 30 682