Eladó Lakás
Hirdetéskód: 9312801
GDN Ingatlanhálózat - GARDEN CITY
Felújításhoz személyi kölcsönt keres? Kalkuláljon itt! →
Ez a hirdetés megfelelhet a FIX 3%-os programnak.
Tudj meg többet a részletekről itt.
96.00 m2
ALAPTERÜLET3
SZOBASZÁMnincs megadva
ÉPÍTÉSElektromos
FŰTÉS- CSOK igénybe vehető nem
- Tetőtér beépíthető nem
- Fűtés Elektromos
- Klíma nem
- Szigetelt nem
A+++
A++
A+
A
B
C
D
E
F
G
H
I
Az ingatlan leírása
PANORÁMÁS, KIVÁLÓ OTTHON BIATORBÁGYON – TERMÉSZET KÖZELÉBEN, MÉGIS MINDENHEZ KÖZEL!
Biatorbágy egyik legkedveltebb, nyugodt részén, az Iharosban kínálunk megvételre egy igazán hangulatos, világos tetőtéri lakást, ahonnan lenyűgöző kilátás nyílik a híres Viaduktra – egy látvány, ami minden nap élményt ad.
Egy mindössze háromlakásos társasház legfelső szintjén található ez a 2013-ban a tetőtérben kialakított, újszerű állapotú otthon, amely ideális választás pároknak, kisebb családoknak vagy akár befektetésnek is.
Lakás jellemzői:
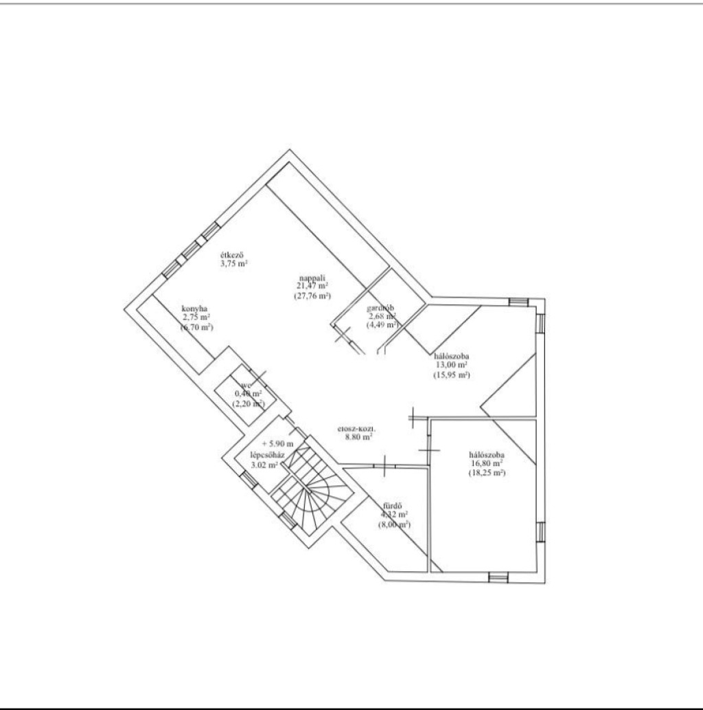
bruttó 96 m² / nettó 74 m²
tágas amerikai konyhás nappali
2 külön nyíló hálószoba
fürdőszoba + külön WC
praktikus gardrób
kiváló elosztás, élhető terek
A lakás egész nap fényárban úszik, barátságos hangulatú, azonnal költözhető állapotban van.
Modern műszaki megoldások:
4 db korszerű, WIFI vezérelhető DAIKIN klíma (hűtés-fűtés)
energiatakarékos működés
okosbojler a melegvízhez
kedvezményes H tarifa → alacsony rezsi
Saját, telken belüli gépkocsi beálló tartozik a lakáshoz – benne az árban.
Környezet:
Ha szereti a természetet, ezt imádni fogja, kirándulóhelyek, friss levegő, csend, nyugalom.
Mindezek mellett a városközpont 10-12 perc sétával elérhető, ahol minden fontos szolgáltatás megtalálható. Buszmegálló is a közelben.
Budapest mindössze kb. 20 perc autóval – így tökéletes választás azoknak, akik nyugalomra vágynak, de nem akarnak elszakadni a fővárostól.
Ha egy modern, alacsony rezsijű, különleges hangulatú otthont keres zöld környezetben, ezt a lakást mindenképp nézze meg!
Az ilyen adottságú ingatlanok ritkán kerülnek piacra. Ne maradjon le róla! ...TOVÁBBI, TÖBBEZRES INGATLAN KÍNÁLAT: - GDN azonosító: 394218
Biatorbágy egyik legkedveltebb, nyugodt részén, az Iharosban kínálunk megvételre egy igazán hangulatos, világos tetőtéri lakást, ahonnan lenyűgöző kilátás nyílik a híres Viaduktra – egy látvány, ami minden nap élményt ad.
Egy mindössze háromlakásos társasház legfelső szintjén található ez a 2013-ban a tetőtérben kialakított, újszerű állapotú otthon, amely ideális választás pároknak, kisebb családoknak vagy akár befektetésnek is.
Lakás jellemzői:
bruttó 96 m² / nettó 74 m²
tágas amerikai konyhás nappali
2 külön nyíló hálószoba
fürdőszoba + külön WC
praktikus gardrób
kiváló elosztás, élhető terek
A lakás egész nap fényárban úszik, barátságos hangulatú, azonnal költözhető állapotban van.
Modern műszaki megoldások:
4 db korszerű, WIFI vezérelhető DAIKIN klíma (hűtés-fűtés)
energiatakarékos működés
okosbojler a melegvízhez
kedvezményes H tarifa → alacsony rezsi
Saját, telken belüli gépkocsi beálló tartozik a lakáshoz – benne az árban.
Környezet:
Ha szereti a természetet, ezt imádni fogja, kirándulóhelyek, friss levegő, csend, nyugalom.
Mindezek mellett a városközpont 10-12 perc sétával elérhető, ahol minden fontos szolgáltatás megtalálható. Buszmegálló is a közelben.
Budapest mindössze kb. 20 perc autóval – így tökéletes választás azoknak, akik nyugalomra vágynak, de nem akarnak elszakadni a fővárostól.
Ha egy modern, alacsony rezsijű, különleges hangulatú otthont keres zöld környezetben, ezt a lakást mindenképp nézze meg!
Az ilyen adottságú ingatlanok ritkán kerülnek piacra. Ne maradjon le róla! ...TOVÁBBI, TÖBBEZRES INGATLAN KÍNÁLAT: - GDN azonosító: 394218