Eladó Lakás
Hirdetéskód: 9278897
Salgótarján Rákóczi út 1-9 - OTP Ingatlanpont Iroda
Felújításhoz személyi kölcsönt keres? Kalkuláljon itt! →
Ez a hirdetés megfelelhet a FIX 3%-os programnak.
Tudj meg többet a részletekről itt.
55.00 m2
ALAPTERÜLET2
SZOBASZÁMnincs megadva
ÉPÍTÉSGáz (konvektor)
FŰTÉS- CSOK igénybe vehető nem
- Belső szintek 1
- Tetőtér beépíthető nem
- Építés éve 1980
- Fűtés Gáz (konvektor)
- Klíma nem
- Szigetelt nem
A+++
A++
A+
A
B
C
D
E
F
G
H
I
Az ingatlan leírása
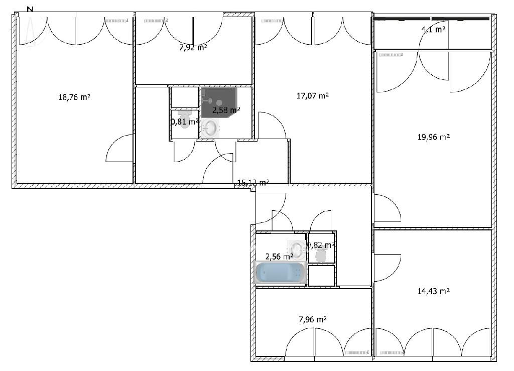
Nógrád megyében, Bátonyterenyén a Barátság úton eladó egy 4. emeleti, 55 nm-es lakás, amely részleges felújításon esett át, így új tulajdonosa saját ízlésére szabhatja a befejezést.
A lakás helyiségei:
2 szoba
konyha
fürdőszoba (külön WC)
előszoba
A felújítás során:
Teljes elektromos- és vízhálózat cseréje megtörtént
Új műanyag nyílászárók (ablakok, bejárati ajtó)
Redőny és szúnyogháló felszerelve
A fürdőszoba minden berendezése vadonatúj, még nem használt
A felújítás befejezése az új tulajdonosra vár:
falak festése
új, bontatlan csomagolású beltéri ajtók beépítése
Különleges lehetőség!
Az eladó tulajdonában két egymás mellett lévő lakás található, amelyek statikai szakvéleménnyel alátámasztva összenyitásra kerültek.
A másik lakás:
53 nm(erkélyes)
Együtt megvásárolva:
2 konyha
2 fürdőszoba
2 WC
4 szoba
1 erkély
A lakások külön-külön is megvásárolhatók. Amennyiben külön kerülnek értékesítésre, az összenyitás természetesen visszaállításra kerül.
Ideális választás:
nagyobb családnak
összeköltözőknek
befektetőknek
vagy két generáció számára
További információért és megtekintésért keressen bizalommal!
A lakás helyiségei:
2 szoba
konyha
fürdőszoba (külön WC)
előszoba
A felújítás során:
Teljes elektromos- és vízhálózat cseréje megtörtént
Új műanyag nyílászárók (ablakok, bejárati ajtó)
Redőny és szúnyogháló felszerelve
A fürdőszoba minden berendezése vadonatúj, még nem használt
A felújítás befejezése az új tulajdonosra vár:
falak festése
új, bontatlan csomagolású beltéri ajtók beépítése
Különleges lehetőség!
Az eladó tulajdonában két egymás mellett lévő lakás található, amelyek statikai szakvéleménnyel alátámasztva összenyitásra kerültek.
A másik lakás:
53 nm(erkélyes)
Együtt megvásárolva:
2 konyha
2 fürdőszoba
2 WC
4 szoba
1 erkély
A lakások külön-külön is megvásárolhatók. Amennyiben külön kerülnek értékesítésre, az összenyitás természetesen visszaállításra kerül.
Ideális választás:
nagyobb családnak
összeköltözőknek
befektetőknek
vagy két generáció számára
További információért és megtekintésért keressen bizalommal!