Eladó Lakás
Hirdetéskód: 9234953

OTP Ingatlanpont Siófok

154 m2
ALAPTERÜLET
7
SZOBASZÁM
nincs megadva
ÉPÍTÉS
nincs megadva
FŰTÉS
  • CSOK igénybe vehető nem
  • Tetőtér beépíthető nem
  • Építés éve 1997
  • Klíma nem
  • Szigetelt nem
Energetikai besorolás: Nincs meghatározva
A+++
A++
A+
A
B
C
D
E
F
G
H
I

Az ingatlan leírása

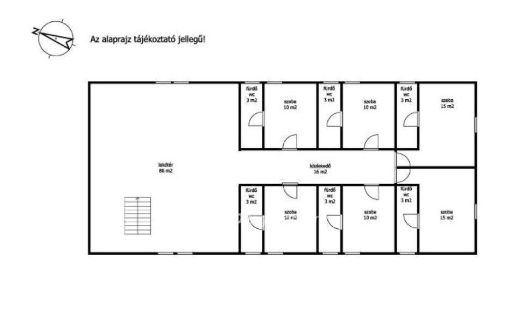
Balaton déli part, Balatonmáriafürdőn eladó egy partközeli étterem tetőterében kialakított 197 m2-es lakás. Külön bejáraton közelíthető meg, parkolni az utcán lehet. Fűtése gázkazánnal és radiátorokkal került kialakításra. A nappali/konyhán kívül 6 szoba található benne, mindegyik külön fürdőszobával. Az épület felújításra szorul.
Balaton-parti strand 5 perc sétával elérhető.
Otthon Start Hitelprogram
További információért keressen bizalommal!

Térkép

A hirdető elérhetősége

OTP Ingatlanpont Siófok

Lestyán László Józsefné Lakati Melinda
+36 70 455