Eladó Lakás
Hirdetéskód: 9180640
Balatonfűzfő Munkás tér 3 - OTP Ingatlanpont Iroda
55 m2
ALAPTERÜLET3
SZOBASZÁMnincs megadva
ÉPÍTÉSGeotermikus
FŰTÉS- CSOK igénybe vehető nem
- Tetőtér beépíthető nem
- Építés éve 2025
- Fűtés Geotermikus
- Klíma nem
- Szigetelt nem
A+++
A++
A+
A
B
C
D
E
F
G
H
I
Az ingatlan leírása
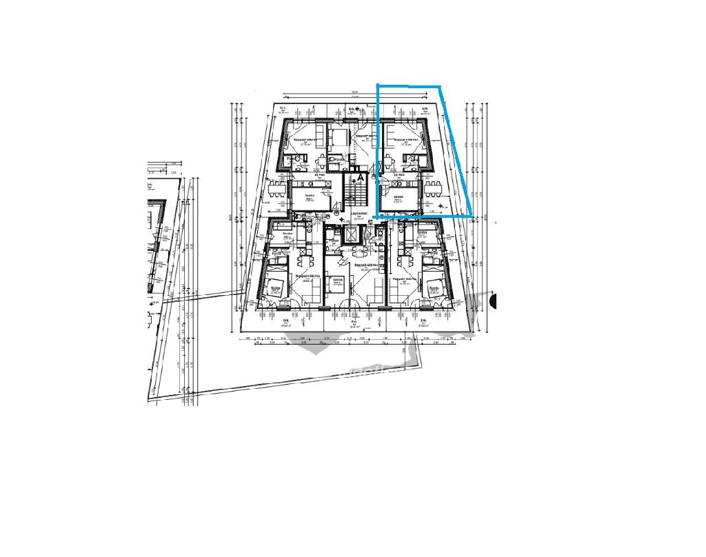
Balatonalmádiban, a Wesselényi Üdülőparkban eladó egy újépítésű, 55 m2-es Földszinti apartman.
Lokáció: mindössze 50 méterre található a Balatontól és 2 perc sétára a Wesselényi strand bejáratától.
Az ingatlan nappali + 2 hálószobás elrendezéssel, külön fürdőszobával és WC-vel rendelkezik, valamint egy 20 m2-es, privát használatú terasz(kertkapcsolat) is tartozik majd hozzá.
Projek információk:
Négy különálló, négyszintes épületből áll, amelyek modern, exkluzív megjelenést és kiemelkedő műszaki tartalmat kínálnak. A lakások mérete 45 és 77 m2 között változik, a teraszok és erkélyek mérete pedig 14-től 33 m2-ig.
Mélygarázs elhelyezkedése a B, C és a D épület alatt, ahol a gépkocsi beállók opcionálisan megvásárolható 9,9 millió forintért, elektromos autótöltési lehetőséggel.
A műszaki felszereltség része a hőszivattyús fűtés padlófűtéssel és fan-coil rendszerrel, a háromrétegű üvegezésű nyílászárók, a 20 cm vastag homlokzati szigetelés, az elektromos vezérlésre előkészített, rejtett redőnyök, valamint a lapostetős kialakítás UV- és PVC-szigeteléssel. Az épületek lifttel felszereltek.
A vételár 27% ÁFÁ-val értendő, ami céges vásárlás esetén kedvező megoldást kínál, továbbá a beruházó rugalmas fizetési ütemezést biztosít az ügyfelek számára. Ez a projekt kivételes lehetőség mindazoknak, akik a Balaton partján keresnek prémium minőségű, modern otthont vagy értékálló befektetést.
Az apartmanok emeltszintű szerkezetkész állapotban, 2026 tavaszán kerülnek átadásra.
Lokáció: mindössze 50 méterre található a Balatontól és 2 perc sétára a Wesselényi strand bejáratától.
Az ingatlan nappali + 2 hálószobás elrendezéssel, külön fürdőszobával és WC-vel rendelkezik, valamint egy 20 m2-es, privát használatú terasz(kertkapcsolat) is tartozik majd hozzá.
Projek információk:
Négy különálló, négyszintes épületből áll, amelyek modern, exkluzív megjelenést és kiemelkedő műszaki tartalmat kínálnak. A lakások mérete 45 és 77 m2 között változik, a teraszok és erkélyek mérete pedig 14-től 33 m2-ig.
Mélygarázs elhelyezkedése a B, C és a D épület alatt, ahol a gépkocsi beállók opcionálisan megvásárolható 9,9 millió forintért, elektromos autótöltési lehetőséggel.
A műszaki felszereltség része a hőszivattyús fűtés padlófűtéssel és fan-coil rendszerrel, a háromrétegű üvegezésű nyílászárók, a 20 cm vastag homlokzati szigetelés, az elektromos vezérlésre előkészített, rejtett redőnyök, valamint a lapostetős kialakítás UV- és PVC-szigeteléssel. Az épületek lifttel felszereltek.
A vételár 27% ÁFÁ-val értendő, ami céges vásárlás esetén kedvező megoldást kínál, továbbá a beruházó rugalmas fizetési ütemezést biztosít az ügyfelek számára. Ez a projekt kivételes lehetőség mindazoknak, akik a Balaton partján keresnek prémium minőségű, modern otthont vagy értékálló befektetést.
Az apartmanok emeltszintű szerkezetkész állapotban, 2026 tavaszán kerülnek átadásra.