Eladó Lakás
Hirdetéskód: 9107697
Balatonfűzfő Munkás tér 3 - OTP Ingatlanpont Iroda
Felújításhoz személyi kölcsönt keres? Kalkuláljon itt! →68.00 m2
ALAPTERÜLET3
SZOBASZÁMnincs megadva
ÉPÍTÉSGeotermikus
FŰTÉS- CSOK igénybe vehető nem
- Tetőtér beépíthető nem
- Építés éve 2025
- Fűtés Geotermikus
- Klíma nem
- Szigetelt nem
A+++
A++
A+
A
B
C
D
E
F
G
H
I
Az ingatlan leírása
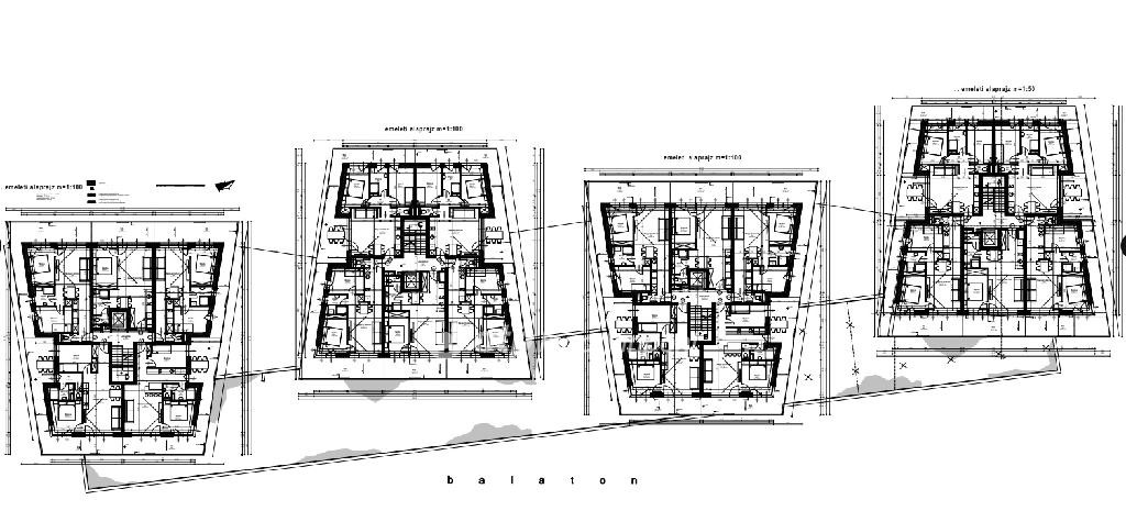
Eladó egy újépítésű, 68m2-es apartman BALATONALMÁDIBAN a Wesselényi Lakóparkban ami a Balatontól mindössze 50 méterre, a Wesselényi strand bejáratától pedig 2 perc sétára helyezkedik el. Az apartman 52,5 m2 alapterületű, nappali plusz két külön nyíló szobával, külön fürdőszobával és WC-vel, valamint egy 31 m2-es, erkéllyel fog rendelkezni.
A projektben négy különálló, négyszintes épület épül ahol a második és harmadik emeletről teljes balatoni panoráma tárul elénk.
Az apartmanok mérete 45m2 és 77m2 között változik. Az erkélyek mérete szintén kiemelkedő: 14m2, 31m2 egészen 33m2-ig.
Műszaki tartalom: Modern hőszivattyús fűtés, padlófűtés és fan-coil rendszer biztosítja a komfortot, a meleg vizet 80 literes villanybojler szolgáltatja. A kiváló hő- és hangszigetelésről a 20 cm vastag homlokzati szigetelés, valamint a háromrétegű üvegezéssel ellátott nyílászárók gondoskodnak. A rejtett redőnyök elektromos vezérlésre előkészítve az épületek lapostetős kialakításúak, UV- és PVC-szigeteléssel rendelkeznek majd.
Az épületek lifttel ellátottak, a parkolást pedig igény szerint bruttó 9,9 millió forintért érhető el, elektromos autótöltési lehetőséggel
Ez a projekt páratlan lehetőséget kínál azok számára, akik prémium minőségű, balatoni panorámás otthonra vagy befektetésre vágynak, rendkívüli lokációban, a Balaton partján. Az apartmanok emeltszintű SZERKEZETKÉSZ állapotban kerülnek átadásra, ami magában foglalja a lépcsőház, teraszok és erkélyek hidegburkolását!
Az apartman 27% ÁFÁ-val értendők, így céges vásárlás esetén ez kedvezőbb megoldás lehet vállalkozásoknak. A cég kiemelt figyelmet fordít arra, hogy rugalmas fizetési ütemezéssel igazodjon ügyfelei egyedi igényeihez.
Az üdülőpark modern, exkluzív megjelenésű épületekkel és kiemelkedő műszaki tartalommal várja új tulajdonosait a még megmaradt ingatlanok tekintetében.
A projektben négy különálló, négyszintes épület épül ahol a második és harmadik emeletről teljes balatoni panoráma tárul elénk.
Az apartmanok mérete 45m2 és 77m2 között változik. Az erkélyek mérete szintén kiemelkedő: 14m2, 31m2 egészen 33m2-ig.
Műszaki tartalom: Modern hőszivattyús fűtés, padlófűtés és fan-coil rendszer biztosítja a komfortot, a meleg vizet 80 literes villanybojler szolgáltatja. A kiváló hő- és hangszigetelésről a 20 cm vastag homlokzati szigetelés, valamint a háromrétegű üvegezéssel ellátott nyílászárók gondoskodnak. A rejtett redőnyök elektromos vezérlésre előkészítve az épületek lapostetős kialakításúak, UV- és PVC-szigeteléssel rendelkeznek majd.
Az épületek lifttel ellátottak, a parkolást pedig igény szerint bruttó 9,9 millió forintért érhető el, elektromos autótöltési lehetőséggel
Ez a projekt páratlan lehetőséget kínál azok számára, akik prémium minőségű, balatoni panorámás otthonra vagy befektetésre vágynak, rendkívüli lokációban, a Balaton partján. Az apartmanok emeltszintű SZERKEZETKÉSZ állapotban kerülnek átadásra, ami magában foglalja a lépcsőház, teraszok és erkélyek hidegburkolását!
Az apartman 27% ÁFÁ-val értendők, így céges vásárlás esetén ez kedvezőbb megoldás lehet vállalkozásoknak. A cég kiemelt figyelmet fordít arra, hogy rugalmas fizetési ütemezéssel igazodjon ügyfelei egyedi igényeihez.
Az üdülőpark modern, exkluzív megjelenésű épületekkel és kiemelkedő műszaki tartalommal várja új tulajdonosait a még megmaradt ingatlanok tekintetében.