Eladó Lakás
Hirdetéskód: 8870470
Balatonfűzfő Munkás tér 3 - OTP Ingatlanpont Iroda
Felújításhoz személyi kölcsönt keres? Kalkuláljon itt! →68.00 m2
ALAPTERÜLET3
SZOBASZÁMnincs megadva
ÉPÍTÉSGeotermikus
FŰTÉS- CSOK igénybe vehető nem
- Tetőtér beépíthető nem
- Építés éve 2025
- Fűtés Geotermikus
- Klíma nem
- Szigetelt nem
A+++
A++
A+
A
B
C
D
E
F
G
H
I
Az ingatlan leírása
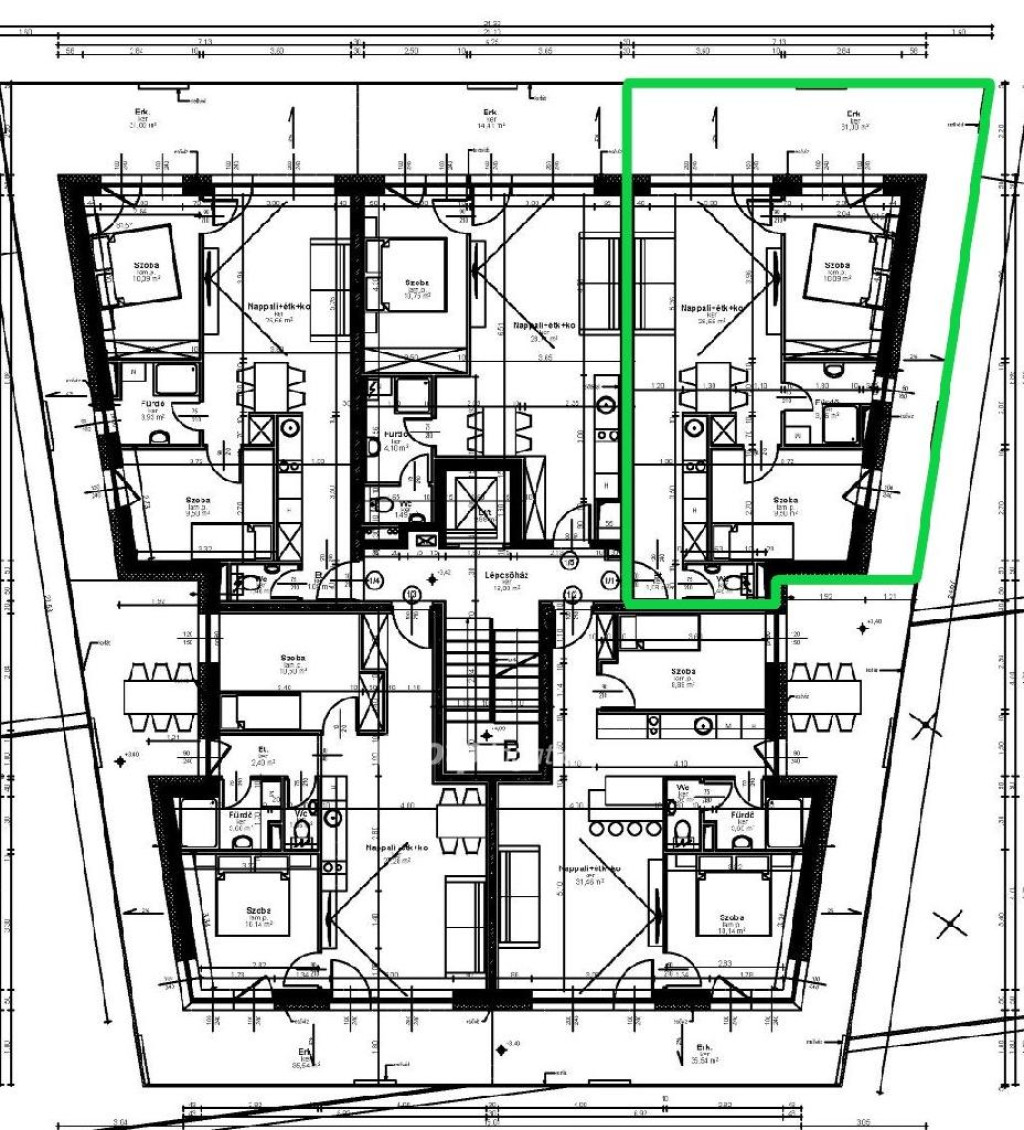
Eladó egy újépítésű, 68m2-es apartman BALATONALMÁDIBAN a Wesselényi Lakóparkban ami a Balatontól mindössze 50 méterre, a Wesselényi strand bejáratától pedig 350 méterre helyezkedik el. Az apartman 52 m2 alapterületű, nappali plusz két külön nyíló szobával, külön fürdőszobával és WC-vel, valamint egy 31 m2-es, erkéllyel fog rendelkezni. Az ingatlanok emeltszintű szerkezetkész állapotban kerülnek átadásra 2026-ban. Az apartman 27% ÁFÁ-val értendők, így céges vásárlás esetén ez kedvezőbb megoldás lehet vállalkozásoknak. A cég kiemelt figyelmet fordít arra, hogy rugalmas fizetési ütemezéssel igazodjon ügyfelei egyedi igényeihez. A lakópark modern, exkluzív megjelenésű épületekkel és kiemelkedő műszaki tartalommal várja új tulajdonosait a még megmaradt ingatlanok tekintetében. A projektben négy különálló, háromszintes épület épül, a második és harmadik emeletről teljes balatoni kilátással. Az apartmanok mérete 45m2 és 77m2 között változik. Az erkélyek mérete szintén kiemelkedő: 14m2, 31m2 egészen 33m2.
Műszaki tartalom: Modern hőszivattyús fűtés, padlófűtés és fan-coil rendszer biztosítja a komfortot, a meleg vizet 80 literes villanybojler szolgáltatja. A kiváló hő- és hangszigetelésről a 20 cm vastag homlokzati szigetelés, valamint a háromrétegű üvegezéssel ellátott nyílászárók gondoskodnak. A rejtett redőnyök elektromos vezérlésre előkészítve az épületek lapostetős kialakításúak, UV- és PVC-szigeteléssel rendelkeznek majd. Az épületek lifttel ellátottak, a parkolást pedig igény szerint vásárolható felszíni vagy mélygarázs beállók biztosítják. A felszíni parkoló bruttó 6 millió forintért, a mélygarázs beálló bruttó 9,9 millió forintért érhető el, elektromos autótöltési lehetőséggel. Ez a projekt páratlan lehetőséget kínál azok számára, akik prémium minőségű, balatoni panorámás otthonra vagy befektetésre vágynak, rendkívüli lokációban, a Balaton partján. Az apartmanok emeltszintű SZERKEZETKÉSZ állapotban kerülnek átadásra, ami magában foglalja a teraszok és erkélyek hidegburkolását!
Műszaki tartalom: Modern hőszivattyús fűtés, padlófűtés és fan-coil rendszer biztosítja a komfortot, a meleg vizet 80 literes villanybojler szolgáltatja. A kiváló hő- és hangszigetelésről a 20 cm vastag homlokzati szigetelés, valamint a háromrétegű üvegezéssel ellátott nyílászárók gondoskodnak. A rejtett redőnyök elektromos vezérlésre előkészítve az épületek lapostetős kialakításúak, UV- és PVC-szigeteléssel rendelkeznek majd. Az épületek lifttel ellátottak, a parkolást pedig igény szerint vásárolható felszíni vagy mélygarázs beállók biztosítják. A felszíni parkoló bruttó 6 millió forintért, a mélygarázs beálló bruttó 9,9 millió forintért érhető el, elektromos autótöltési lehetőséggel. Ez a projekt páratlan lehetőséget kínál azok számára, akik prémium minőségű, balatoni panorámás otthonra vagy befektetésre vágynak, rendkívüli lokációban, a Balaton partján. Az apartmanok emeltszintű SZERKEZETKÉSZ állapotban kerülnek átadásra, ami magában foglalja a teraszok és erkélyek hidegburkolását!