Eladó Lakás
Hirdetéskód: 9283594

HAUS-GRUND Ingatlaniroda

Felújításhoz személyi kölcsönt keres? Kalkuláljon itt! →
82.00 m2
ALAPTERÜLET
3
SZOBASZÁM
Tégla
ÉPÍTÉS
Hőszivattyú
FŰTÉS
  • Belső szintek 3
  • Ingatlan komfort Összkomfortos
  • Parkolási lehetőség Udvari beálló
  • Építés éve 2026
  • Fűtés Hőszivattyú
  • Építőanyag Tégla
  • Erkély, terasz Terasz 40.00m2
  • Kertkapcsolat igen 200.00m2
  • Klíma igen
  • Szigetelt igen
Energetikai besorolás: Nincs meghatározva
A+++
A++
A+
A
B
C
D
E
F
G
H
I

Az MBH Bank személyi kölcsön ajánlata

Fizetett hirdetés
1 millió Ft
6 évre
20 585 Ft/hó
THM: 14.5%
Részletek →
2 millió Ft
6 évre
41 169 Ft/hó
THM: 14.5%
Részletek →
3 millió Ft
6 évre
61 754 Ft/hó
THM: 14.5%
Részletek →

A tájékoztatás nem teljes körű és nem minősül ajánlattételnek.

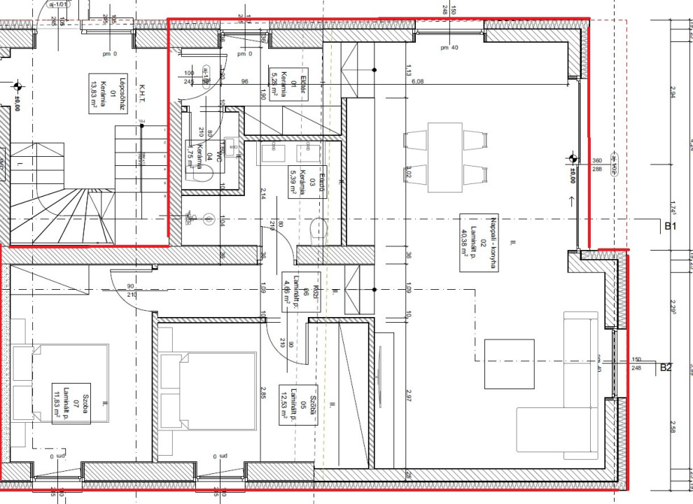
Az ingatlan leírása

Balatonalmádi központjában, a Wesselényi strandtól mindössze pár száz méter távolságra található az új építésű, négylakásos társasház.


Az épület modern stílusban kerül felépítésre, a mai követelményeknek megfelelő műszaki megoldásokkal ötvözve.


A földszinten található két lakás és az emeleti két lakás alapterülete, és a hozzá tartozó teraszok mérete eltérő.


A lakások mindegyikének fűtéséről és melegvíz ellátásáról saját (Fischer) hőszivattyú gondoskodik (padlófűtés) ’H’ tarifán keresztül. A téli-nyári tökéletes komfort elérésének érdekében a szobákban és a nappaliban (Gree) hűtő-fűtő klímaberendezés is felszerelésre kerül.


Az ingatlanokba beépítésre kerülő konyhabútorok (Nobilia), szaniterek (Hansgrohe), hideg-meleg burkolatok, valamint a kivitelezés is magas színvonalat képviselnek.


A 20 cm-es hőszigeteléssel ellátott épület külső nyílászárói három rétegű, alumínium ablakok, melyeken a zsaluzia felszerelésének előkészítése kialakításra kerül.


Minden lakáshoz tartozik 1 db, a pinceszinten kialakított tároló, mely megvásárolandó (4 M Ft.), valamint lehetőség van térkövezett udvari beálló (elektromos töltési lehetőséggel) megvételére is (2 M Ft.).


A földszinti lakásokhoz tartozó, privát kertrészt is tartalmaz a vételár.


 


A lakások kulcsrakész állapotban kerülnek átadásra 2026. tavaszán.


(A feltüntetett képek látványtervek!)


Amennyiben hirdetésünk felkeltette érdeklődését, kérem, hívja a Haus-Grund Ingatlanirodát.
Hiteligénye esetén megkeressük Önnek a legkedvezőbbet.

Térkép

Ingatlan adásvétel ügyvédi díja
600 000 Ft
a hirdetésben szereplő ár alapján
  • A vételár 0,45%-a
  • Szerződéscsomag teljeskörű képviselettel
  • Ingyenes tulajdoni lap ellenőrzés
  • Az ÁFA-t már tartalmazza
Érdekel az ajánlat →
A tájékoztatás nem teljes körű és nem minősül ajánlattételnek. Minimum díj: 150 000 Ft, maximum díj: 600 000 Ft. A díj kizárólag lakóingatlan adásvételére vonatkozik.

A hirdető elérhetősége

HAUS-GRUND Ingatlaniroda

HAUS-GRUND Ingatlaniroda
+36 70 376