Eladó Kereskedelmi és ipari ingatlan
Hirdetéskód: 9291368
Veszprém Kossuth utca 8 - OTP Ingatlanpont Iroda
Felújításhoz személyi kölcsönt keres? Kalkuláljon itt! →226.00 m2
ALAPTERÜLET0
SZOBASZÁMnincs megadva
ÉPÍTÉSEgyéb fűtés
FŰTÉS- CSOK igénybe vehető nem
- Tetőtér beépíthető nem
- Építés éve 1995
- Fűtés Egyéb fűtés
- Klíma nem
- Szigetelt nem
A+++
A++
A+
A
B
C
D
E
F
G
H
I
Az ingatlan leírása
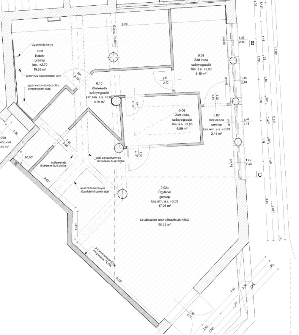
Veszprém vármegyében, Zirc központjában 96 m2-es, üzlethelyiségnek, irodának, orvosi rendelőnek, szolgáltatóipari egységnek is kiválóan alkalmas épületrész eladó!
Az 1995-ben épült ingatlan egy 3 szintes épület földszintjén található.
A vasbeton alapra épült felépítmény tartófalai 38 cm vastag téglából épültek, kétoldali vakolattal, vasbeton pillér megerősítéssel és vasbeton födémmel. A fa szerkezetű magastető bitumenes cseréppel fedett. A belső térelválasztó elemek gipszkarton szerkezetűek.
A külső nyílászárók fából készültek, 2 rétegű hőszigetelő üvegezéssel. A padlóburkolat kerámia lap és padlószőnyeg.
Az ingatlanban a 47 m2-es ügyféltéren kívül három, külön bejárattal rendelkező kisebb helyiség került kialakításra, és mivel a belső falazat gipszkarton, ezért új tulajdonosa könnyedén variálhatja a belső teret.
Ez az épületrész jelenleg nem rendelkezik közművekkel, csak rácsatlakozási lehetőséggel. Ezek kiépítése az új tulajdonosra vár.
Az értékesítésre szánt ingatlanrészben található mobíliák a vételár részét képezik.
Az ingatlan lokációja kiváló, a közelben közintézmények, kereskedelmi-, és vendéglátó egységek találhatók. Tömegközlekedési kapcsolata jó, a buszmegálló pár lépés, a vasútállomás öt perc séta.
Köszönöm, hogy figyelmével megtisztelte hirdetésemet. Amennyiben felkeltette érdeklődését, vagy további kérdések merülnek fel Önben, várom hívását. Időpont egyeztetése után megtekinthető az ingatlan.
Nálunk minden ingatlan megtekintése DÍJMENTES!
Az OTP Ingatlanpont teljes körű ügyintézéssel áll az eladók és a vevők szolgálatára. A kínálatunkból választott ingatlan finanszírozásához szükség esetén kedvezményes hitelkonstrukciót ajánlunk. Az adásvételi szerződés megkötéséhez igény szerint megbízható ügyvédi közreműködést biztosítunk és segítséget nyújtunk az adásvételhez kapcsolódó ügyintézéshez.
Az 1995-ben épült ingatlan egy 3 szintes épület földszintjén található.
A vasbeton alapra épült felépítmény tartófalai 38 cm vastag téglából épültek, kétoldali vakolattal, vasbeton pillér megerősítéssel és vasbeton födémmel. A fa szerkezetű magastető bitumenes cseréppel fedett. A belső térelválasztó elemek gipszkarton szerkezetűek.
A külső nyílászárók fából készültek, 2 rétegű hőszigetelő üvegezéssel. A padlóburkolat kerámia lap és padlószőnyeg.
Az ingatlanban a 47 m2-es ügyféltéren kívül három, külön bejárattal rendelkező kisebb helyiség került kialakításra, és mivel a belső falazat gipszkarton, ezért új tulajdonosa könnyedén variálhatja a belső teret.
Ez az épületrész jelenleg nem rendelkezik közművekkel, csak rácsatlakozási lehetőséggel. Ezek kiépítése az új tulajdonosra vár.
Az értékesítésre szánt ingatlanrészben található mobíliák a vételár részét képezik.
Az ingatlan lokációja kiváló, a közelben közintézmények, kereskedelmi-, és vendéglátó egységek találhatók. Tömegközlekedési kapcsolata jó, a buszmegálló pár lépés, a vasútállomás öt perc séta.
Köszönöm, hogy figyelmével megtisztelte hirdetésemet. Amennyiben felkeltette érdeklődését, vagy további kérdések merülnek fel Önben, várom hívását. Időpont egyeztetése után megtekinthető az ingatlan.
Nálunk minden ingatlan megtekintése DÍJMENTES!
Az OTP Ingatlanpont teljes körű ügyintézéssel áll az eladók és a vevők szolgálatára. A kínálatunkból választott ingatlan finanszírozásához szükség esetén kedvezményes hitelkonstrukciót ajánlunk. Az adásvételi szerződés megkötéséhez igény szerint megbízható ügyvédi közreműködést biztosítunk és segítséget nyújtunk az adásvételhez kapcsolódó ügyintézéshez.