Eladó Kereskedelmi és ipari ingatlan
Hirdetéskód: 8352972
HOUSE36 Ingatlanhálózat
Felújításhoz személyi kölcsönt keres? Kalkuláljon itt! →960.00 m2
ALAPTERÜLET0
SZOBASZÁMnincs megadva
ÉPÍTÉSEgyéb fűtés
FŰTÉS- CSOK igénybe vehető nem
- Tetőtér beépíthető nem
- Fűtés Egyéb fűtés
- Klíma nem
- Szigetelt nem
A+++
A++
A+
A
B
C
D
E
F
G
H
I
Az ingatlan leírása
Tiszakécskén, közvetlenül a főút mellett a tiszakécskei gyógy-és termál fürdő és a Tisza parti üdülőövezet közelében, eladó egy több épületből álló ingatlan.
A most megépülő M44 autópályán könnyen elérhető az ország bármely pontja.
Az épület alkalmas szálloda, panzió, nyugdíjas otthon, munkás szálló kialakítására is.
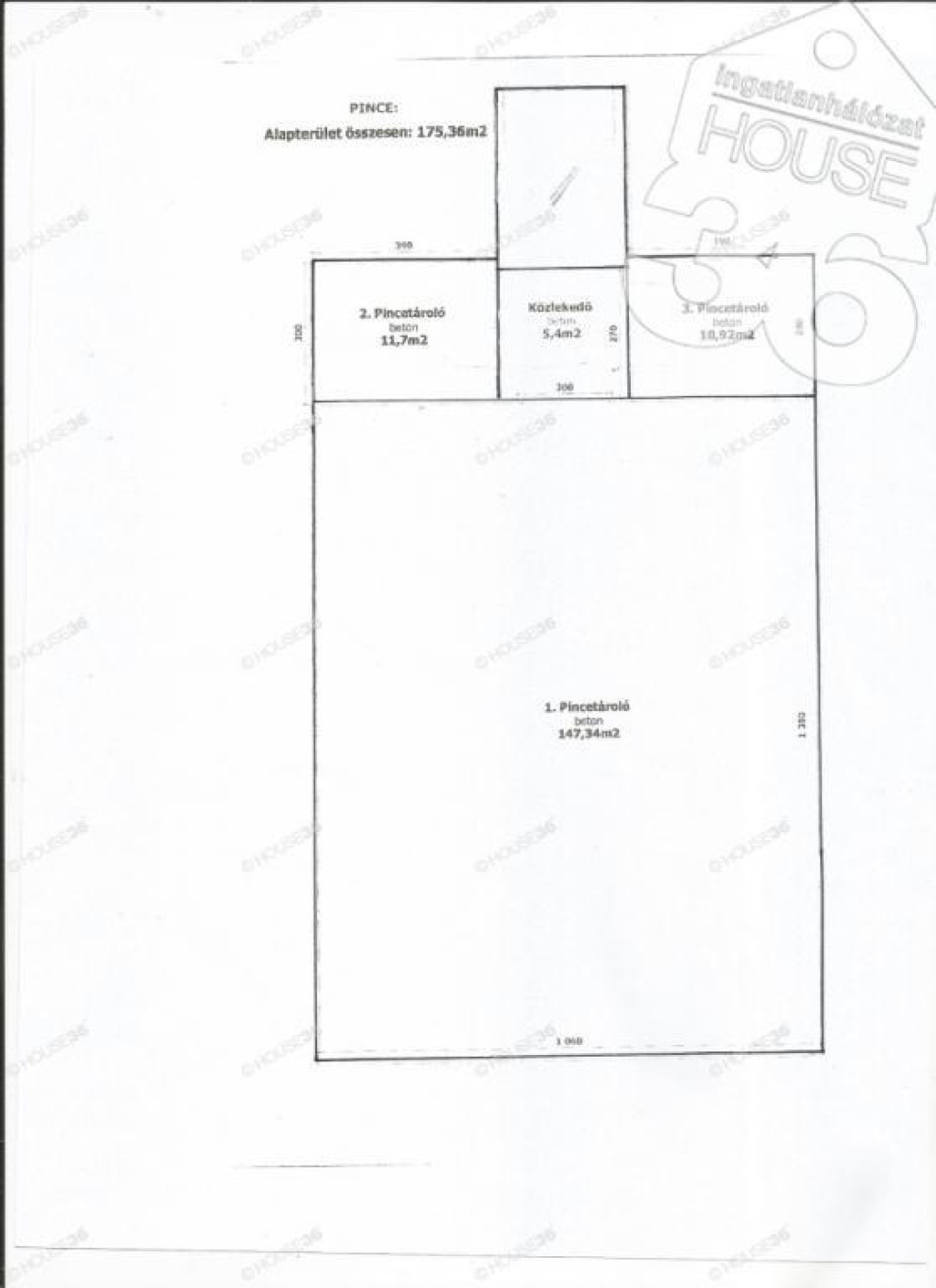
A ázad elején épült alápincézett kastély épületben 8 szoba és fürdők.
A 80-as években épült L alakú épületben amelynek egyik szárnya emeletes 13 szoba található mindegyikben fürdőszobával.
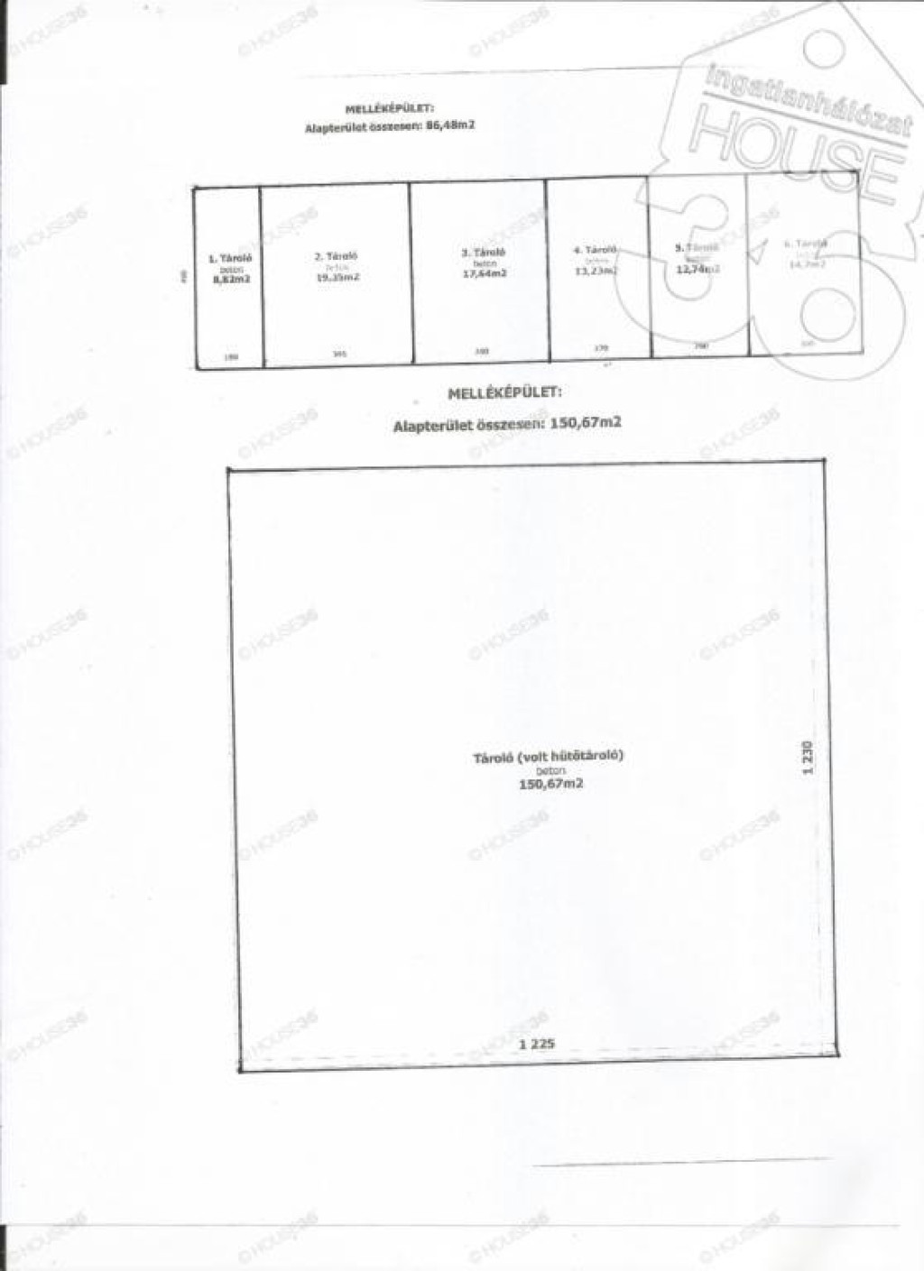
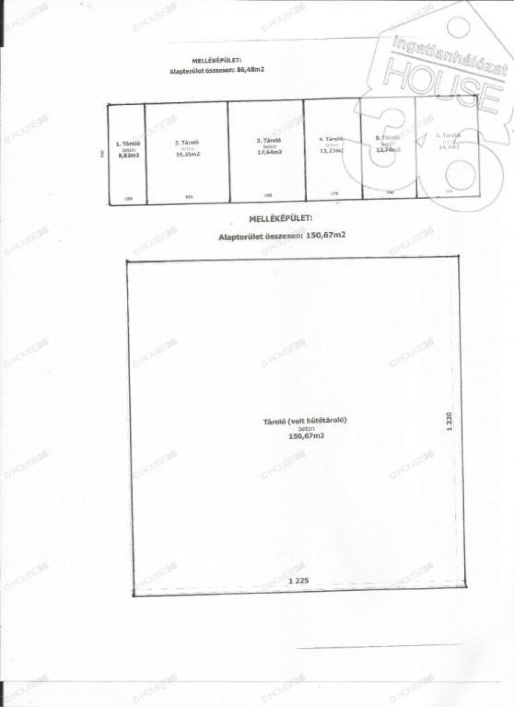
Melléképület raktárakkal.
A telken található még egy 150 m2 alapterületű hűtőház.
- összközműves
- teljesen bekerített 8599 m2 telek
- buszmegálló a kapuban
- főút mellett
- kúria épület 210.74 m2
- Pince a főépület alatt 175.36 m2
- L alakú épület földszint 349,51 m2
- L alakú épület emelet 228.3 m2
- Tároló hűtő 150.67 m2
- melléképület 84.48 m2
Az épületekben további szobák kialakítására is van lehetőség.
Rendezett parkosított terület .
Mivel a 90-es évek vége óta az ingatlan nincs hasznosítva ezért felújítást igényel.
Az ingatlan akár hét végén is megtekinthető.Hívjon.Nézzük meg.
Figyelem az adatlap megbízónktól kapott adatok alapján készült pontosságáért felelősséget vállalni nem tudunk.
A most megépülő M44 autópályán könnyen elérhető az ország bármely pontja.
Az épület alkalmas szálloda, panzió, nyugdíjas otthon, munkás szálló kialakítására is.
A ázad elején épült alápincézett kastély épületben 8 szoba és fürdők.
A 80-as években épült L alakú épületben amelynek egyik szárnya emeletes 13 szoba található mindegyikben fürdőszobával.
Melléképület raktárakkal.
A telken található még egy 150 m2 alapterületű hűtőház.
- összközműves
- teljesen bekerített 8599 m2 telek
- buszmegálló a kapuban
- főút mellett
- kúria épület 210.74 m2
- Pince a főépület alatt 175.36 m2
- L alakú épület földszint 349,51 m2
- L alakú épület emelet 228.3 m2
- Tároló hűtő 150.67 m2
- melléképület 84.48 m2
Az épületekben további szobák kialakítására is van lehetőség.
Rendezett parkosított terület .
Mivel a 90-es évek vége óta az ingatlan nincs hasznosítva ezért felújítást igényel.
Az ingatlan akár hét végén is megtekinthető.Hívjon.Nézzük meg.
Figyelem az adatlap megbízónktól kapott adatok alapján készült pontosságáért felelősséget vállalni nem tudunk.