Eladó Kereskedelmi és ipari ingatlan
Hirdetéskód: 9281197
Kiss György Csaba
Felújításhoz személyi kölcsönt keres? Kalkuláljon itt! →69.00 m2
ALAPTERÜLET2
SZOBASZÁMnincs megadva
ÉPÍTÉSnincs megadva
FŰTÉS- CSOK igénybe vehető nem
- Tetőtér beépíthető nem
- Építés éve 1995
- Klíma nem
- Szigetelt nem
A+++
A++
A+
A
B
C
D
E
F
G
H
I
Az ingatlan leírása
Árcsökkenés! Egyedi lehetőség! Kiváló ár-érték arányban !
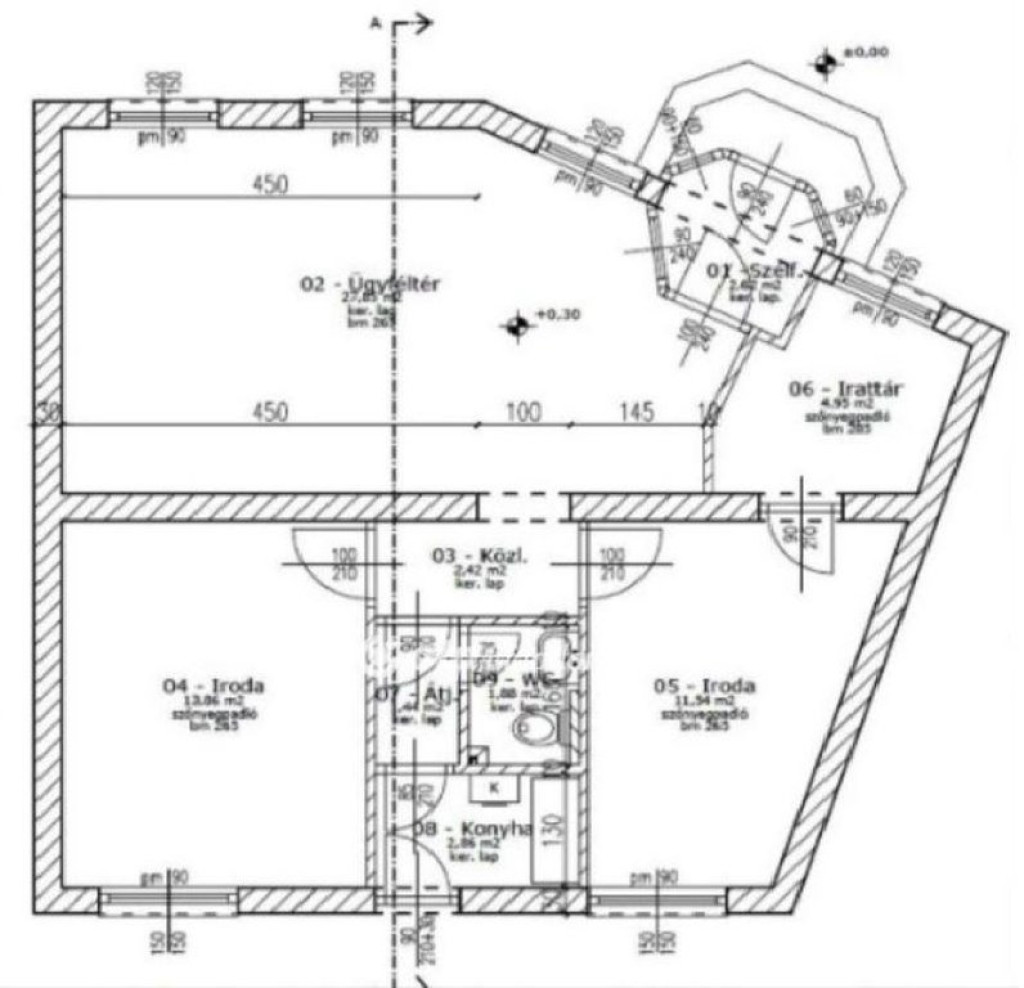
Nagyszerű, hosszútávú befektetési lehetőség! Tiszafüred Belvárosában eladó egy 69 m2-es, 2014-ben felújított, klímás ingatlan, mely jelenleg IRODAHÁZként funkcionál. A fogadótér mellett még 2 külön bejáratú irodahelyiség, raktár/öltöző, kis konyha és fürdőszoba, valamint egy saját, 26m2-es belső kert is tartozik! Az ingatlanban jelenleg is jól prosperáló vállalkozás működik, megbízható bérlővel. Tulajdonosváltás esetén a bérleti jogviszony megállapodás szerint tovább vihető. Az irodai tevékenységen kívül más kereskedelmi/szolgáltató tevékenységre is remek választás lehet. Igény szerint a CSALÁDI HÁZzá történő átminősítésre is van lehetőség, némi átalakítással.
Kiváló lokációval rendelkezik, mind ellátottság( vásárlási lehetőségek, szupermarketek, pékség, kávézók, posta, szakorvosi rendelő, bölcsi, ovi, általános és középiskolák, Városháza...), mind közlekedés szempontjából ( távolsági busz, vonat, 33-as, 34-es főút néhány percre, az M3-as autópálya 30 km-re), valamint turisztikai lokációként is nagyszerű!
Tiszafüred a tisza-tavi környezet idegenforgalmi és térségi központja egyben, kiváló turisztikai célpont - Tisza-tavi Ökocentrum, termál- ás szabadstrand, kerékpárút kerékpáros centrummal, kitűnő szállás- és vendéglátóhelyek.
Ügyfeleink számára teljes körű ügyintézéssel áll rendelkezésre az OTP Bankcsoport. Az OTP Ingatlanpont kínálatából választott ingatlan finanszírozásához kedvezményes hitelmegoldásokat kínálunk, illetve az adásvételi szerződés megkötéséhez megbízható ügyvédi közreműködést is tudunk biztosítani!
Ha hirdetésünk felkeltette érdeklődését, kérem hívjon bizalommal a hét bármely napján!
Nagyszerű, hosszútávú befektetési lehetőség! Tiszafüred Belvárosában eladó egy 69 m2-es, 2014-ben felújított, klímás ingatlan, mely jelenleg IRODAHÁZként funkcionál. A fogadótér mellett még 2 külön bejáratú irodahelyiség, raktár/öltöző, kis konyha és fürdőszoba, valamint egy saját, 26m2-es belső kert is tartozik! Az ingatlanban jelenleg is jól prosperáló vállalkozás működik, megbízható bérlővel. Tulajdonosváltás esetén a bérleti jogviszony megállapodás szerint tovább vihető. Az irodai tevékenységen kívül más kereskedelmi/szolgáltató tevékenységre is remek választás lehet. Igény szerint a CSALÁDI HÁZzá történő átminősítésre is van lehetőség, némi átalakítással.
Kiváló lokációval rendelkezik, mind ellátottság( vásárlási lehetőségek, szupermarketek, pékség, kávézók, posta, szakorvosi rendelő, bölcsi, ovi, általános és középiskolák, Városháza...), mind közlekedés szempontjából ( távolsági busz, vonat, 33-as, 34-es főút néhány percre, az M3-as autópálya 30 km-re), valamint turisztikai lokációként is nagyszerű!
Tiszafüred a tisza-tavi környezet idegenforgalmi és térségi központja egyben, kiváló turisztikai célpont - Tisza-tavi Ökocentrum, termál- ás szabadstrand, kerékpárút kerékpáros centrummal, kitűnő szállás- és vendéglátóhelyek.
Ügyfeleink számára teljes körű ügyintézéssel áll rendelkezésre az OTP Bankcsoport. Az OTP Ingatlanpont kínálatából választott ingatlan finanszírozásához kedvezményes hitelmegoldásokat kínálunk, illetve az adásvételi szerződés megkötéséhez megbízható ügyvédi közreműködést is tudunk biztosítani!
Ha hirdetésünk felkeltette érdeklődését, kérem hívjon bizalommal a hét bármely napján!