Eladó Kereskedelmi és ipari ingatlan
Hirdetéskód: 9112244
Gamma Ingatlan Kft.
Felújításhoz személyi kölcsönt keres? Kalkuláljon itt! →511.00 m2
ALAPTERÜLET0
SZOBASZÁMnincs megadva
ÉPÍTÉSnincs megadva
FŰTÉS- CSOK igénybe vehető nem
- Tetőtér beépíthető nem
- Klíma nem
- Szigetelt nem
A+++
A++
A+
A
B
C
D
E
F
G
H
I
Az ingatlan leírása
Szikszón eladó egy újszerű,szigetelt acélvázas szerkezetű 511nm-es csarnok, 4500nm-es telken!
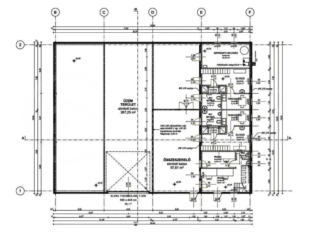
Helyiséglista:
- Iroda: 29 m2
- Kiállítóterem: 81 m2
- Női-Férfi öltöző,
- Teakonyha,
- 2 mosdó,
- 2 zuhanyzó.
Műszaki leírás:
Az acélvázas csarnok, műanyagbevonatos horganyzott acél trapézlemez tetőfedést kapott. Szigetelése - 12 cm vastagságú - NOBASIL tipusú kőzetgyapot. A csarnokrész burkolata színes, műanyag bevonatos, horganyzott acél trapézlemez (LTP20). A műanyag nyílászárók 2 régetű üvegezésűek, hőszigeteltek. Az ipari padló vasalt aljzatbeton(C25-24/KK). A fűtésről Beretta típusú kazán gondoskodik, puffertartállyal ellátva, radiátor hőleadókon keresztül. Áramellátottság 3x63A és 15kW-os napelemrendszerrel.
A felépítmény szekcionált ipari kapuval (500x448)és személyzeti bejáróval ellátott.
A telephely körbekerített, betonozott parkolóval kialakítva.
Közlekedés/környezet:
Szikszó belterületi részén, aszfaltozott úton könnyen megközelíthető.
A csarnok elhelyezkedése és kialakítása miatt akár műhely,- üzem,- raktár vagy telephelyként is funkcionálhat.
Megtekintéssel kapcsolatban keressen bizalommal.
Helyiséglista:
- Iroda: 29 m2
- Kiállítóterem: 81 m2
- Női-Férfi öltöző,
- Teakonyha,
- 2 mosdó,
- 2 zuhanyzó.
Műszaki leírás:
Az acélvázas csarnok, műanyagbevonatos horganyzott acél trapézlemez tetőfedést kapott. Szigetelése - 12 cm vastagságú - NOBASIL tipusú kőzetgyapot. A csarnokrész burkolata színes, műanyag bevonatos, horganyzott acél trapézlemez (LTP20). A műanyag nyílászárók 2 régetű üvegezésűek, hőszigeteltek. Az ipari padló vasalt aljzatbeton(C25-24/KK). A fűtésről Beretta típusú kazán gondoskodik, puffertartállyal ellátva, radiátor hőleadókon keresztül. Áramellátottság 3x63A és 15kW-os napelemrendszerrel.
A felépítmény szekcionált ipari kapuval (500x448)és személyzeti bejáróval ellátott.
A telephely körbekerített, betonozott parkolóval kialakítva.
Közlekedés/környezet:
Szikszó belterületi részén, aszfaltozott úton könnyen megközelíthető.
A csarnok elhelyezkedése és kialakítása miatt akár műhely,- üzem,- raktár vagy telephelyként is funkcionálhat.
Megtekintéssel kapcsolatban keressen bizalommal.