Eladó Kereskedelmi és ipari ingatlan
Hirdetéskód: 9198134
Szigetszentmiklós Tököli út 19.B - OTP Ingatlanpont Iroda
Felújításhoz személyi kölcsönt keres? Kalkuláljon itt! →191.00 m2
ALAPTERÜLET0
SZOBASZÁMnincs megadva
ÉPÍTÉSEgyéb fűtés
FŰTÉS- CSOK igénybe vehető nem
- Tetőtér beépíthető nem
- Építés éve 2024
- Fűtés Egyéb fűtés
- Klíma nem
- Szigetelt nem
A+++
A++
A+
A
B
C
D
E
F
G
H
I
Az ingatlan leírása
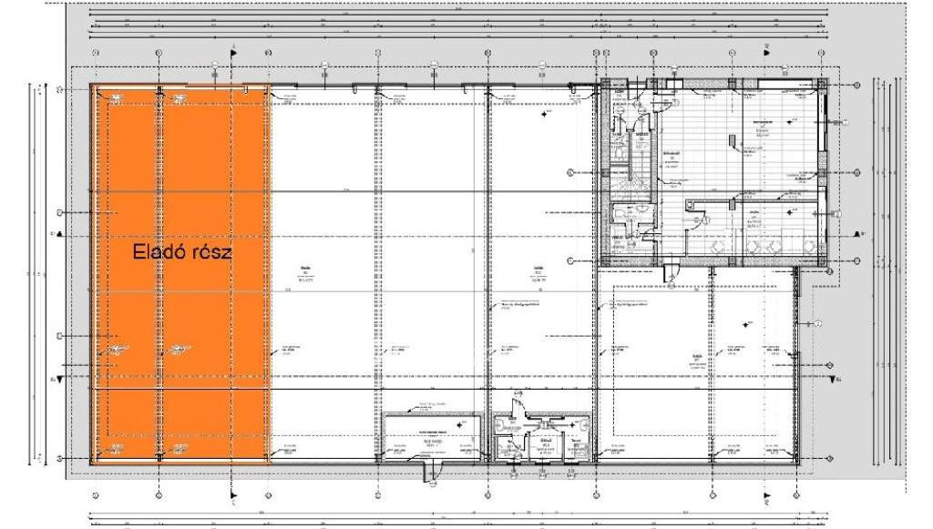
***IPARI INGATLAN ELADÓ SZIGETSZENTMIKLÓSON! RAKTÁRNAK/CSARNOKNAK TÖKÉLETES!***KAVOSZ HITEL FELVEHETŐ!***
Pest megyében, Szigetszentmiklóson, autópálya közeli elhelyezkedéssel eladó egy 2024-ben épült, modern ipari ingatlan, amely kiválóan alkalmas raktározásra, csarnoknak vagy műhelynek is.
Az épület 10 cm vastag szendvicspanelből készült, így energiahatékony és korszerű szerkezetű.
A 6 méteres belmagasság lehetővé teszi galéria kialakítását, amellyel akár további ~100 négyzetméter hasznos terület nyerhető.
Az ingatlan albetétesítve van, ezért hitelképes, és jogilag rendezett, önálló helyrajzi számmal rendelkezik.
Az ingatlanhoz 2 gépkocsibeálló is tartozik zárt telephelyen.
Mivel ez az utolsó egység az ingatlanban, így az épület mögött kb 400 négyzetméteres telekrész is hasznosítható megállapodás alapján földhasználati díj ellenében.
Ideális választás vállalkozásoknak, akik új telephelyet, raktárt vagy gyártócsarnokot keresnek Szigetszentmiklós frekventált, mégis jól megközelíthető részén.
A kínálatunkból választott ingatlan finanszírozásához kedvezményes hitel- és lízingkonstrukciókat kínálunk. Az adásvételi szerződés megkötéséhez igény szerint megbízható ügyvédi közreműködést biztosítunk, és segítséget nyújtunk az adásvételhez kapcsolódó ügyek intézéséhez. Amennyiben felkeltettem érdeklődését, keressen bizalommal, akár hétvégén is.
Referenciaszám: M316299
Pest megyében, Szigetszentmiklóson, autópálya közeli elhelyezkedéssel eladó egy 2024-ben épült, modern ipari ingatlan, amely kiválóan alkalmas raktározásra, csarnoknak vagy műhelynek is.
Az épület 10 cm vastag szendvicspanelből készült, így energiahatékony és korszerű szerkezetű.
A 6 méteres belmagasság lehetővé teszi galéria kialakítását, amellyel akár további ~100 négyzetméter hasznos terület nyerhető.
Az ingatlan albetétesítve van, ezért hitelképes, és jogilag rendezett, önálló helyrajzi számmal rendelkezik.
Az ingatlanhoz 2 gépkocsibeálló is tartozik zárt telephelyen.
Mivel ez az utolsó egység az ingatlanban, így az épület mögött kb 400 négyzetméteres telekrész is hasznosítható megállapodás alapján földhasználati díj ellenében.
Ideális választás vállalkozásoknak, akik új telephelyet, raktárt vagy gyártócsarnokot keresnek Szigetszentmiklós frekventált, mégis jól megközelíthető részén.
A kínálatunkból választott ingatlan finanszírozásához kedvezményes hitel- és lízingkonstrukciókat kínálunk. Az adásvételi szerződés megkötéséhez igény szerint megbízható ügyvédi közreműködést biztosítunk, és segítséget nyújtunk az adásvételhez kapcsolódó ügyek intézéséhez. Amennyiben felkeltettem érdeklődését, keressen bizalommal, akár hétvégén is.
Referenciaszám: M316299