Eladó Kereskedelmi és ipari ingatlan
Hirdetéskód: 9306260
OTP Ingatlanpont - Takács Zsuzsanna
Felújításhoz személyi kölcsönt keres? Kalkuláljon itt! →191.00 m2
ALAPTERÜLET0
SZOBASZÁMnincs megadva
ÉPÍTÉSEgyéb fűtés
FŰTÉS- CSOK igénybe vehető nem
- Tetőtér beépíthető nem
- Építés éve 2024
- Fűtés Egyéb fűtés
- Klíma nem
- Szigetelt nem
A+++
A++
A+
A
B
C
D
E
F
G
H
I
Az ingatlan leírása
***IPARI INGATLAN ELADÓ SZIGETSZENTMIKLÓSON! RAKTÁRNAK/CSARNOKNAK TÖKÉLETES!***KAVOSZ HITEL FELVEHETŐ!***
Pest megyében, Szigetszentmiklóson, autópálya közeli elhelyezkedéssel eladó egy 2024-ben épült, modern ipari ingatlan, amely kiválóan alkalmas raktározásra, csarnoknak vagy műhelynek is.
Az épület 10 cm vastag szendvicspanelből készült, így energia hatékony és korszerű szerkezetű.
A 6 méteres belmagasság lehetővé teszi galéria kialakítását, amellyel akár további ~100 négyzetméter hasznos terület nyerhető.
Az ingatlan albetétesítve van, ezért hitelképes, és jogilag rendezett, önálló helyrajzi számmal rendelkezik.
Az ingatlanhoz 2 gépkocsibeálló is tartozik zárt telephelyen.
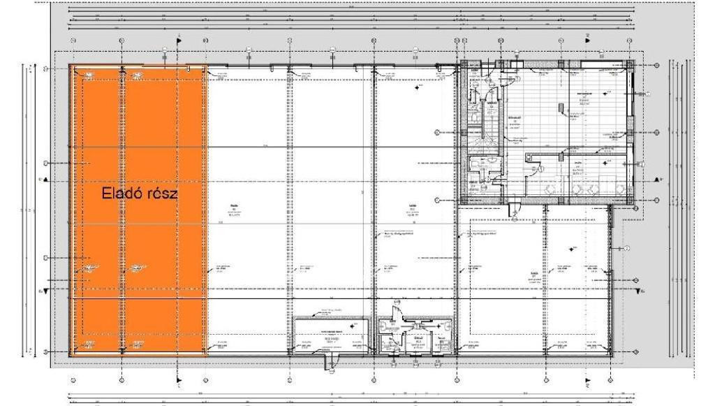
Mivel ez az utolsó egység az ingatlanban, így az épület mögött kb 400 négyzetméteres telekrész is hasznosítható megállapodás alapján földhasználati díj ellenében.
Ideális választás vállalkozásoknak, akik új telephelyet, raktárt vagy gyártócsarnokot keresnek Szigetszentmiklós frekventált, mégis jól megközelíthető részén.
AZ ÁR NETTÓ+27% AZ ÁFA fizetendő.
Referenciaszám: M316299
Az OTP Ingatlanpont, mint egyetlen közvetlen banki hátterű ingatlanközvetítő társaság teljes körű ügyintézéssel áll az eladók és a vevők rendelkezésére! A kínálatunkból választott ingatlan finanszírozásához minősített fogyasztóbarát, piaci és kedvezményes hitel- és lízingkonstrukciókat kínálunk (lakásvásárlási hitel, CSOK plusz, szabad felhasználású hitel, babaváró hitel, céges hitelek, pályázatok, amennyiben az ügyfél és az ingatlan megfelel a feltételeknek). Az adásvételi szerződés megkötéséhez igény szerint megbízható ügyvédi közreműködést biztosítunk, és segítséget nyújtunk az adásvételhez kapcsolódó egyéb ügyek intézéséhez.
Ha az új ingatlana megvásárlásához a jelenlegi ingatlanát el kell adnia, abban is szívesen segítünk.
Pest megyében, Szigetszentmiklóson, autópálya közeli elhelyezkedéssel eladó egy 2024-ben épült, modern ipari ingatlan, amely kiválóan alkalmas raktározásra, csarnoknak vagy műhelynek is.
Az épület 10 cm vastag szendvicspanelből készült, így energia hatékony és korszerű szerkezetű.
A 6 méteres belmagasság lehetővé teszi galéria kialakítását, amellyel akár további ~100 négyzetméter hasznos terület nyerhető.
Az ingatlan albetétesítve van, ezért hitelképes, és jogilag rendezett, önálló helyrajzi számmal rendelkezik.
Az ingatlanhoz 2 gépkocsibeálló is tartozik zárt telephelyen.
Mivel ez az utolsó egység az ingatlanban, így az épület mögött kb 400 négyzetméteres telekrész is hasznosítható megállapodás alapján földhasználati díj ellenében.
Ideális választás vállalkozásoknak, akik új telephelyet, raktárt vagy gyártócsarnokot keresnek Szigetszentmiklós frekventált, mégis jól megközelíthető részén.
AZ ÁR NETTÓ+27% AZ ÁFA fizetendő.
Referenciaszám: M316299
Az OTP Ingatlanpont, mint egyetlen közvetlen banki hátterű ingatlanközvetítő társaság teljes körű ügyintézéssel áll az eladók és a vevők rendelkezésére! A kínálatunkból választott ingatlan finanszírozásához minősített fogyasztóbarát, piaci és kedvezményes hitel- és lízingkonstrukciókat kínálunk (lakásvásárlási hitel, CSOK plusz, szabad felhasználású hitel, babaváró hitel, céges hitelek, pályázatok, amennyiben az ügyfél és az ingatlan megfelel a feltételeknek). Az adásvételi szerződés megkötéséhez igény szerint megbízható ügyvédi közreműködést biztosítunk, és segítséget nyújtunk az adásvételhez kapcsolódó egyéb ügyek intézéséhez.
Ha az új ingatlana megvásárlásához a jelenlegi ingatlanát el kell adnia, abban is szívesen segítünk.