Eladó Kereskedelmi és ipari ingatlan
Hirdetéskód: 9298985
Székesfehérvár Palotai út 8 - OTP Ingatlanpont Iroda
Felújításhoz személyi kölcsönt keres? Kalkuláljon itt! →604.00 m2
ALAPTERÜLET0
SZOBASZÁMnincs megadva
ÉPÍTÉSGáz (cirkó)
FŰTÉS- CSOK igénybe vehető nem
- Tetőtér beépíthető nem
- Építés éve 1996
- Fűtés Gáz (cirkó)
- Klíma nem
- Szigetelt nem
A+++
A++
A+
A
B
C
D
E
F
G
H
I
Az ingatlan leírása
Prémium befektetési lehetőség Székesfehérvár történelmi belvárosában! Hotel vagy társasház fejlesztésre!
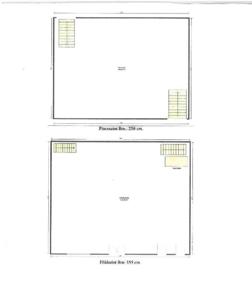
Eladó Székesfehérvár történelmi belvárosának az egyik legfrekventáltabb pontján, a sétálóutcában elhelyezkedő és az Országalma közvetlen közelében lévő , több helyrajzi számból álló, összesen 670 m2 összterületű, mintegy 604 m? hasznos alapterületű, négyszintes , szerkezetkész állapotú ingatlan. Az ingatlan vasbeton szerzkezetű, tégla falazatú, cserép fedésű.
Az épület 1996-ban épült, jelenleg felújítandó állapotú, 3,25 m belmagasságú, összközműves ingatlan, amely kiváló lehetőséget kínál értéknövelő fejlesztésre. Elhelyezkedése és mérete miatt különösen alkalmas Hotel, Apartman vagy több lakásos társasház befektetési projekt kialakítására.
Befektetés! Kiemelkedő lehetőség!
Az ingatlan elhelyezkedése miatt turisztikai célú hasznosításra különösen értékes. A belvárosi környezet, a történelmi látnivalók és a sétálóövezet közelsége ideálissá teszi boutique hotel, apartmanház vagy prémium lakások kialakítására.
A projekt megfelelő átalakítással jelentős értéknövekedési potenciált hordoz.
További információért és megtekintésért kérem vegye fel velem a kapcsolatot.
Az OTP Ingatlanpont teljeskörű ügyintézéssel áll az eladók és a vevők rendelkezésére!
A kínálatunkból választott ingatlan finanszírozásához kedvezményes hitel- és pénzügyi konstrukciókat kínálunk. Az adásvételi szerződés megkötéséhez igény szerint megbízható ügyvédi közreműködést és a kapcsolódó ügyek intézéséhez segítséget nyújtunk.
Hirdetésben szereplő látványtervre vonatkozó kép Mesterséges Intelligencia segítségével lett létrehozva.
Eladó Székesfehérvár történelmi belvárosának az egyik legfrekventáltabb pontján, a sétálóutcában elhelyezkedő és az Országalma közvetlen közelében lévő , több helyrajzi számból álló, összesen 670 m2 összterületű, mintegy 604 m? hasznos alapterületű, négyszintes , szerkezetkész állapotú ingatlan. Az ingatlan vasbeton szerzkezetű, tégla falazatú, cserép fedésű.
Az épület 1996-ban épült, jelenleg felújítandó állapotú, 3,25 m belmagasságú, összközműves ingatlan, amely kiváló lehetőséget kínál értéknövelő fejlesztésre. Elhelyezkedése és mérete miatt különösen alkalmas Hotel, Apartman vagy több lakásos társasház befektetési projekt kialakítására.
Befektetés! Kiemelkedő lehetőség!
Az ingatlan elhelyezkedése miatt turisztikai célú hasznosításra különösen értékes. A belvárosi környezet, a történelmi látnivalók és a sétálóövezet közelsége ideálissá teszi boutique hotel, apartmanház vagy prémium lakások kialakítására.
A projekt megfelelő átalakítással jelentős értéknövekedési potenciált hordoz.
További információért és megtekintésért kérem vegye fel velem a kapcsolatot.
Az OTP Ingatlanpont teljeskörű ügyintézéssel áll az eladók és a vevők rendelkezésére!
A kínálatunkból választott ingatlan finanszírozásához kedvezményes hitel- és pénzügyi konstrukciókat kínálunk. Az adásvételi szerződés megkötéséhez igény szerint megbízható ügyvédi közreműködést és a kapcsolódó ügyek intézéséhez segítséget nyújtunk.
Hirdetésben szereplő látványtervre vonatkozó kép Mesterséges Intelligencia segítségével lett létrehozva.