Eladó Kereskedelmi és ipari ingatlan
Hirdetéskód: 9256241
Ingatlan Cafe Kft
Felújításhoz személyi kölcsönt keres? Kalkuláljon itt! →124.00 m2
ALAPTERÜLET0
SZOBASZÁMnincs megadva
ÉPÍTÉSnincs megadva
FŰTÉS- CSOK igénybe vehető nem
- Tetőtér beépíthető nem
- Klíma nem
- Szigetelt nem
A+++
A++
A+
A
B
C
D
E
F
G
H
I
Az ingatlan leírása
Iroda eladó Szeged, Szent István téren, gyönyörű kilátással az iparművészeti műemlék víztoronyra és az azt körül vevő parkosított térre, ikonikus épületben.
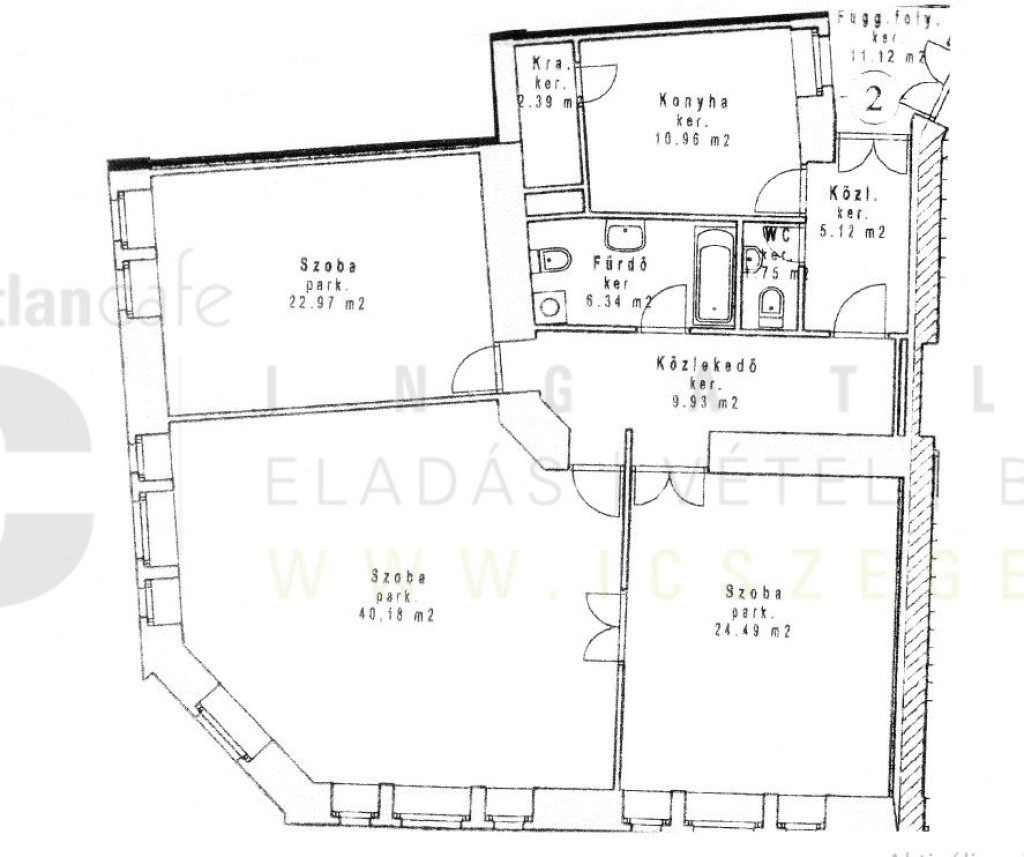
A műemléki védettség alatt álló, igényesen felújított Móricz-ház magasföldszintjén helyezkedik el a 124 m2-es tágas ingatlan. Előszoba, közlekedő, 3 tágas és 1 normál méretű szoba, teakonyha, zuhanyzó, valamint külön WC alkotja. Biztonságát riasztórendszer felügyeli.
A kellemes hőérzetről gáz-cirkó fűtés, radiátor hőleadókkal, míg nyáron 4 db klíma gondoskodik.
Tájolása délnyugat-északnyugat, melytől egész nap világos, napfényes.
Besorolása társasházi lakás, de jelenleg irodaként van hasznosítva, mely könnyedén visszaállítható lakásra.
Igény szerint szimpla, vagy dupla garázs is vásárolható hozzá.
Itt aztán karnyújtásnyira van minden lehetőség, melyet egy nyüzsgő egyetemi város belvárosa nyújthat! Városháza, Kormányhivatal, bevásárlóhelyek, éttermek, hivatali ügyintézések.
Az ingatlan tehermentes, a költözés rövid időn belül megoldható.
Ügyfeleimnek térítésmentes konzultáció lehetőséget biztosítok hitelszakértővel, CSOK és hitel ügyben.
A műemléki védettség alatt álló, igényesen felújított Móricz-ház magasföldszintjén helyezkedik el a 124 m2-es tágas ingatlan. Előszoba, közlekedő, 3 tágas és 1 normál méretű szoba, teakonyha, zuhanyzó, valamint külön WC alkotja. Biztonságát riasztórendszer felügyeli.
A kellemes hőérzetről gáz-cirkó fűtés, radiátor hőleadókkal, míg nyáron 4 db klíma gondoskodik.
Tájolása délnyugat-északnyugat, melytől egész nap világos, napfényes.
Besorolása társasházi lakás, de jelenleg irodaként van hasznosítva, mely könnyedén visszaállítható lakásra.
Igény szerint szimpla, vagy dupla garázs is vásárolható hozzá.
Itt aztán karnyújtásnyira van minden lehetőség, melyet egy nyüzsgő egyetemi város belvárosa nyújthat! Városháza, Kormányhivatal, bevásárlóhelyek, éttermek, hivatali ügyintézések.
Az ingatlan tehermentes, a költözés rövid időn belül megoldható.
Ügyfeleimnek térítésmentes konzultáció lehetőséget biztosítok hitelszakértővel, CSOK és hitel ügyben.