Eladó Kereskedelmi és ipari ingatlan
Hirdetéskód: 9289302

Ingatlan Cafe Kft

Felújításhoz személyi kölcsönt keres? Kalkuláljon itt! →
103.00 m2
ALAPTERÜLET
0
SZOBASZÁM
nincs megadva
ÉPÍTÉS
nincs megadva
FŰTÉS
  • CSOK igénybe vehető nem
  • Tetőtér beépíthető nem
  • Klíma nem
  • Szigetelt nem
Energetikai besorolás: Nincs meghatározva
A+++
A++
A+
A
B
C
D
E
F
G
H
I

Az MBH Bank személyi kölcsön ajánlata

Fizetett hirdetés
1 millió Ft
6 évre
20 585 Ft/hó
THM: 14.5%
Részletek →
2 millió Ft
6 évre
41 169 Ft/hó
THM: 14.5%
Részletek →
3 millió Ft
6 évre
61 754 Ft/hó
THM: 14.5%
Részletek →

A tájékoztatás nem teljes körű és nem minősül ajánlattételnek.

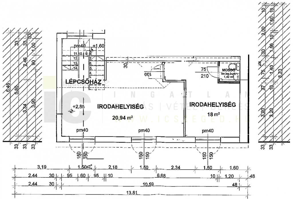
Az ingatlan leírása



Szeged Belvárosában, a Földváry utcában eladó egy kétszintes, összesen 103 m2 alapterületű önálló irodaház/üzletház! A földszinten az utcáról nyíló kétszárnyas bejárati ajtóból az optimálisan pl. recepciónak kiszolgáló térnek helyet adó 19,11 m2-es fogadótérbe léphetünk be. A helyiség jobb oldali irányba elhaladva a hatalmas előtérből egy saját vizesblokkal rendelkező helyiségbe léphetünk be, amely 22,3 m2-es területnagyságú és saját utcára néző ablakkal rendelkezik. Ennek az irodának a vizesblokkja tartalmaz kézmosó előteret (1,58 m2) és tusolót, valamint WC-t és bidét magában foglaló elválasztott teret (3,68 m2). Az emeleti szintre fogadóból a balra fordulva a 8,5 m2-es közlekedőn (teakonyhán) keresztül juthatunk fel, amely szintén utcára néző ablakkal ellátott. Az emeletre vezető lépcső mellett rendelkezésre áll szociális blokk, amely különválasztott térben WC-nek (1,03 m2) és kézmosónak ad helyet (1,03 m2). A lépcsőről felérve az emeletre először egy nagyobb méretű helységbe (20,94 m2) lép be a közlekedő személy, ahol két utcára néző ablak található. Itt továbbá igény szerint a vízvételi lehetőség kialakításának feltételei adottak. A nagyobb méretű irodából a belépést követően bal oldali irányba haladva egy másik kisebb méretű helyiségbe (18 m2) juthat el a komplexumban közlekedő, amelynek szintén saját utcára néző ablaka és elkülönített szociális helysége van (WC-vel és mosdóval) (1,42 m2).

Az irodaház/üzletház klimatizált, jól szeparálható terekkel, hőszigetelt üvegezésű műanyag homlokzati nyílászárókkal, szalagfüggöny árnyékolókkal rendelkezik. Az épületben megtalálható burkolattípusok: mázas kerámialap, szőnyegpadló. Belső felületképzések esetén: vakolt, diszperziós festékkel festett falak, a vizes helyiségek részben csempézettek. Van saját parkolója. Fűtésrendszere: kombi kazán (cirkó gázfűtés) lemezradiátor hő leadókkal. A létesítmény fenntartása relatíve alacsony rezsiköltséggel oldható meg. Az épület teljesen felújított. Az internetelérés megoldott és az épület riasztórendszerrel, belső informatikai hálózattal, kaputelefonnal rendelkezik. Elhelyezkedése kedvező: Szeged Belvárosában a Dugonics tértől pár méterre a Széchenyi tértől, azaz a központtól 650 m-re. Városközponttól, egyetemektől, közigazgatási intézményektől pár percre. Könnyű megközelíthetőség, kiváló tömegközlekedés (busz, villamos, troli), ezek megállói 250 m-en belül vannak. Éttermek, szállodák, kávézók boltok (ALDI) szintén 250 m-es sugarú körön belül találhatók. A megközelíthetőség kétsávos aszfalt burkolatú útról, kerékpárútról és járdán lehetséges. Közvetlen környezetében vegyes funkciójú társasházak, családi házak, kereskedelmi és szolgáltató egységek, oktatási intézmények, áruházak és szálláshelyek találhatók. A terület közművesítettsége teljes, mivel a városi vezetékes víz-, gáz- és elektromos energiaellátás mellett a zártrendszerű csapadékvíz- és szennyvízelvezető csatornahálózat is kiépítésre került. Az ingatlan területére a rendelkezésre álló közművek bevezetésre kerültek, az saját mérőórákkal felszerelt.

Az ingatlan paraméterei:
i. Földszint:
1. Irodahelyiség: 22,3 m2
2. Kézmosó: 1,58 m2
3. Tusoló WC: 3,68 m2

1. Recepció (fogadótér): 19,11 m2

1. Közlekedő (teakonyha) 8,5 m2
2. Kézmosó:1,04 m2
3. WC: 1,03 m2
4. Lépcső: 1,8 m2

ii. Emelet:
1. Lépcsőház: 3,6 m2
2. Irodahelyiség: 20,94 m2

1. Irodahelyiség: 18 m2
2. Kézmosó, WC 1,42 m2

iii. Földszint és emelet összesen: 103 m2

Vásárlási előnyök:

Különösen alkalmas lehet a szolgáltatóipar számára, informatikai vállalatnak, pénzügyi szolgáltatónak, ügyvédi-, pályázatírói-, tervező irodáknak, oktatócentrumnak, utazási szolgáltató irodának, nagyobb könyvelő irodának, többcélú rendelőnek, kamarának, tervező és egyéb irodai tevékenységhez.
Vállalkozásfejlesztési Európai Uniós pályázatok /DIMOP, GINOP / megvalósítási helyszíneként kiváló, a területi elhelyezkedése, valamint a magasan képzett egyetemi szakemberek jelenléte okán.
A vendéglátás, de akár a szépségipar a belváros atmoszféra előnyeit kihasználva üzleti célú vásárlás is kiváló lehetőség, hisz a Kárász utca a Dugonics tér és a Szegedi Tudományegyetem közelsége garancia a biztos vendégkörre.
Kiskereskedelem a lokáció okán biztosan megtérülő és prosperáló befektetés, mint például gépjárműalkatrész, tartós fogyasztási, műszaki cikkek, de akár nemzeti dohánybolti értékesítésre.

Csongrád-Csanád vármegye, Szeged város (megyeszékhely). Lakónépesség 151 ezer fő, lélekszám alapján a Magyarországi városok közül a harmadik helyet foglalja el. A BYD (Build Your Dreams) a világ egyik vezető kínai elektromosautó-gyártója 2026 második felében indítja a gyárát Szeged városában. a BYD gyár 20 perc alatt könnyen elérhető a város fő útvonalain keresztül az ingatlanból.
Az üzem a tervek szerint évi 300 000 elektromos (BEV) és plug-in hibrid (PHEV) autót állíthat elő, közvetlenül az európai piacra, mely által Szeged az Európai városok közt nagy befolyásra tehet szert. A város a Dél-Alföld régió kulturális és gazdasági központja. A város az 5-ös, 55-ös, 47-es, 43-as főutak mellett az M5-ös és M43-as autópályákról is megközelíthető, amelyek csomópontja a település közigazgatási, és az ipari-, és logisztikai központ területének ÉNy-i részén található. A város rendelkezik nyugati elkerülő úttal, melynek száma 502.

Napjainkban a város a hazai tudományos kutatások (főként természettudományi és mérnöki) és a felsőoktatás egyik központja. programozási időszakban létrehozásra került a szegedi lézerközpont: ELI-ALPS – Extreme Light Infrastructure Attosecond Light Purse Source nemzetközi kutatásokat szolgáló kutatási infrastruktúra, amelynek napjainkban is tervezettek infrastrukturális bővítései.
A Rheinmetall Advanced Technology Solutions Kft., 2025.-ben 29 MRD HUF-ból épült fel és nyitotta meg szegedi központját.
A város turisztikai potenciálját elsősorban az épített és természeti környezet, illetve a nemzetközi hírű rendezvényei alapozzák meg. A város „EUROPA NOSTRA” és „EURÓPA DÍJAT” kapott. Közvetlen környezetébe számos gyógy és wellness fürdő, valamint szálloda és turisztikai attrakció található.

A kereskedelem a regionális központ szerepköréhez mérten fejlett. A város infrastruktúrája jól kiépült.

Szeged határváros a Szerbiával szomszédos, mely további üzleti lehetőségeket biztosít a megvásárolt ingatlanhoz.

Térkép

A hirdető elérhetősége

Ingatlan Cafe Kft

Dr. Bucsuházyné Lovai Margit
+36 70 967