Eladó Kereskedelmi és ipari ingatlan
Hirdetéskód: 9312890
GDN Ingatlanhálózat - Belvárosi Ingatlaniroda
Felújításhoz személyi kölcsönt keres? Kalkuláljon itt! →228.00 m2
ALAPTERÜLET0
SZOBASZÁMnincs megadva
ÉPÍTÉSGeotermikus
FŰTÉS- CSOK igénybe vehető nem
- Tetőtér beépíthető nem
- Fűtés Geotermikus
- Klíma nem
- Szigetelt nem
A+++
A++
A+
A
B
C
D
E
F
G
H
I
Az ingatlan leírása
ELADÓ PANZIÓ A BELVÁROSHOZ KÖZEL
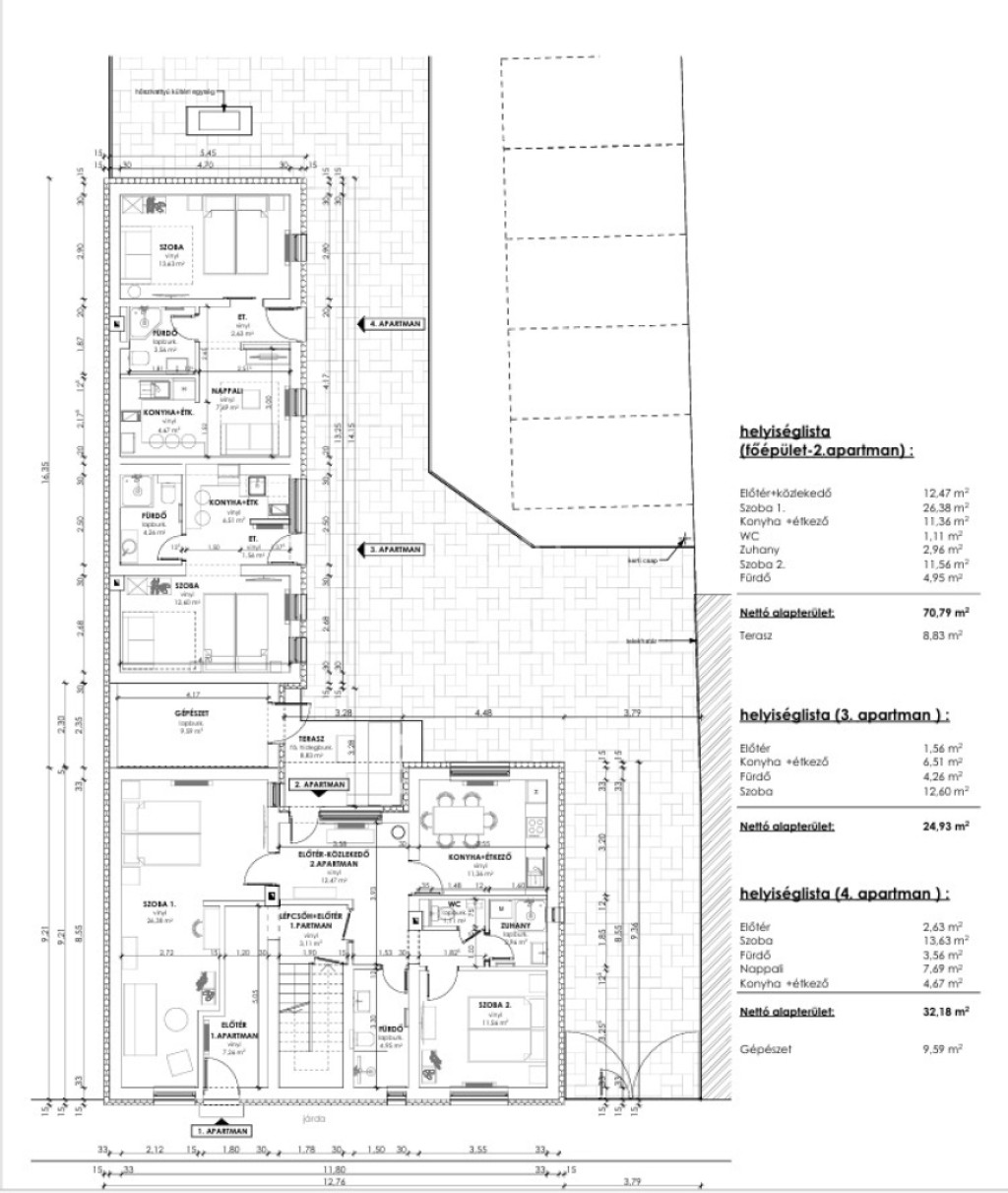
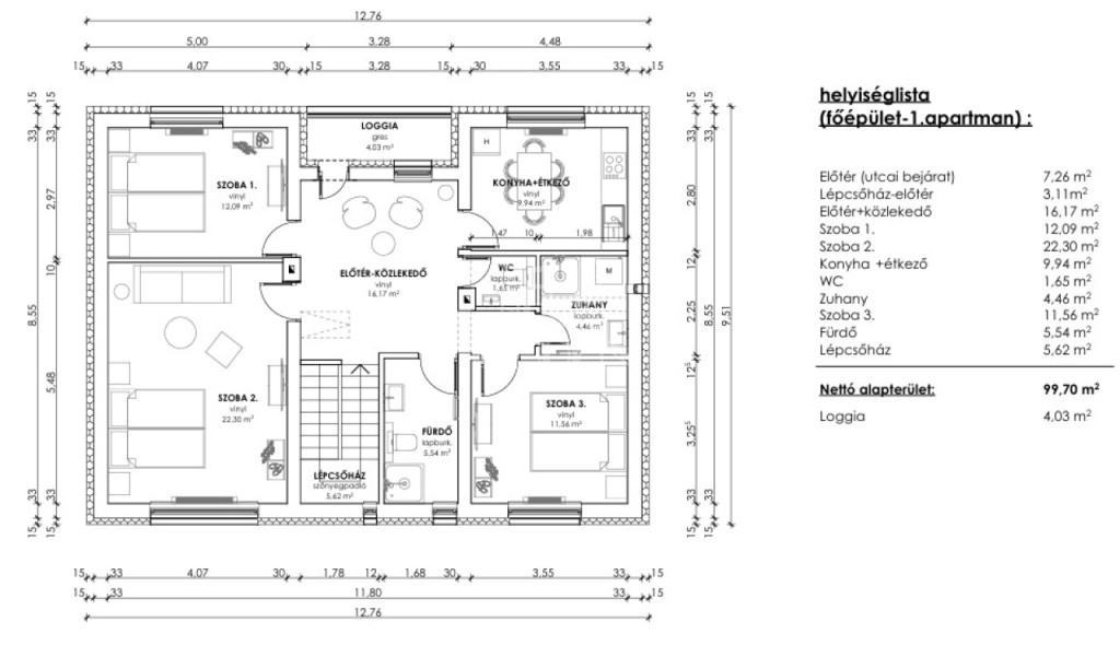
Az ingatlan egy 847 m²-es telken fekszik, a felépítmény hasznos alapterülete 227,6 m², kiegészülve egy 8 m²-es elkülönített gépészeti térrel. Az épület teljeskörű felújításon esett át 2024-ben: nyílászáró csere, homlokzati hőszigetelés, új tető, új teljeskörű villamoshálózat, új gépészet, teljesen új burkolatok és új berendezések.
Az épület rendelkezik napelemes rendszerrel. A fűtés, hűtésről hőszivattyú gondoskodik. A helyiségekben fan-coilok látják el ezt a feladatot. Az épületben található egy biztonsági gázkazán is a fűtés és a melegvíz ellátásra.
Szálláskapacitás 14 + 2 fő, összesen 4 db apartmanban.
Az egységek kialakítása lehetővé teszi a szezonalitástól független, rugalmas értékesítést (akár külön-külön, akár egyben a teljes házat):
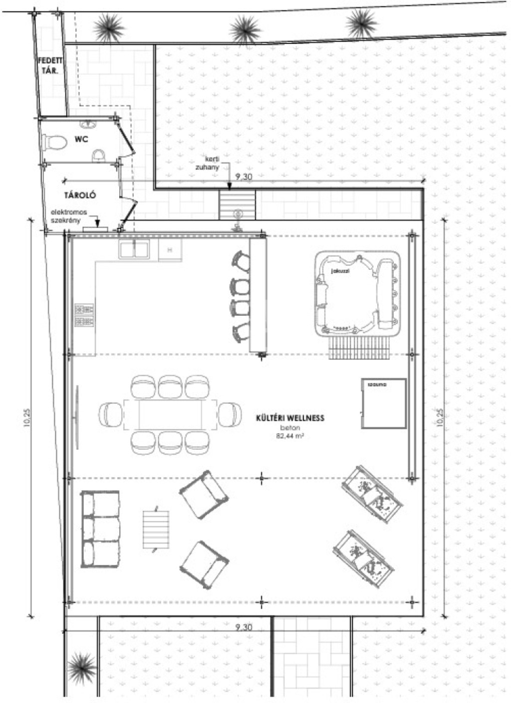
Kiegészítő szolgáltatás a wellness szekció: A kertben telepített infraszauna és jakuzzi biztosítja a magasabb kategóriájú árazás lehetőségét.
A parkolás 5 db udvari parkolóhelyen megoldott, és 2 darab elektromosautó-töltő is telepítésre került.
Az ingatlan jelenleg is teljes kihasználtsággal, magas "bookingos" pontszámmal működik, minden szükséges hatósági engedéllyel rendelkezik.
Az eladási ár a céggel és a teljes berendezéssel - felszereléssel együtt értendő.
TOVÁBBI RÉSZLETEKÉRT HÍVJON BIZALOMMAL! ...TOVÁBBI, TÖBBEZRES INGATLAN KÍNÁLAT: - GDN azonosító: 394379
Az ingatlan egy 847 m²-es telken fekszik, a felépítmény hasznos alapterülete 227,6 m², kiegészülve egy 8 m²-es elkülönített gépészeti térrel. Az épület teljeskörű felújításon esett át 2024-ben: nyílászáró csere, homlokzati hőszigetelés, új tető, új teljeskörű villamoshálózat, új gépészet, teljesen új burkolatok és új berendezések.
Az épület rendelkezik napelemes rendszerrel. A fűtés, hűtésről hőszivattyú gondoskodik. A helyiségekben fan-coilok látják el ezt a feladatot. Az épületben található egy biztonsági gázkazán is a fűtés és a melegvíz ellátásra.
Szálláskapacitás 14 + 2 fő, összesen 4 db apartmanban.
Az egységek kialakítása lehetővé teszi a szezonalitástól független, rugalmas értékesítést (akár külön-külön, akár egyben a teljes házat):
Kiegészítő szolgáltatás a wellness szekció: A kertben telepített infraszauna és jakuzzi biztosítja a magasabb kategóriájú árazás lehetőségét.
A parkolás 5 db udvari parkolóhelyen megoldott, és 2 darab elektromosautó-töltő is telepítésre került.
Az ingatlan jelenleg is teljes kihasználtsággal, magas "bookingos" pontszámmal működik, minden szükséges hatósági engedéllyel rendelkezik.
Az eladási ár a céggel és a teljes berendezéssel - felszereléssel együtt értendő.
TOVÁBBI RÉSZLETEKÉRT HÍVJON BIZALOMMAL! ...TOVÁBBI, TÖBBEZRES INGATLAN KÍNÁLAT: - GDN azonosító: 394379