Eladó Kereskedelmi és ipari ingatlan
Hirdetéskód: 9317346
Salgótarján Rákóczi út 1-9 - OTP Ingatlanpont Iroda
Felújításhoz személyi kölcsönt keres? Kalkuláljon itt! →618.00 m2
ALAPTERÜLET0
SZOBASZÁMnincs megadva
ÉPÍTÉSEgyéb fűtés
FŰTÉS- CSOK igénybe vehető nem
- Tetőtér beépíthető nem
- Építés éve 1994
- Fűtés Egyéb fűtés
- Klíma nem
- Szigetelt nem
A+++
A++
A+
A
B
C
D
E
F
G
H
I
Az ingatlan leírása
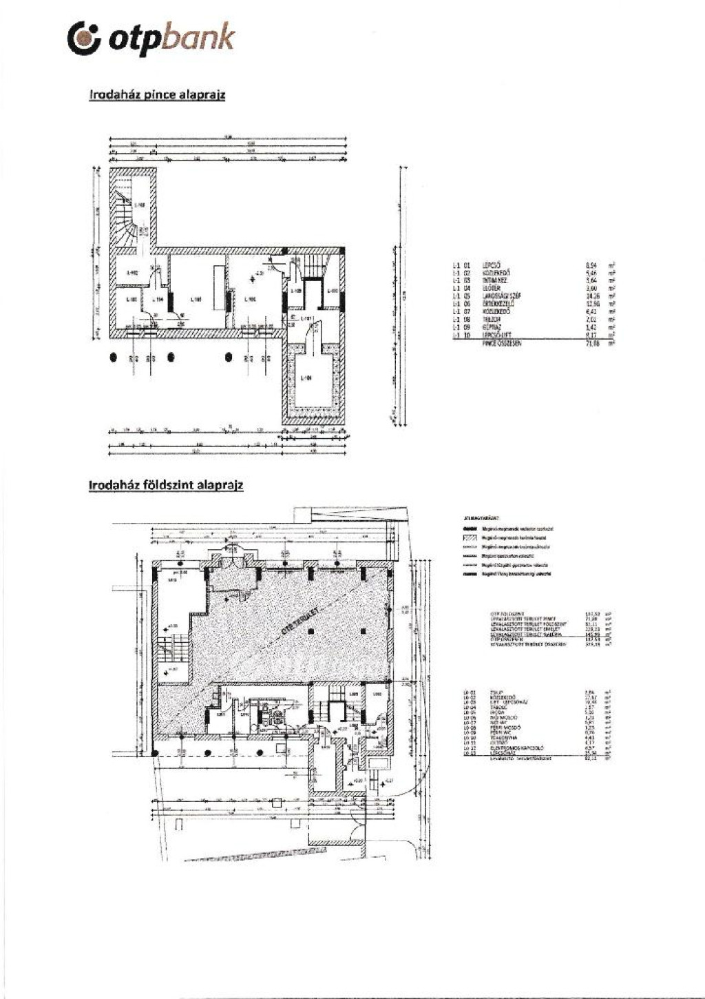
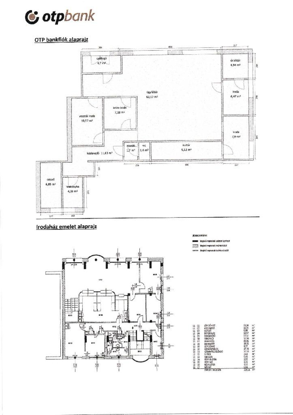
Az ingatlan Szécsény központjában a Rákóczi út és a Feszty Árpád utca találkozásában található a környezetében többnyire kereskedelmi és szolgáltató ingatlanok láthatóak. Az irodaház 410 m2 térmértékű, szabálytalan alakú, 2 közterület által határolt, sík területű, szabálytalan alakú telken helyezkedik el. Az épület az 1994-ben épült, melyben bankfiók üzemel(t), az épületben található helyiségek kialakítása is ennek megfelelően funkcionális pl. széf, zsilip, 24H. zóna, lakossági széf, valamint a bankfiókra kiterjedő biztonsági rendszerek.
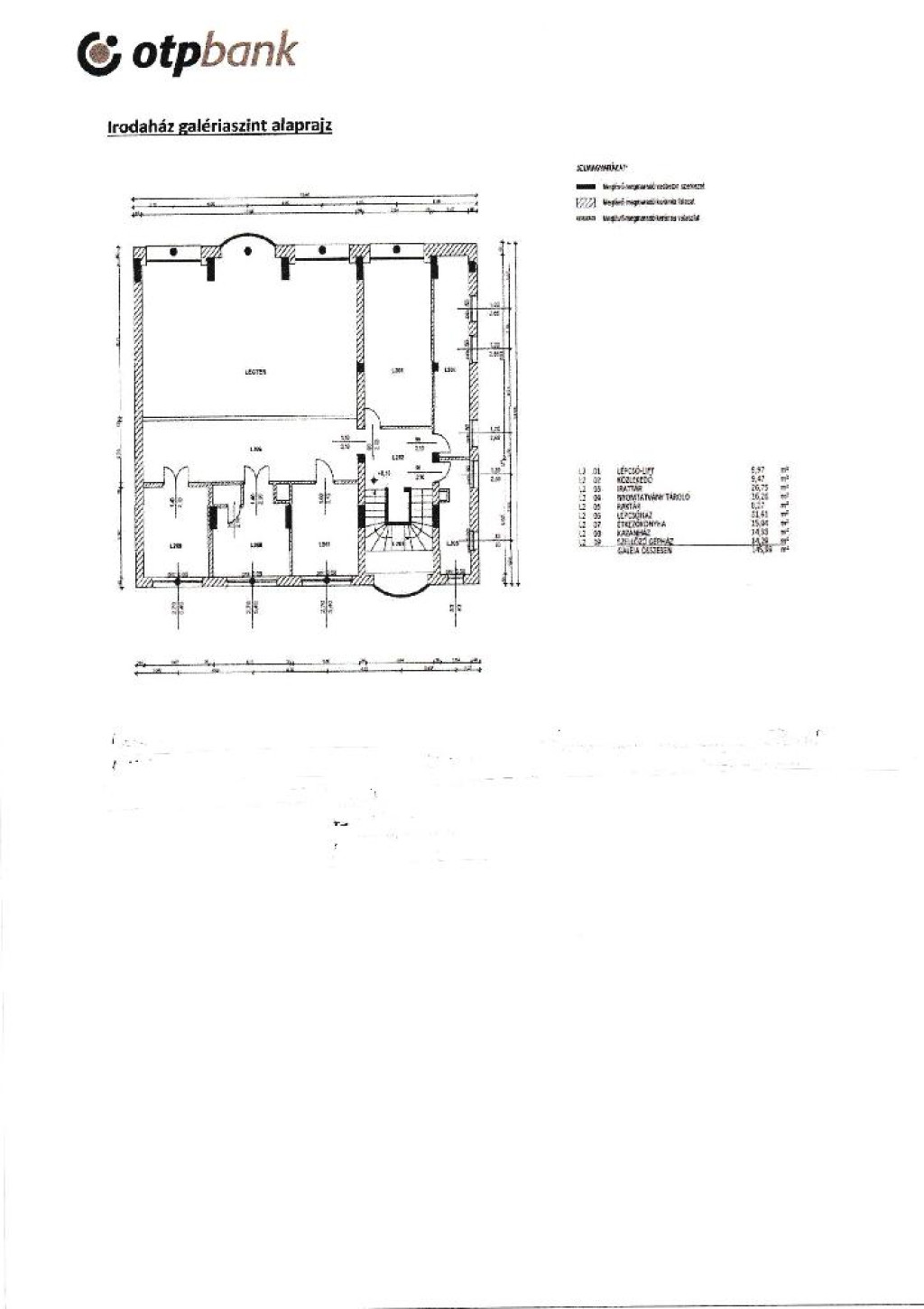
Az irodaházban 2017-ben két albetétet hoztak alakítottak ki, a földszinten, az épület középső részében, nagy utcai portállal rendelkező, Szécsény főutcájáról (Rákóczi út) megközelíthető bankfiókot, valamint a pince, emeleti és galériaszinteken és a földszint ?maradék? részén a Feszty Árpád utca felől elérhető, iroda funkciókkal rendelkező albetétet, melyben található helyiségek kialakítása funkcionális.
Az albetétek közös fűtési rendszeren vannak (fűtőberendezés a 1286/A/1 hrsz. albetétben található) valamint közös mérőórákkal rendelkeznek. Az épület elektromos kapcsolórendszere a 1286/A/2 hrsz. albetétben található. Központi fűtés, fűtőberendezés és HMV a 1286/A/1 hrsz.-on
található kombi cirkó gázkazánnal történik, hőleadás acéllemez radiátorokkal biztosított. A 1286/A/2 hrsz. galériaszintjén található, egykor az egész épület fűtését és melegvíz-ellátását biztosító kazánhelyiségből a gépészetet kiszerelték, valamint a rendszerről leválasztották.
Az ingatlanban magas biztonsági elvárások szerint telepített biztonsági rendszer található, a pinceszinten a falazaton több helyen vizesedés eredményeként salétromosodás figyelhető meg. A 1286/A/2 hrsz. albetét szemmel láthatóan évek óta használatlanul áll, szükséges minimális karbantartásokkal.
Az irodaházban 2017-ben két albetétet hoztak alakítottak ki, a földszinten, az épület középső részében, nagy utcai portállal rendelkező, Szécsény főutcájáról (Rákóczi út) megközelíthető bankfiókot, valamint a pince, emeleti és galériaszinteken és a földszint ?maradék? részén a Feszty Árpád utca felől elérhető, iroda funkciókkal rendelkező albetétet, melyben található helyiségek kialakítása funkcionális.
Az albetétek közös fűtési rendszeren vannak (fűtőberendezés a 1286/A/1 hrsz. albetétben található) valamint közös mérőórákkal rendelkeznek. Az épület elektromos kapcsolórendszere a 1286/A/2 hrsz. albetétben található. Központi fűtés, fűtőberendezés és HMV a 1286/A/1 hrsz.-on
található kombi cirkó gázkazánnal történik, hőleadás acéllemez radiátorokkal biztosított. A 1286/A/2 hrsz. galériaszintjén található, egykor az egész épület fűtését és melegvíz-ellátását biztosító kazánhelyiségből a gépészetet kiszerelték, valamint a rendszerről leválasztották.
Az ingatlanban magas biztonsági elvárások szerint telepített biztonsági rendszer található, a pinceszinten a falazaton több helyen vizesedés eredményeként salétromosodás figyelhető meg. A 1286/A/2 hrsz. albetét szemmel láthatóan évek óta használatlanul áll, szükséges minimális karbantartásokkal.