Eladó Kereskedelmi és ipari ingatlan
Hirdetéskód: 9313351

OTP Ingatlanpont - Takács Zsuzsanna

Felújításhoz személyi kölcsönt keres? Kalkuláljon itt! →
260.00 m2
ALAPTERÜLET
0
SZOBASZÁM
nincs megadva
ÉPÍTÉS
Gáz (cirkó)
FŰTÉS
  • CSOK igénybe vehető nem
  • Tetőtér beépíthető nem
  • Építés éve 2000
  • Fűtés Gáz (cirkó)
  • Klíma nem
  • Szigetelt nem
Energetikai besorolás: Nincs meghatározva
A+++
A++
A+
A
B
C
D
E
F
G
H
I

Az MBH Bank személyi kölcsön ajánlata

Fizetett hirdetés
1 millió Ft
6 évre
20 585 Ft/hó
THM: 14.5%
Részletek →
2 millió Ft
6 évre
41 169 Ft/hó
THM: 14.5%
Részletek →
3 millió Ft
6 évre
61 754 Ft/hó
THM: 14.5%
Részletek →

A tájékoztatás nem teljes körű és nem minősül ajánlattételnek.

Az ingatlan leírása

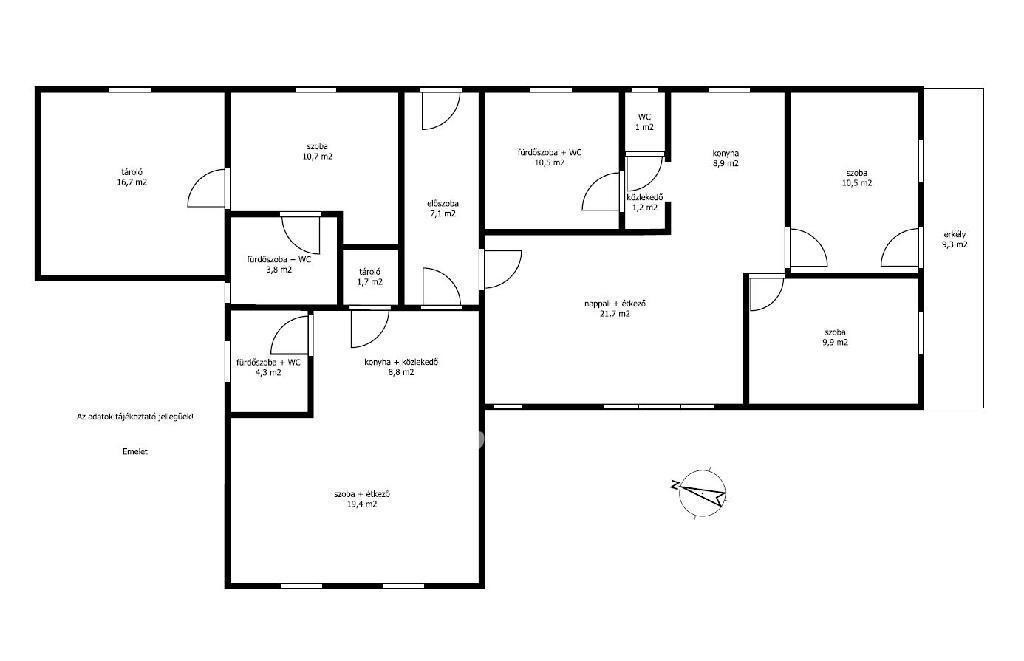
Somogy megye, Siófok Balatonszéplak, Ezüstpart, 119 m2 étterem, 141 m2 lakóház, 716 m2 telek eladó. Az ingatlan Balatonszéplak központi részén helyezkedik el, csendes, nyugodt környezetben, 350 m-re az Ezüstpart szabadstrandtól. A 2 szintes, 5 szobás ház fűtését cirkó gázkazán biztosítja radiátor hőleadókkal, amit kandalló, illetve klíma egészít ki. Az ingatlan 141 m2-es felső szintjén 3 lakóegység található, a 119 m2-es alsó szintje étteremként és konyhaként került kialakításra. Az étterem 35 fő, a terasz további 35 fő befogadására alkalmas. Parkolni a 17 m2-es garázsban, illetve 5 autóval zárt kocsibeállón lehetséges. A ház kialakítása lehetővé teszi a két szint különálló használatát is, így kiváló lehetőség akár több generációs családoknak állandó lakhatásra vagy nyaralásra, valamint üzleti vállalkozásnak, illetve befektetési céllal részben vagy egészben kiadásra is. Budapesti belvárosi lakás értékegyeztetéssel beszámítható. Bővebb információért keressen telefonon!
M314047
Az OTP Ingatlanpont, mint egyetlen közvetlen banki hátterű ingatlanközvetítő társaság teljes körű ügyintézéssel áll az eladók és a vevők rendelkezésére! A kínálatunkból választott ingatlan finanszírozásához minősített fogyasztóbarát, piaci és kedvezményes hitel- és lízingkonstrukciókat kínálunk (lakásvásárlási hitel, CSOK plusz, szabad felhasználású hitel, babaváró hitel, céges hitelek, pályázatok, amennyiben az ügyfél és az ingatlan megfelel a feltételeknek). Az adásvételi szerződés megkötéséhez igény szerint megbízható ügyvédi közreműködést biztosítunk, és segítséget nyújtunk az adásvételhez kapcsolódó egyéb ügyek intézéséhez.
Ha az új ingatlana megvásárlásához a jelenlegi ingatlanát el kell adnia, abban is szívesen segítünk.

Térkép

Ingatlan adásvétel ügyvédi díja
600 000 Ft
a hirdetésben szereplő ár alapján
  • A vételár 0,45%-a
  • Szerződéscsomag teljeskörű képviselettel
  • Ingyenes tulajdoni lap ellenőrzés
  • Az ÁFA-t már tartalmazza
Érdekel az ajánlat →
A tájékoztatás nem teljes körű és nem minősül ajánlattételnek. Minimum díj: 150 000 Ft, maximum díj: 600 000 Ft. A díj kizárólag lakóingatlan adásvételére vonatkozik.

A hirdető elérhetősége

OTP Ingatlanpont - Takács Zsuzsanna

Takács Zsuzsanna
+36 30 495