Eladó Kereskedelmi és ipari ingatlan
Hirdetéskód: 9304769

-

Felújításhoz személyi kölcsönt keres? Kalkuláljon itt! →
140.00 m2
ALAPTERÜLET
0
SZOBASZÁM
Tégla
ÉPÍTÉS
Elektromos
FŰTÉS
  • Belső szintek 2
  • Parkolási lehetőség Utcán, közterületen
  • Építés éve 1998
  • Fűtés Elektromos
  • Építőanyag Tégla
  • Klíma nem
  • Akadálymentesített nem

Energetikai besorolás: G

A+++
A++
A+
A
B
C
D
E
F
G
H
I

Az MBH Bank személyi kölcsön ajánlata

Fizetett hirdetés
1 millió Ft
6 évre
20 585 Ft/hó
THM: 14.5%
Részletek →
2 millió Ft
6 évre
41 169 Ft/hó
THM: 14.5%
Részletek →
3 millió Ft
6 évre
61 754 Ft/hó
THM: 14.5%
Részletek →

A tájékoztatás nem teljes körű és nem minősül ajánlattételnek.

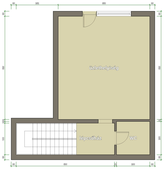
Az ingatlan leírása

Sárvár belvárosában, üzletsoron, eladó egy 30 éve működő üzlet, déli bevilágítással. Az ingatlan három egységből áll, átalakítás után akár három lakóegység is kialakítható. Az épület megközelíthetősége nagyon jó, parkolási lehetőség közvetlen az ingatlan előtt levő, ingyenes parkolóban. Az alsó szinten egy jelenleg is nagy forgalmat bonyolító kis üzlet található, a felső szinten egy részben már kialakított lakás helyezkedik el és egy raktározásra alkalmas épület rész. A felső szint hátsó feljáraton, külön bejárattal is megközelíthető. A több hasznosítási lehetőséggel bíró ingatlan együttes egyben eladó.


Teljeskörű Otthon Start, Csok, Csok+ Hitel, Piaci Hitel ügyintézéssel! Ne feledje, amennyiben Csok-ot igényel, az ingatlanvásárlása illetékmentes!


Érd.: Molnár Zsolt 06302174888


További részletekért forduljon hozzám bizalommal.
Kérdéseivel kapcsolatban irodai konzultáció keretében, illetve telefonon állok szíves rendelkezésére.

Térkép

Ingatlan adásvétel ügyvédi díja
287 550 Ft
a hirdetésben szereplő ár alapján
  • A vételár 0,45%-a
  • Szerződéscsomag teljeskörű képviselettel
  • Ingyenes tulajdoni lap ellenőrzés
  • Az ÁFA-t már tartalmazza
Érdekel az ajánlat →
A tájékoztatás nem teljes körű és nem minősül ajánlattételnek. Minimum díj: 150 000 Ft, maximum díj: 600 000 Ft. A díj kizárólag lakóingatlan adásvételére vonatkozik.

A hirdető elérhetősége

S1Ingatlan

Csuka Milán
+36 30 217