Eladó Kereskedelmi és ipari ingatlan
Hirdetéskód: 9246912
HOUSE36 Ingatlanhálózat
1670.00 m2
ALAPTERÜLET0
SZOBASZÁMnincs megadva
ÉPÍTÉSnincs megadva
FŰTÉS- CSOK igénybe vehető nem
- Tetőtér beépíthető nem
- Építés éve 1990
- Klíma nem
- Szigetelt nem
A+++
A++
A+
A
B
C
D
E
F
G
H
I
Az ingatlan leírása
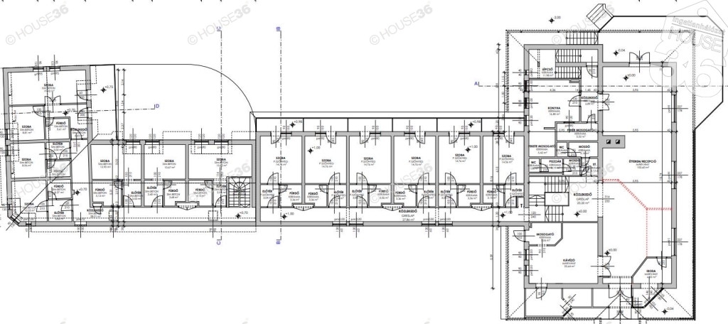
A Győr mellett fekvő Pannonhalma belvárosában, impozáns környezetben eladó egy 5.075 m2-es telken fekvő 1670 m2 hasznos beépített területtel rendelkező többszintes szálloda.
A kiemelkedően nagy zöldfelülettel rendelkező, jó parkolás lehetőséggel ellátott szállodakomplexum összesen 37 lakóegységből áll. A befejezésre és/vagy felújításra váró épületek átlagosan 40%-os készültségi szinten vannak.
2005-ben az egyik épületszárnyban kialakításra került 7 egyszobás apartman, 2 nagy méretű konferencia terem, valamint egy rusztikus stílusú 70 m2-es közösségi tér a pincében. Ennek az épületrésznek a készültségi szintje 80%-os.
Szakmai befektetőt keresünk a szállodakomplexum befejezésére és üzemeltetésére.
Figyelem! Az adatlap megbízónktól kapott adatok alapján készült, pontosságáért felelősséget nem tudunk vállalni!
A tulajdonos kérésére az ingatlan bemutatása egy személyes konzultáció után történik, ahol részletes tájékoztatást kaphat az ingatlan paramétereiről és egyéb kényelmi szolgáltatásairól.
A HOUSE36 kínálatában található összes ingatlannal kapcsolatban tudok felvilágosítást nyújtani!
Hívjon bizalommal! Szolgáltatásaink kereső ügyfeleink számára ingyenesek!
Az ingatlan kizárólag értékesítő által tekinthető meg!
A négyzetméter adatok tájékoztató
A kiemelkedően nagy zöldfelülettel rendelkező, jó parkolás lehetőséggel ellátott szállodakomplexum összesen 37 lakóegységből áll. A befejezésre és/vagy felújításra váró épületek átlagosan 40%-os készültségi szinten vannak.
2005-ben az egyik épületszárnyban kialakításra került 7 egyszobás apartman, 2 nagy méretű konferencia terem, valamint egy rusztikus stílusú 70 m2-es közösségi tér a pincében. Ennek az épületrésznek a készültségi szintje 80%-os.
Szakmai befektetőt keresünk a szállodakomplexum befejezésére és üzemeltetésére.
Figyelem! Az adatlap megbízónktól kapott adatok alapján készült, pontosságáért felelősséget nem tudunk vállalni!
A tulajdonos kérésére az ingatlan bemutatása egy személyes konzultáció után történik, ahol részletes tájékoztatást kaphat az ingatlan paramétereiről és egyéb kényelmi szolgáltatásairól.
A HOUSE36 kínálatában található összes ingatlannal kapcsolatban tudok felvilágosítást nyújtani!
Hívjon bizalommal! Szolgáltatásaink kereső ügyfeleink számára ingyenesek!
Az ingatlan kizárólag értékesítő által tekinthető meg!
A négyzetméter adatok tájékoztató