Eladó Kereskedelmi és ipari ingatlan
Hirdetéskód: 9297672

Favorit Ingatlanközvetítő és Hitelügyintéző Iroda

Felújításhoz személyi kölcsönt keres? Kalkuláljon itt! →
93.00 m2
ALAPTERÜLET
3
SZOBASZÁM
Tégla
ÉPÍTÉS
Gáz (cirkó)
FŰTÉS
  • CSOK igénybe vehető nem
  • Tetőtér beépíthető nem
  • Építés éve 2006
  • Fűtés Gáz (cirkó)
  • Építőanyag Tégla
  • Klíma nem
  • Szigetelt nem
Energetikai besorolás: Nincs meghatározva
A+++
A++
A+
A
B
C
D
E
F
G
H
I

Az MBH Bank személyi kölcsön ajánlata

Fizetett hirdetés
1 millió Ft
6 évre
20 585 Ft/hó
THM: 14.5%
Részletek →
2 millió Ft
6 évre
41 169 Ft/hó
THM: 14.5%
Részletek →
3 millió Ft
6 évre
61 754 Ft/hó
THM: 14.5%
Részletek →

A tájékoztatás nem teljes körű és nem minősül ajánlattételnek.

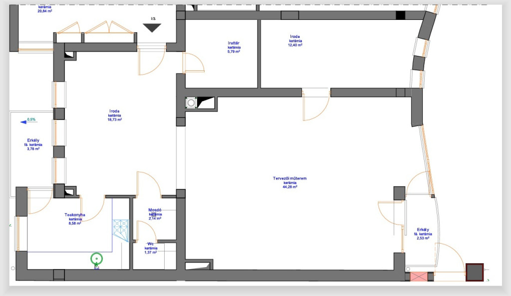
Az ingatlan leírása

Nyíregyházán, Dózsa György utca közelében tégla építésű társasház 1. emeletén kínálunk megvételre egy 93 m²-es irodát, kiváló elhelyezkedéssel.
 
Az ingatlan főbb jellemzői:


3 különálló irodahelyiség
irattár
teakonyha
mosdó
2 erkély


Műszaki adottságok:


Gáz-cirkó fűtés, egyedileg szabályozható, költséghatékony működéssel
3 db hűtő-fűtő klíma, amely egész évben kellemes hőmérsékletet biztosít
Műanyag nyílászárók, jó hő- és hangszigeteléssel
Járólap és parketta burkolatok


Az ingatlan tehermentes, így a vásárlás és az ügyintézés gyorsan lebonyolítható.
 
Parkolás:
A társasház zárt udvarában 2 saját autóbeálló áll rendelkezésre.
 
Berendezéssel együtt is megvásárolható, melynek vételára 95 millió Ft.
A berendezés tartalmazza:


8 db számítógép
tervnyomtató
íróasztalok
beépített szekrények
kiépített informatikai rendszer
saját szerver


Amennyiben felkeltette érdeklődését várom hívását!Az ingatlan azonosítója: 69969Érdeklődni:

Térkép

Ingatlan adásvétel ügyvédi díja
414 000 Ft
a hirdetésben szereplő ár alapján
  • A vételár 0,45%-a
  • Szerződéscsomag teljeskörű képviselettel
  • Ingyenes tulajdoni lap ellenőrzés
  • Az ÁFA-t már tartalmazza
Érdekel az ajánlat →
A tájékoztatás nem teljes körű és nem minősül ajánlattételnek. Minimum díj: 150 000 Ft, maximum díj: 600 000 Ft. A díj kizárólag lakóingatlan adásvételére vonatkozik.

A hirdető elérhetősége

Favorit Ingatlanközvetítő és Hitelügyintéző Iroda

Gáva Aliz
+36 30 308