Eladó Kereskedelmi és ipari ingatlan
Hirdetéskód: 9268079
Városi Ingatlaniroda
Felújításhoz személyi kölcsönt keres? Kalkuláljon itt! →978.00 m2
ALAPTERÜLET0
SZOBASZÁMnincs megadva
ÉPÍTÉSGáz (cirkó)
FŰTÉS- CSOK igénybe vehető nem
- Belső szintek 2
- Tetőtér beépíthető nem
- Építés éve 1980
- Fűtés Gáz (cirkó)
- Klíma nem
- Szigetelt nem
A+++
A++
A+
A
B
C
D
E
F
G
H
I
Az ingatlan leírása
Kizárólag a Városi Ingatlaniroda kínálatában!
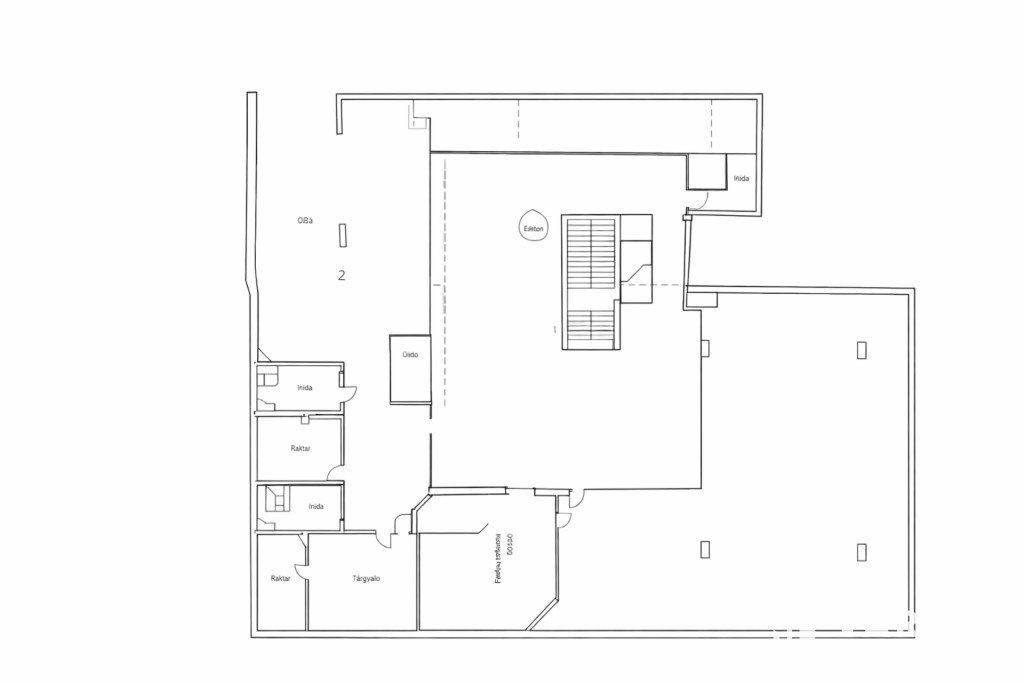
Nagykanizsa belvárosában vált eladóvá ez a számos lehetőséget magában rejtő közel 1000m2-es üzlethelység. Az ingatlan korábban egy szórakozóhelységként üzemelt. Igény szerint ha az új tulajdonosa úgy álmodja meg akkor akár kisebb üzlethelységek is kialakíthatók, melyek könnyen kiadhatók bérbe. Az épület felső szintjén elhelyezkedő helység külön bejárattal rendelkezik.
A közlekedési kapcsolatok kitűnőek, így a helyszín könnyen megközelíthető mind gyalogosan, mind tömegközlekedéssel. További kényelmet nyújt, hogy az épület udvari része gépjárműbeállási lehetőséget biztosít, ami különösen előnyös a mindennapi ügymenet szempontjából.
Az épület teljes tetőszigetelése pár éve megtörtén. A biztonságról riasztórendszer gondoskodik.
A helységek fűtéséről egyedi gáz cirkó kazán gondoskodik radiátorok segítségével.
Ez az ingatlan nagyszerű lehetőség mindazok számára, akik egy jól megközelíthető, tágas és sokoldalú üzlethelyiséget keresnek Nagykanizsa központjában. Ne hagyja ki ezt a remek ajánlatot!
Iroda: Nagykanizsa Platán sor 7
Nagykanizsa belvárosában vált eladóvá ez a számos lehetőséget magában rejtő közel 1000m2-es üzlethelység. Az ingatlan korábban egy szórakozóhelységként üzemelt. Igény szerint ha az új tulajdonosa úgy álmodja meg akkor akár kisebb üzlethelységek is kialakíthatók, melyek könnyen kiadhatók bérbe. Az épület felső szintjén elhelyezkedő helység külön bejárattal rendelkezik.
A közlekedési kapcsolatok kitűnőek, így a helyszín könnyen megközelíthető mind gyalogosan, mind tömegközlekedéssel. További kényelmet nyújt, hogy az épület udvari része gépjárműbeállási lehetőséget biztosít, ami különösen előnyös a mindennapi ügymenet szempontjából.
Az épület teljes tetőszigetelése pár éve megtörtén. A biztonságról riasztórendszer gondoskodik.
A helységek fűtéséről egyedi gáz cirkó kazán gondoskodik radiátorok segítségével.
Ez az ingatlan nagyszerű lehetőség mindazok számára, akik egy jól megközelíthető, tágas és sokoldalú üzlethelyiséget keresnek Nagykanizsa központjában. Ne hagyja ki ezt a remek ajánlatot!
Iroda: Nagykanizsa Platán sor 7