Eladó Kereskedelmi és ipari ingatlan
Hirdetéskód: 9117815
Immo1 Miskolc - Zsuzsi irodája
291.00 m2
ALAPTERÜLET5
SZOBASZÁMnincs megadva
ÉPÍTÉSnincs megadva
FŰTÉS- CSOK igénybe vehető nem
- Tetőtér beépíthető nem
- Építés éve 1970
- Klíma nem
- Szigetelt nem
A+++
A++
A+
A
B
C
D
E
F
G
H
I
Az ingatlan leírása
Alkalmi áron kínálunk eladásra egy 291,6 m², kétszintes üzlethelyiséget, amely jelenleg a népszerű ENERGYM edzőterem otthona, bérlővel, berendezéssel és eszközparkkal együtt! Ez a frekventált helyen lévő, utcai bejáratú ingatlan tökéletes választás vállalkozóknak, befektetőknek vagy fitness szakembereknek.
Ingatlan Jellemzői
• Elhelyezkedés: Miskolc, Avasi lakótelep, Testvérvárosok útja – forgalmas, könnyen megközelíthető terület.
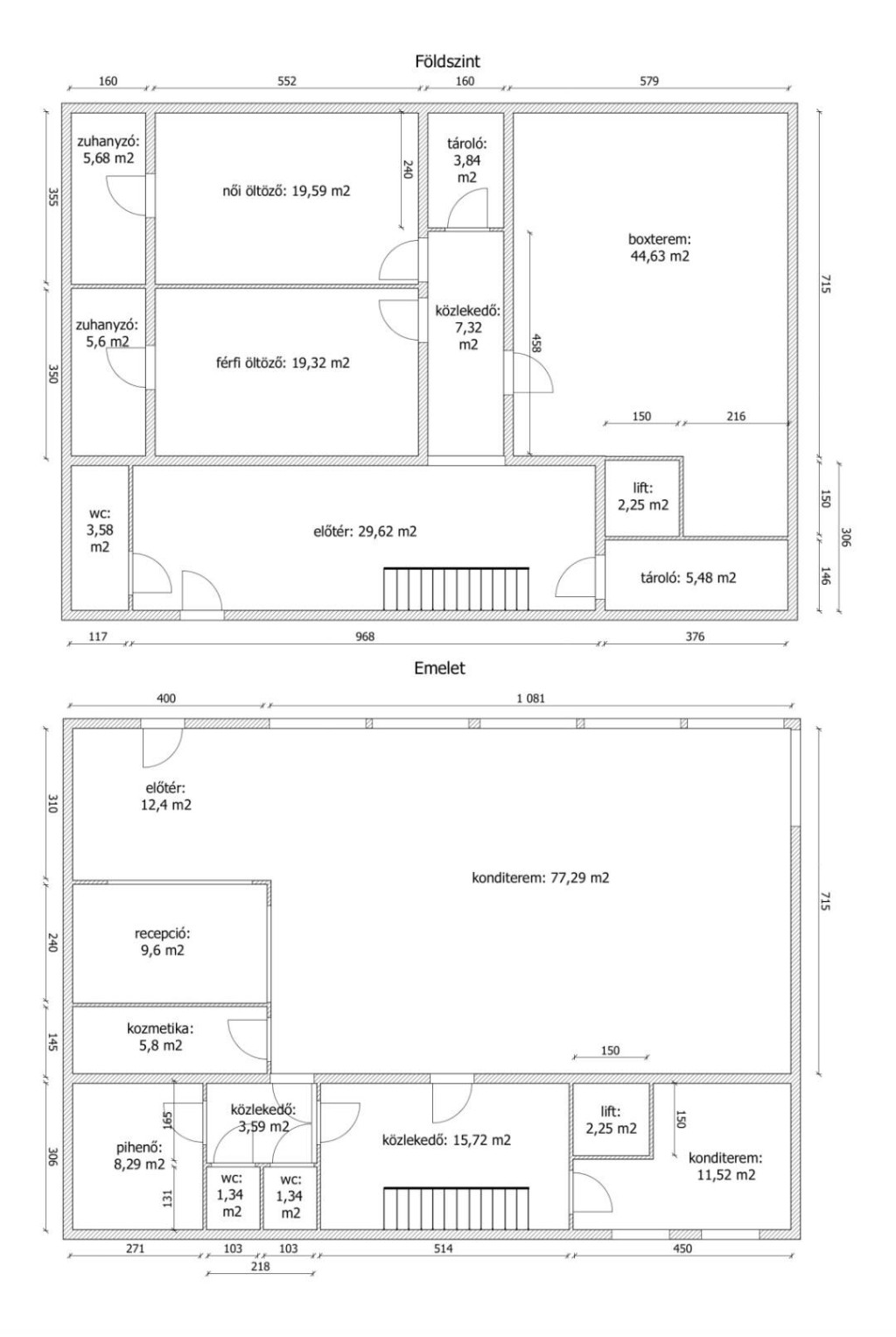
• Méret: 291,6 m² (földszint: 144,7 m², emelet: 146,9 m²).
• Felosztás:
◦ Recepció, konditerem, boxterem.
◦ Két kozmetikai helyiség, előtér, közlekedő.
◦ Női és férfi öltözők zuhanyzóval, három WC, tárolók.
• Fűtés: Hűtő-fűtő klímaberendezés, mely hőszivattyúról működik.
Melegvíz-ellátást távhő biztosítja, egyedi mérővel.
• Épület: Vasbeton vázas, tégla kitöltő falazat, lapostetős, bitumenes lemez héjazat.
• Parkolás: Ingyenes parkolási lehetőség az épület környezetében.
• Közművek: Teljes körűen közművesített (ivóvíz, szennyvíz, csatorna, 220 V elektromos áram, vezetékes gáz, telefon, kábeltévé).
Az Edzőterem előnyei
• Bevezetett vendégkör: Családias hangulatú, stabil ügyfélbázissal rendelkező edzőterem.
• Bérlővel teljes berendezés: azonnal üzemeltethető.
• Sokoldalú kihasználhatóság: Alkalmas konditerem, női fitness stúdió, jóga vagy crossfit központ működtetésére.
Elhelyezkedés és Környezet
Az ingatlan Miskolc egyik legnépesebb területén, az Avasi lakótelep I. ütemében található, a Tapolcai út fölötti domboldalon. A környék kiváló infrastruktúrával rendelkezik:
• Közelben: ABC áruház, posta, háztartási bolt, virágbolt, cukrászda és egyéb üzletek.
• Közlekedés:
◦ 200 m-re buszmegálló, 8 autóbuszjárat köti össze a városközponttal (3,5 km, csúcsidőben 5-10 perces követési idő).
◦ Könnyű megközelíthetőség autóval, ingyenes parkolóval.
• Intézmények: Gyermekintézmények, orvosi rendelők és a Fáy András Közgazdasági Szakközépiskola, Szemere Bertalan Szakképző Iskola 500 m-en belül.
Kinek Ajánljuk?
• Vállalkozóknak: Ideális lehetőség a fitness iparban tevékenykedni vágyóknak, akik egy működő üzletet szeretnének átvenni.
• Személyi edzőknek: Tökéletes választás saját edzőterem indításához, időt és költséget spórolva.
• Befektetőknek: Kiváló hozamot biztosító ingatlan frekventált helyen, stabil ügyfélkörrel.
• Sportkedvelőknek: Akik családias hangulatú, közösségi fókuszú edzőtermet szeretnének működtetni.
• Cégeknek vagy franchise-oknak: Bővítési lehetőség egy már működő infrastruktúrával.
• Közösségi szervezeteknek: Sportprogramok vagy kedvezményes létesítményhasználat biztosítására.
Környezet és Egyéb
• Telek: Szabályos téglalap alakú, sík felületű, a felépítmény által elfoglalt terület.
• Környezetvédelem: Nincs szennyezés, az ingatlan megfelel a környezetvédelmi előírásoknak.
• Korábbi használat: Eredetileg üzlet, majd kábelszolgáltató ügyfélszolgálata, jelenleg edzőterem.
Irányár: 69 900 000 Ft – Ne hagyja ki ezt a páratlan lehetőséget!
Megtekintés
Az ingatlan kizárólag irodán keresztül, előre egyeztetett időpontban látogatható. Szakértőink minden kérdésére válaszolnak a bemutató során. Foglaljon időpontot még ma!
Ingatlan Jellemzői
• Elhelyezkedés: Miskolc, Avasi lakótelep, Testvérvárosok útja – forgalmas, könnyen megközelíthető terület.
• Méret: 291,6 m² (földszint: 144,7 m², emelet: 146,9 m²).
• Felosztás:
◦ Recepció, konditerem, boxterem.
◦ Két kozmetikai helyiség, előtér, közlekedő.
◦ Női és férfi öltözők zuhanyzóval, három WC, tárolók.
• Fűtés: Hűtő-fűtő klímaberendezés, mely hőszivattyúról működik.
Melegvíz-ellátást távhő biztosítja, egyedi mérővel.
• Épület: Vasbeton vázas, tégla kitöltő falazat, lapostetős, bitumenes lemez héjazat.
• Parkolás: Ingyenes parkolási lehetőség az épület környezetében.
• Közművek: Teljes körűen közművesített (ivóvíz, szennyvíz, csatorna, 220 V elektromos áram, vezetékes gáz, telefon, kábeltévé).
Az Edzőterem előnyei
• Bevezetett vendégkör: Családias hangulatú, stabil ügyfélbázissal rendelkező edzőterem.
• Bérlővel teljes berendezés: azonnal üzemeltethető.
• Sokoldalú kihasználhatóság: Alkalmas konditerem, női fitness stúdió, jóga vagy crossfit központ működtetésére.
Elhelyezkedés és Környezet
Az ingatlan Miskolc egyik legnépesebb területén, az Avasi lakótelep I. ütemében található, a Tapolcai út fölötti domboldalon. A környék kiváló infrastruktúrával rendelkezik:
• Közelben: ABC áruház, posta, háztartási bolt, virágbolt, cukrászda és egyéb üzletek.
• Közlekedés:
◦ 200 m-re buszmegálló, 8 autóbuszjárat köti össze a városközponttal (3,5 km, csúcsidőben 5-10 perces követési idő).
◦ Könnyű megközelíthetőség autóval, ingyenes parkolóval.
• Intézmények: Gyermekintézmények, orvosi rendelők és a Fáy András Közgazdasági Szakközépiskola, Szemere Bertalan Szakképző Iskola 500 m-en belül.
Kinek Ajánljuk?
• Vállalkozóknak: Ideális lehetőség a fitness iparban tevékenykedni vágyóknak, akik egy működő üzletet szeretnének átvenni.
• Személyi edzőknek: Tökéletes választás saját edzőterem indításához, időt és költséget spórolva.
• Befektetőknek: Kiváló hozamot biztosító ingatlan frekventált helyen, stabil ügyfélkörrel.
• Sportkedvelőknek: Akik családias hangulatú, közösségi fókuszú edzőtermet szeretnének működtetni.
• Cégeknek vagy franchise-oknak: Bővítési lehetőség egy már működő infrastruktúrával.
• Közösségi szervezeteknek: Sportprogramok vagy kedvezményes létesítményhasználat biztosítására.
Környezet és Egyéb
• Telek: Szabályos téglalap alakú, sík felületű, a felépítmény által elfoglalt terület.
• Környezetvédelem: Nincs szennyezés, az ingatlan megfelel a környezetvédelmi előírásoknak.
• Korábbi használat: Eredetileg üzlet, majd kábelszolgáltató ügyfélszolgálata, jelenleg edzőterem.
Irányár: 69 900 000 Ft – Ne hagyja ki ezt a páratlan lehetőséget!
Megtekintés
Az ingatlan kizárólag irodán keresztül, előre egyeztetett időpontban látogatható. Szakértőink minden kérdésére válaszolnak a bemutató során. Foglaljon időpontot még ma!