Eladó Kereskedelmi és ipari ingatlan
Hirdetéskód: 9285176
Debrecen Miklós utca 5-13 - OTP Ingatlanpont Iroda
Felújításhoz személyi kölcsönt keres? Kalkuláljon itt! →596.00 m2
ALAPTERÜLET0
SZOBASZÁMnincs megadva
ÉPÍTÉSnincs megadva
FŰTÉS- CSOK igénybe vehető nem
- Tetőtér beépíthető nem
- Építés éve 1970
- Klíma nem
- Szigetelt nem
A+++
A++
A+
A
B
C
D
E
F
G
H
I
Az ingatlan leírása
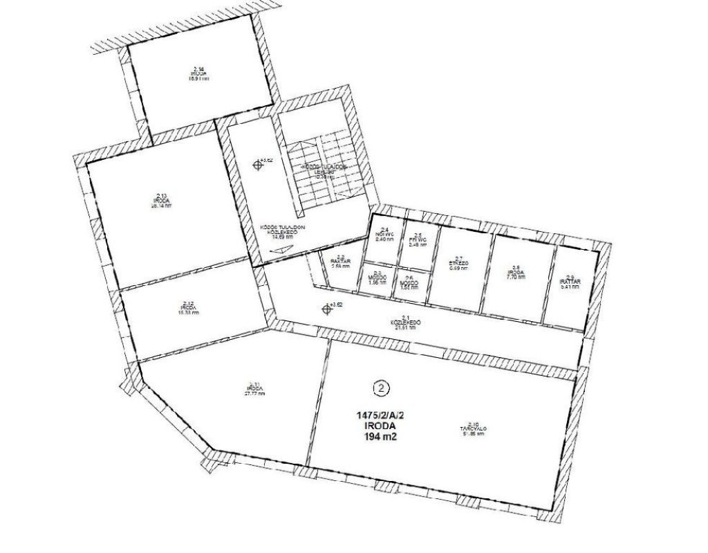
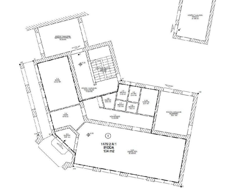
Létavértes szívében eladó, egy 3 szintes 600 m2 ingatlan .
Korábban egy bank működött itt, ennek megfelelően lettek kialakítva a terek, de ez könyen megváltoztatható.
Elhelyezkedésének köszönhetően át lehet minősíteni társasházzá, de más gazdasági vagy kereskedelmi tevékenységre is alkalmas lehet.
tökéletes lehet szociális intézménynek, orvosi rendelőknek, klínikának, de sok más kereskedelmi tevékenységre is alkalmas lehet.
A megvásárlásban segítséget nyujthat a vállakozásoknak elérhető OTP-s beruházási hitel illetve a KAVOS 3% hitelt. A hitel széles körben alkalmas beruházási célok megvalósítására,
állami kamat-, kezelési költség- és kezességi díjtámogatás,
akár 500 millió forint hitelösszeg igényelhető,
legfeljebb 10 éves futamidőre nyújtható.
Megtekíntésért hívjon most!
Korábban egy bank működött itt, ennek megfelelően lettek kialakítva a terek, de ez könyen megváltoztatható.
Elhelyezkedésének köszönhetően át lehet minősíteni társasházzá, de más gazdasági vagy kereskedelmi tevékenységre is alkalmas lehet.
tökéletes lehet szociális intézménynek, orvosi rendelőknek, klínikának, de sok más kereskedelmi tevékenységre is alkalmas lehet.
A megvásárlásban segítséget nyujthat a vállakozásoknak elérhető OTP-s beruházási hitel illetve a KAVOS 3% hitelt. A hitel széles körben alkalmas beruházási célok megvalósítására,
állami kamat-, kezelési költség- és kezességi díjtámogatás,
akár 500 millió forint hitelösszeg igényelhető,
legfeljebb 10 éves futamidőre nyújtható.
Megtekíntésért hívjon most!