Eladó Kereskedelmi és ipari ingatlan
Hirdetéskód: 9247489
OTP Ingatlanpont Csongrád
100.00 m2
ALAPTERÜLET0
SZOBASZÁMnincs megadva
ÉPÍTÉSElektromos
FŰTÉS- CSOK igénybe vehető nem
- Tetőtér beépíthető nem
- Építés éve 1990
- Fűtés Elektromos
- Klíma nem
- Szigetelt nem
A+++
A++
A+
A
B
C
D
E
F
G
H
I
Az ingatlan leírása
AZONNALI VÁLLALKOZÁSRA!! 10 ÉVE MŰKÖDŐ vendégház eladó Köröstarcsán!!
A Kettős-Köröstől és a Kishajó-kikötőtől mindössze 200 m-re található, CSENDES, falusi környezetben.
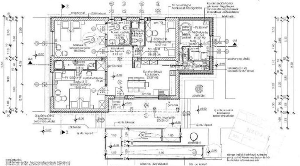
A TELJESEN BÚTOROZOTT, működő vendégház 3 SZOBÁS, összesen 7 férőhellyel (pótágyazható). Minden szobához külön fürdőszoba tartozik, emellett egy teljesen felszerelt nappali-ebédlő és konyha áll rendelkezésre, így az üzemeltetés azonnal folytatható.
MŰSZAKI jellemzők: az ingatlant egy 19 kW-os NAPELEMES rendszer táplálja, amely PADLÓFŰTÉSSEL és elektromos kazánnal kombinálva működik, a melegvizet szintén a rendszer biztosítja. A nyári kellemes hőmérsékletet KLÍMÁK tartják. Ennek köszönhetően az üzemeltetés ENERGIATAKARÉKOS, alacsony külső költségekkel.
KÜLTÉRI adottságok: az udvarban 3 személyautó parkolása biztosított, a többi rész füvesített és egy külön FÚRT KÚTBÓL öntözhető. Szalonnasütő és grillező kialakításra került. WELLNESS részleg: 5 személyes jakuzzi és 3 személyes finn szauna áll a vendégek rendelkezésére.
FEJLESZTHETŐ: az ingatlan az emelet felé bővíthető; a szomszéd telek megvásárlásra került további fejlesztéshez (ennek megvásárlása opcionális).
Megtekintés kizárólag előre egyeztetett időpontban. Érdeklődés esetén keressen bizalommal!
A Kettős-Köröstől és a Kishajó-kikötőtől mindössze 200 m-re található, CSENDES, falusi környezetben.
A TELJESEN BÚTOROZOTT, működő vendégház 3 SZOBÁS, összesen 7 férőhellyel (pótágyazható). Minden szobához külön fürdőszoba tartozik, emellett egy teljesen felszerelt nappali-ebédlő és konyha áll rendelkezésre, így az üzemeltetés azonnal folytatható.
MŰSZAKI jellemzők: az ingatlant egy 19 kW-os NAPELEMES rendszer táplálja, amely PADLÓFŰTÉSSEL és elektromos kazánnal kombinálva működik, a melegvizet szintén a rendszer biztosítja. A nyári kellemes hőmérsékletet KLÍMÁK tartják. Ennek köszönhetően az üzemeltetés ENERGIATAKARÉKOS, alacsony külső költségekkel.
KÜLTÉRI adottságok: az udvarban 3 személyautó parkolása biztosított, a többi rész füvesített és egy külön FÚRT KÚTBÓL öntözhető. Szalonnasütő és grillező kialakításra került. WELLNESS részleg: 5 személyes jakuzzi és 3 személyes finn szauna áll a vendégek rendelkezésére.
FEJLESZTHETŐ: az ingatlan az emelet felé bővíthető; a szomszéd telek megvásárlásra került további fejlesztéshez (ennek megvásárlása opcionális).
Megtekintés kizárólag előre egyeztetett időpontban. Érdeklődés esetén keressen bizalommal!