Eladó Kereskedelmi és ipari ingatlan
Hirdetéskód: 9046647
HOUSE36 Ingatlanhálózat
Felújításhoz személyi kölcsönt keres? Kalkuláljon itt! →590.00 m2
ALAPTERÜLET0
SZOBASZÁMnincs megadva
ÉPÍTÉSEgyéb fűtés
FŰTÉS- CSOK igénybe vehető nem
- Tetőtér beépíthető nem
- Fűtés Egyéb fűtés
- Klíma nem
- Szigetelt nem
A+++
A++
A+
A
B
C
D
E
F
G
H
I
Az ingatlan leírása
ELADÓ Kecskeméten a Mindszenti krt.-ról könnyen megközelíthető, igényesen felújított telephely raktárral!
Jellemzői:
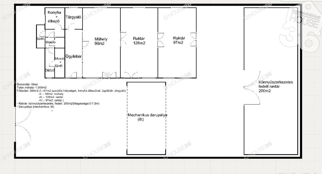
- Besorolás: Gksz
- Telek mérete: 1.500 m2
- Főépület: 390 m2 (I.: - 67 m2: szociális helységek, konyha, ügyféltér, tárgyaló
II.: - 98 m2: műhely
III.: - 128 m2: raktár
IV.: - 97 m2: raktár)
- Raktár: könnyűszerkezetes, fedett : 200 m2 (Magassága:5-7,5 m)
- Daru pálya: mechanikus (8t)
- Teljesen leburkolt terület
- Elektromos kapu
- Kamera rendszer + riasztó
- 2022-ben műszaki (vezeték-,nyílászáró- és tetőcsere, szigetelés, fűtéskorszerűsítés)- és esztétikai felújítások (burkolat- és konyhabútorcsere, fürdőszoba ill.festés)
- Klimatizált helyiségek
Az eladási ár az ÁFÁ-t nem tartalmazza!
Figyelem az adatlap megbízónktól kapott adatok alapján készült, pontosságáért felelősséget nem tudunk vállalni! Szolgáltatásaink Kereső ügyfeleink számára INGYENESEK! Amennyiben eladó-kiadó ingatlana van vagy finanszírozási megoldást keres, hívjon, megtaláljuk a legjobb lehetőséget Önnek! A HOUSE36 kínálatában található összes ingatlannal kapcsolatban tudok felvilágosítást nyújtani!
Hívjon bizalommal!
Jellemzői:
- Besorolás: Gksz
- Telek mérete: 1.500 m2
- Főépület: 390 m2 (I.: - 67 m2: szociális helységek, konyha, ügyféltér, tárgyaló
II.: - 98 m2: műhely
III.: - 128 m2: raktár
IV.: - 97 m2: raktár)
- Raktár: könnyűszerkezetes, fedett : 200 m2 (Magassága:5-7,5 m)
- Daru pálya: mechanikus (8t)
- Teljesen leburkolt terület
- Elektromos kapu
- Kamera rendszer + riasztó
- 2022-ben műszaki (vezeték-,nyílászáró- és tetőcsere, szigetelés, fűtéskorszerűsítés)- és esztétikai felújítások (burkolat- és konyhabútorcsere, fürdőszoba ill.festés)
- Klimatizált helyiségek
Az eladási ár az ÁFÁ-t nem tartalmazza!
Figyelem az adatlap megbízónktól kapott adatok alapján készült, pontosságáért felelősséget nem tudunk vállalni! Szolgáltatásaink Kereső ügyfeleink számára INGYENESEK! Amennyiben eladó-kiadó ingatlana van vagy finanszírozási megoldást keres, hívjon, megtaláljuk a legjobb lehetőséget Önnek! A HOUSE36 kínálatában található összes ingatlannal kapcsolatban tudok felvilágosítást nyújtani!
Hívjon bizalommal!