Eladó Kereskedelmi és ipari ingatlan
Hirdetéskód: 9294531

Miskolc - OTP Ingatlanpont Iroda

Felújításhoz személyi kölcsönt keres? Kalkuláljon itt! →
195.00 m2
ALAPTERÜLET
5
SZOBASZÁM
nincs megadva
ÉPÍTÉS
nincs megadva
FŰTÉS
  • CSOK igénybe vehető nem
  • Tetőtér beépíthető nem
  • Építés éve 1960
  • Klíma nem
  • Szigetelt nem
Energetikai besorolás: Nincs meghatározva
A+++
A++
A+
A
B
C
D
E
F
G
H
I

Az MBH Bank személyi kölcsön ajánlata

Fizetett hirdetés
1 millió Ft
6 évre
20 585 Ft/hó
THM: 14.5%
Részletek →
2 millió Ft
6 évre
41 169 Ft/hó
THM: 14.5%
Részletek →
3 millió Ft
6 évre
61 754 Ft/hó
THM: 14.5%
Részletek →

A tájékoztatás nem teljes körű és nem minősül ajánlattételnek.

Az ingatlan leírása

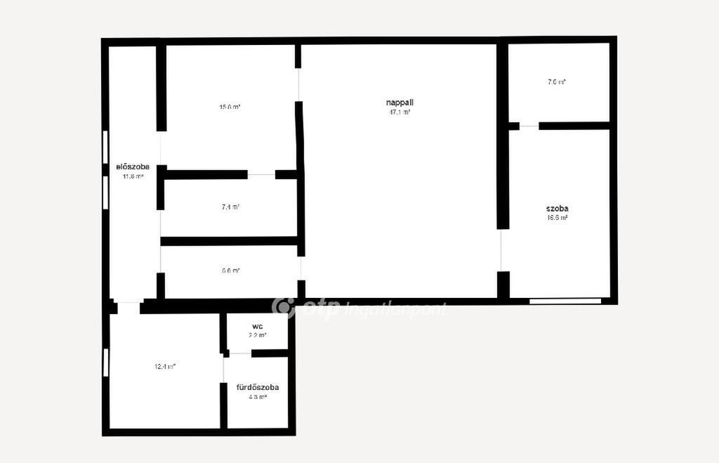
Kazincbarcika, a 26-os főút és az új M 260-as gyorsforgalmi úthoz közel, egy rendkívüli lehetőséggel rendelkező családi ház eladó, amely vállalkozások számára is ideális választás. Az ingatlan 1513 nm-es telken fekszik, és a ház 195 nm-es hasznos alapterülettel rendelkezik, kiegészítve egy tágas, 64 nm-es fedett terasszal és 16 nm-es erkéllyel. A telek két irányból is megközelíthető, és bővíthető is, így számos lehetőséget rejt. Kiválóan alkalmas akár kamionos forgalom lebonyolítására is, az udvaron 6 autó parkolása biztosított. Az ingatlan teljes közművel rendelkezik: gáz, 380 V, ipari és ivóvíz, valamint szennyvíz csatorna is kiépítve. Az előkert 500 nm, ami különösen vonzó lehet vállalkozások számára. A ház 1960-ban épült tégla falazattal, de 2006-ban teljes tetőfelújításon esett át, új mediterrán cserépfedéssel és hőszigetelt tetőtéri ablakokkal. A terveken szerepelt egy lépcső, amely a tetőtérbe vezetett volna, ahol két különálló helyiség alakítható ki. A központi, 6,7 m belmagasságú, fényárban úszó tágas nappali (aula) egyedülálló atmoszférát biztosít, amely közvetlen kapcsolatban áll a terasszal. A teraszajtók és a bejárati ajtók mind hőszigeteltek, míg a hátsó falon elhelyezett üvegtégla tovább fokozza a tér világosságát. Az átalakítások elkezdődtek, de a tulajdonos már nem folytatja őket, így a leendő vásárló saját ízlése és elképzelései szerint alakíthatja a belső teret. Ez a ház ideális lehetőséget biztosít arra, hogy akár egy modern, tágas családi otthonná, akár az eredeti tervek szerint egy különleges üzlethelyiséggé, vagy éppen telephellyé váljon. Az előkert, a terasz és az aula tökéletes helyszínt biztosíthat étterem, vendéglátóhely vagy rendezvények számára is.
OTP Banki hátterünknek köszönhetően finanszírozási igényekben (pl. Otthon Start Hitelprogram, Babaváró, Falusi CSOK, CSOK Plusz, Lakáshitel, Személyi kölcsön stb.), illetve biztosítások tekintetében is díjmentesen, soron kívüli ügyintézéssel segítjük ügyfeleinket. M323147

Térkép

A hirdető elérhetősége

Miskolc - OTP Ingatlanpont Iroda

Czugh Péter
+36 70 393