165 000 000 Ft
Kalkulált € ár: 433 071 €825 000 Ft/m2
Mutasd a képeket
Eladó Kereskedelmi és ipari ingatlan
Hirdetéskód: 9264105
OTP Ingatlanpont Csongrád
200.00 m2
ALAPTERÜLET0
SZOBASZÁMnincs megadva
ÉPÍTÉSnincs megadva
FŰTÉS- CSOK igénybe vehető nem
- Tetőtér beépíthető nem
- Építés éve 1940
- Klíma nem
- Szigetelt nem
A+++
A++
A+
A
B
C
D
E
F
G
H
I
Az ingatlan leírása
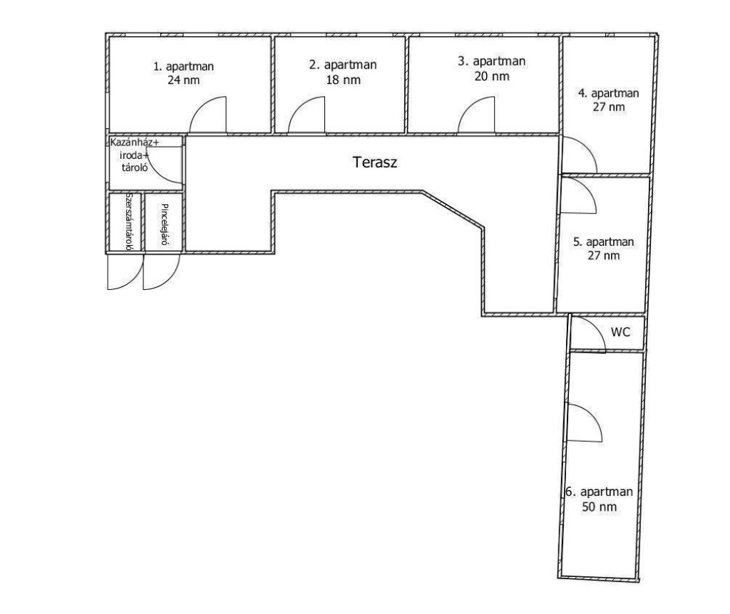
***VENDÉGHÁZ ELADÓ*** Az OTP INGATLANPONT KÍNÁLATÁBAN ***Csongrád-Csanád vármegyében, Csongrádon. A 6 apartmanból álló, jelenleg is jól működő 3 csillagos vendégház a városközpontban helyezkedik el. Az épület 2022-ben teljes felújításon esett át. Új a tető, új a teljes vízvezeték, a csatornahálózat, a fűtés, a gázrendszer, a villanyhálózat és ipari áram is van. Új műanyag nyílászárók vannak beépítve, minden ablakon van szúnyogháló és redőny. A fűtést és a meleg vizet kombi gázkazánok biztosítják. Mindenhol van füstérzékelő. Az utcán és az udvaron biztonsági kamerákat helyeztek el. A 2 helyiségből álló, összesen 56 nm-es száraz, fűthető pince remek hely kisebb rendezvények megtartásához. Az udvarban 10, az utcán további 3 autó parkolására van lehetőség. A sok visszatérő és a számos új vendégnek köszönhetően egy igazán előnyös üzleti lehetőséget jelenthet befektetők számára, vagy megélhetést biztosíthat családi vállalkozóknak.
Amennyiben az OTP Ingatlanpont kínálatából választ, számíthat szakmai támogatásunkra a teljes vételi folyamat során az adásvételi szerződés megkötésétől a hitelügyintézésen át az ingatlan átadásáig. Kedvező hitelajánlatokkal várjuk jelentkezését, számos konstrukció közül választhat. Irodáink Szentes, Petőfi u. 12. a buszmegálló felől és Csongrád, Fő u. 54. szám alatt várja a személyes érdeklődőket. *** VÁLASSZUK KI EGYÜTT AZ ÖNNEK LEGMEGFELELŐBB AJÁNLATOT! BANKI SORBAN ÁLLÁS NÉLKÜL!***
Amennyiben az OTP Ingatlanpont kínálatából választ, számíthat szakmai támogatásunkra a teljes vételi folyamat során az adásvételi szerződés megkötésétől a hitelügyintézésen át az ingatlan átadásáig. Kedvező hitelajánlatokkal várjuk jelentkezését, számos konstrukció közül választhat. Irodáink Szentes, Petőfi u. 12. a buszmegálló felől és Csongrád, Fő u. 54. szám alatt várja a személyes érdeklődőket. *** VÁLASSZUK KI EGYÜTT AZ ÖNNEK LEGMEGFELELŐBB AJÁNLATOT! BANKI SORBAN ÁLLÁS NÉLKÜL!***
Térkép